2779 Suncoast Blend Drive Odessa, FL 33556
For Sale MLS# TB8457338
3 beds 3 baths 1,673 sq ft Townhouse/Twinhome
Details for 2779 Suncoast Blend Drive
MLS# TB8457338
Description for 2779 Suncoast Blend Drive, Odessa, FL, 33556
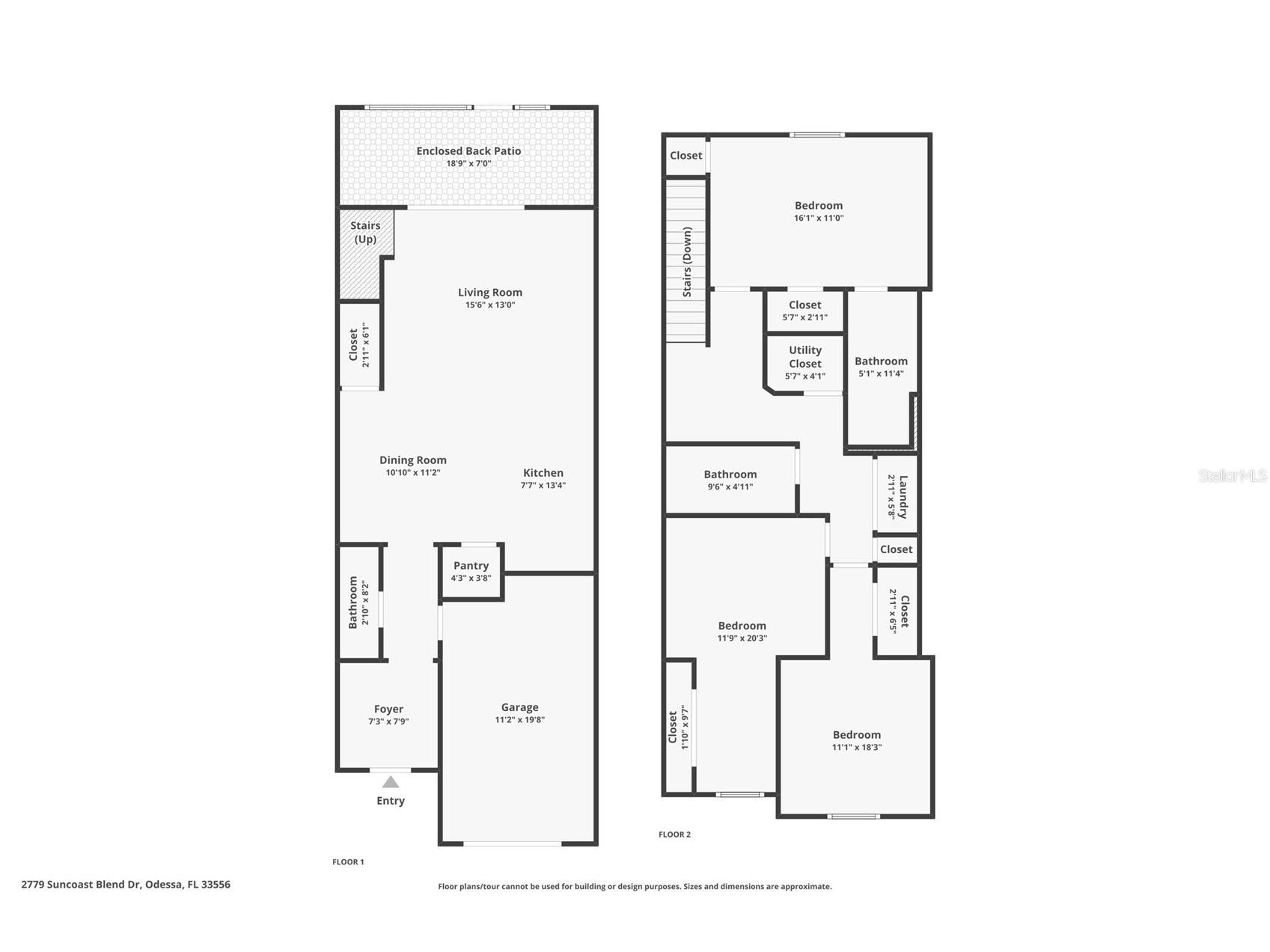
Looking for a move-in ready townhome in Odessa with a private fenced backyard, screened-in patio with pavers, community amenities, PLUS easy access to the Veterans Expressway? This two-story townhome has 3 bedrooms, 2.5 baths, 1,673 sq. ft, and checks all of those boxes and more! *Back on the market at no fault of the sellers, buyer financing fell through!* The main level features an entry foyer, luxury vinyl flooring, and an open floor plan with eating space in the kitchen. On the rear of the home is the screened-in patio with pavers that opens to a fenced-in yard (vinyl fence), offering privacy with no rear neighbors. This backyard space has new landscaping (Dec 2025), is pet-friendly, and is a relaxing retreat with room to enjoy morning coffee or unwind in the evening. Upstairs, you’ll find all 3 bedrooms, the convenient indoor laundry closet space, and the two full bathrooms. The primary bedroom easily fits a king-sized bed and has an en-suite bathroom with dual sinks and shower. Other features of this home include a *Fresh exterior paint 2026*, kitchen reverse osmosis faucet, ceiling fans throughout, a water softener, storage space under the stairs, a one-car garage, and hurricane shutters. Living in The Preserve means access to resort-style community amenities designed for everyday life. Future residents can enjoy the community pools and clubhouse, fitness center, dog park, playgrounds, picnic areas, basketball court, soccer field, and more! The community has many scenic ponds to enjoy, community access to the Suncoast Bike trail, and sidewalks and paths for exploring! Location matters, and this one delivers. You’re close to shopping centers, dining, and Publix, with quick access to SR 589 (Veterans Expressway) for an easy commute to Tampa and surrounding areas. Check out the virtual tour in the links!
Listing Information
Property Type: Residential, Townhouse
Status: Active
Bedrooms: 3
Bathrooms: 3
Lot Size: 0.04 Acres
Square Feet: 1,673 sq ft
Year Built: 2019
Garage: Yes
Stories: 2 Story
Construction: Block,Stucco
Subdivision: South Branch Preserve 1
Foundation: Slab
County: Pasco
School Information
Elementary: Odessa Elementary
Middle: Seven Springs Middle-Po
High: J.W. Mitchell High-Po
Room Information
Main Floor
Kitchen: 14x11
Living Room: 14x15
Porch: 7x19
Upper Floor
Primary Bathroom: 11x5
Primary Bedroom: 16x11
Bathrooms
Full Baths: 2
1/2 Baths: 1
Additonal Room Information
Laundry: Inside, Upper Level
Interior Features
Appliances: Water Softener, Washer, Microwave, Range, Refrigerator, Dishwasher, Disposal, Dryer
Flooring: Carpet,Luxury Vinyl,Tile
Additional Interior Features: Walk-In Closet(s), Open Floorplan, High Ceilings, Ceiling Fan(s), Eat-In Kitchen, Upper Level Primary
Utilities
Water: Public
Sewer: Public Sewer
Other Utilities: Electricity Connected,Sewer Connected
Cooling: Ceiling Fan(s), Central Air
Heating: Central
Exterior / Lot Features
Attached Garage: Attached Garage
Garage Spaces: 1
Parking Description: driveway, Garage, Garage Door Opener
Roof: Shingle
Pool: Community
Fencing: Vinyl
Additional Exterior/Lot Features: Storm/Security Shutters, Rear Porch, Covered, Screened
Community Features
Community Features: Sidewalks, Pool, Playground, Clubhouse, Dog Park, Fitness
HOA Dues Include: Trash, Maintenance Grounds, Pool(s)
Homeowners Association: Yes
HOA Dues: $307 / Quarterly
Driving Directions
From Suncoast Pkwy, take exit for SR-54 and head West. Community entrance for The Preserve will be on your right. Turn right on to S. Branch Rd and follow it to Good Hearted Ln. Turn right on Good Hearted Ln then an immediate Left onto Suncoast Blend Dr. The townhome will be on your left.
Financial Considerations
Terms: Cash,Conventional,FHA,VA Loan
Tax/Property ID: 18-26-30-006.0-06D.00-005.0
Tax Amount: 4309.68
Tax Year: 2024
A broker reciprocity listing courtesy: CHARLES RUTENBERG REALTY INC
Based on information provided by Stellar MLS as distributed by the MLS GRID. Information from the Internet Data Exchange is provided exclusively for consumers’ personal, non-commercial use, and such information may not be used for any purpose other than to identify prospective properties consumers may be interested in purchasing. This data is deemed reliable but is not guaranteed to be accurate by Edina Realty, Inc., or by the MLS. Edina Realty, Inc., is not a multiple listing service (MLS), nor does it offer MLS access.
Copyright 2026 Stellar MLS as distributed by the MLS GRID. All Rights Reserved.
Payment Calculator
Interest rate and annual percentage rate (APR) are based on current market conditions, are for informational purposes only, are subject to change without notice and may be subject to pricing add-ons related to property type, loan amount, loan-to-value, credit score and other variables. Estimated closing costs used in the APR calculation are assumed to be paid by the borrower at closing. If the closing costs are financed, the loan, APR and payment amounts will be higher. If the down payment is less than 20%, mortgage insurance may be required and could increase the monthly payment and APR. Contact us for details. Additional loan programs may be available. Accuracy is not guaranteed, and all products may not be available in all borrower's geographical areas and are based on their individual situation. This is not a credit decision or a commitment to lend.
Sales History & Tax Summary for 2779 Suncoast Blend Drive
Sales History
| Date | Price | |
|---|---|---|
| Currently not available. | ||
Tax Summary
| Tax Year | Estimated Market Value | Total Tax |
|---|---|---|
| Currently not available. | ||
Data powered by ATTOM Data Solutions. Copyright© 2026. Information deemed reliable but not guaranteed.
Schools
Schools nearby 2779 Suncoast Blend Drive
| Schools in attendance boundaries | Grades | Distance | Rating |
|---|---|---|---|
| Loading... | |||
| Schools nearby | Grades | Distance | Rating |
|---|---|---|---|
| Loading... | |||
Data powered by ATTOM Data Solutions. Copyright© 2026. Information deemed reliable but not guaranteed.
The schools shown represent both the assigned schools and schools by distance based on local school and district attendance boundaries. Attendance boundaries change based on various factors and proximity does not guarantee enrollment eligibility. Please consult your real estate agent and/or the school district to confirm the schools this property is zoned to attend. Information is deemed reliable but not guaranteed.
SchoolDigger ® Rating
The SchoolDigger rating system is a 1-5 scale with 5 as the highest rating. SchoolDigger ranks schools based on test scores supplied by each state's Department of Education. They calculate an average standard score by normalizing and averaging each school's test scores across all tests and grades.
Coming soon properties will soon be on the market, but are not yet available for showings.