2786 Armadale Drive Mount Dora, FL 32757
For Sale MLS# O6375638
2 beds 3 baths 1,087 sq ft Condo
Details for 2786 Armadale Drive
MLS# O6375638
Description for 2786 Armadale Drive, Mount Dora, FL, 32757
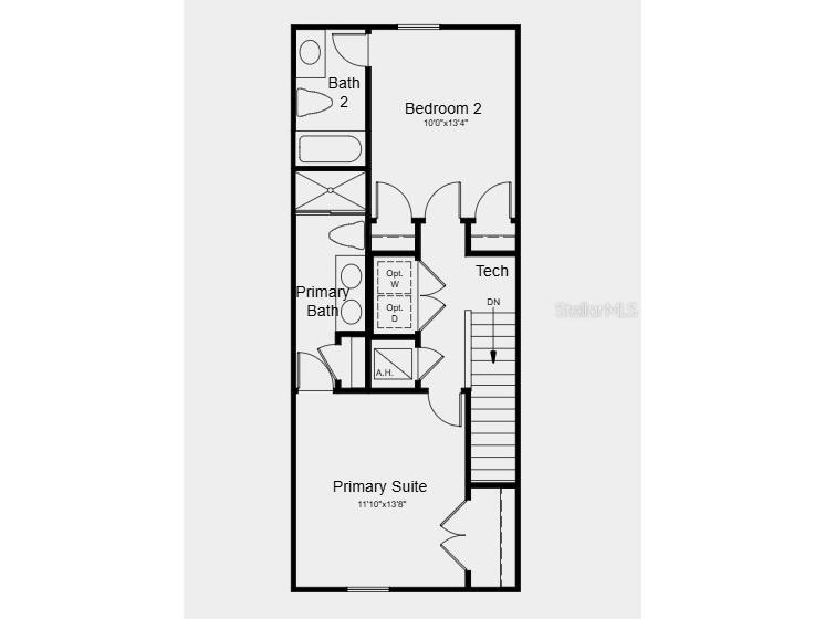
Under Construction. What's Special: Close to Amenities Covered Lanai White Cabinets West Facing Lot - New Construction - May Completion! Built by America's Most Trusted Home Builder. Welcome to the Iris at 2786 Armadale Drive in Southloch! Explore this thoughtfully designed townhome style condominium with an open concept living space with plenty of natural light. Just off the foyer, the kitchen sits at the front of the home and features a spacious pantry and a convenient half bathroom. The home flows gently into the dining area and great room, creating a warm space for gathering. Step outside the great room to enjoy a peaceful lanai. Upstairs, the private primary suite offers a quiet retreat at the end of the day. The second floor also includes the laundry room, an additional bedroom, and a full bathroom. It is a bright and welcoming layout that supports both everyday living and cherished moments. Southloch is a gated community with a welcoming atmosphere and a vibrant, luxurious lifestyle. Its ideal location near major roads places it just minutes from beautiful downtown Mount Dora, a charming destination known for its walkable streets, local shops, and beloved annual festivals. Planned amenities include a sparkling pool, a relaxing cabana, peaceful hammocks, cornhole, a Nature Play Space, and a National Wildlife Federation Monarch Butterfly Garden. These spaces offer opportunities to unwind, explore, and connect with nature. Golf lovers will appreciate the nearby Country Club of Mount Dora with its championship 18-hole course. A golf cart trail and sidewalk network will link Southloch to the Country Club and a Publix anchored shopping center, creating simple and enjoyable options for errands and recreation. Residents can stroll through boutique shops, enjoy local dining, attend cultural events downtown, or spend time boating and fishing on scenic Lake Dora, part of the Harris Chain of Lakes. Photos are for representative purposes only. MLS#O6375638
Listing Information
Property Type: Residential, Condominium
Status: Active
Bedrooms: 2
Bathrooms: 3
Square Feet: 1,087 sq ft
Year Built: 2026
Stories: 2 Story
Construction: Block
Property Attached: Yes
Construction Display: New Construction
Subdivision: Southloch
Builder: Taylor Morrison
Foundation: Slab
County: Lake
Construction Status: Under Construction
School Information
Elementary: Round Lake Elem
Middle: Mount Dora Middle
High: Mount Dora High
Room Information
Main Floor
Kitchen:
Dining Room:
Great Room:
Upper Floor
Primary Bedroom:
Bedroom 2:
Bathrooms
Full Baths: 2
1/2 Baths: 1
Additonal Room Information
Laundry: Inside, Upper Level, Laundry Closet
Interior Features
Appliances: Washer, Electric Water Heater, Dishwasher, Disposal, Dryer, Microwave, Range, Refrigerator
Flooring: Carpet,Ceramic Tile
Doors/Windows: Window Treatments
Accessibility: Wheelchair Access
Additional Interior Features: Window Treatments, Open Floorplan
Utilities
Water: Public
Sewer: Public Sewer
Other Utilities: Cable Available,Electricity Available,Fiber Optic Available,Underground Utilities
Cooling: Central Air
Heating: Central
Exterior / Lot Features
Parking Description: Assigned
Roof: Shingle
Pool: Community, Association
Additional Exterior/Lot Features: Sprinkler/Irrigation
Community Features
Community Features: Pool, Playground, Handicap Access, Street Lights, Gated, Golf Carts OK, Recreation Area, Community Mailbox
Security Features: Gated Community, Fire Hydrant(s)
Association Amenities: Playground, Pool, Maintenance Grounds, Gated
HOA Dues Include: Pool(s), Maintenance Structure, Maintenance Grounds, Trash, Other
Homeowners Association: Yes
HOA Dues: $354 / Monthly
Driving Directions
Interim Sales Center: From Downtown Orlando: Take the ramp on the left and follow signs for FL-408 West. Take the ramp on the right for FL-91 N and head toward Ocala. At Exit 267A, head right on the ramp for FL-429 toward Apopka / Tampa. Keep right, heading toward Apopka. At Exit 39, head right on the ramp for FL-453 North toward Leesburg / Mount Dora. Take the ramp on the right for FL-46 West and head toward Leesburg / Mount Dora. Bear right toward US-441 N. Turn right onto Bata Drive, then a right into the Lochside.
Financial Considerations
Terms: Cash,Conventional,FHA,Other,VA Loan
Tax/Property ID: NALOT1014
Tax Year: 2025
A broker reciprocity listing courtesy: TAYLOR MORRISON REALTY OF FLORIDA INC
Based on information provided by Stellar MLS as distributed by the MLS GRID. Information from the Internet Data Exchange is provided exclusively for consumers’ personal, non-commercial use, and such information may not be used for any purpose other than to identify prospective properties consumers may be interested in purchasing. This data is deemed reliable but is not guaranteed to be accurate by Edina Realty, Inc., or by the MLS. Edina Realty, Inc., is not a multiple listing service (MLS), nor does it offer MLS access.
Copyright 2026 Stellar MLS as distributed by the MLS GRID. All Rights Reserved.
Payment Calculator
Interest rate and annual percentage rate (APR) are based on current market conditions, are for informational purposes only, are subject to change without notice and may be subject to pricing add-ons related to property type, loan amount, loan-to-value, credit score and other variables. Estimated closing costs used in the APR calculation are assumed to be paid by the borrower at closing. If the closing costs are financed, the loan, APR and payment amounts will be higher. If the down payment is less than 20%, mortgage insurance may be required and could increase the monthly payment and APR. Contact us for details. Additional loan programs may be available. Accuracy is not guaranteed, and all products may not be available in all borrower's geographical areas and are based on their individual situation. This is not a credit decision or a commitment to lend.
Sales History & Tax Summary for 2786 Armadale Drive
Sales History
| Date | Price | |
|---|---|---|
| Currently not available. | ||
Tax Summary
| Tax Year | Estimated Market Value | Total Tax |
|---|---|---|
| Currently not available. | ||
Data powered by ATTOM Data Solutions. Copyright© 2026. Information deemed reliable but not guaranteed.
Schools
Schools nearby 2786 Armadale Drive
| Schools in attendance boundaries | Grades | Distance | Rating |
|---|---|---|---|
| Loading... | |||
| Schools nearby | Grades | Distance | Rating |
|---|---|---|---|
| Loading... | |||
Data powered by ATTOM Data Solutions. Copyright© 2026. Information deemed reliable but not guaranteed.
The schools shown represent both the assigned schools and schools by distance based on local school and district attendance boundaries. Attendance boundaries change based on various factors and proximity does not guarantee enrollment eligibility. Please consult your real estate agent and/or the school district to confirm the schools this property is zoned to attend. Information is deemed reliable but not guaranteed.
SchoolDigger ® Rating
The SchoolDigger rating system is a 1-5 scale with 5 as the highest rating. SchoolDigger ranks schools based on test scores supplied by each state's Department of Education. They calculate an average standard score by normalizing and averaging each school's test scores across all tests and grades.
Coming soon properties will soon be on the market, but are not yet available for showings.