$415,000
2788 SE Creekwood Terrace Arcadia, FL 34266
For Sale MLS# C7522746
3 beds 2 baths 2,336 sq ft Single Family
Details for 2788 SE Creekwood Terrace
MLS# C7522746
Description for 2788 SE Creekwood Terrace, Arcadia, FL, 34266
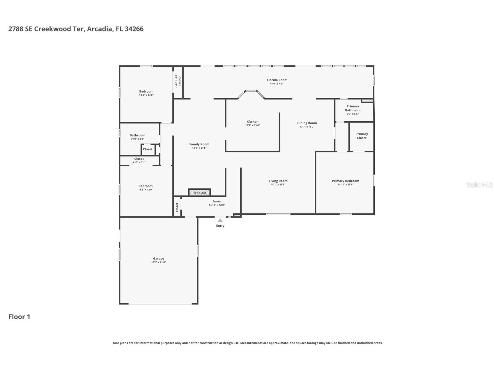
Coastal charm meets country living in this beautiful home that brings all the relaxed, beachy design vibes while sitting in one of DeSoto County’s most sought-after neighborhoods. Tucked along a picturesque road lined with gorgeous homes, this property offers the perfect balance of peaceful surroundings, space to spread out, and a home that feels fresh, bright, and effortlessly welcoming. Inside, the three-bedroom, two-bath split floor plan offers both comfort and functionality. The heart of the home is the incredible kitchen, featuring dual-tone cabinetry and plenty of workspace, all with views straight into the stunning Florida room that stretches almost the entire length of the back of the house. This sun-soaked space is absolutely filled with natural light and is the perfect spot for morning coffee, evening conversations, or simply enjoying the peaceful view of your backyard. The primary suite is spacious and inviting with a walk-in closet and a recently redesigned bathroom featuring gorgeous handpicked tile work and charming beadboard ceilings that tie beautifully into the coastal-inspired style of the home. In addition to the main living area, there is also a separate family room, giving you plenty of flexibility for entertaining, movie nights, a playroom, home office, or whatever fits your lifestyle. Step outside and the fun continues. The backyard is set up for making memories with a pool, a firepit and lounging area, and plenty of room to enjoy the outdoors. There is also a detached garage and an additional outbuilding for storage, tools, or hobbies. And the cherry on top is the privacy behind the home with no rear neighbors. Situated on almost an acre and a half of land, this property offers space, style, and one of the most desirable locations in DeSoto County. With a new roof installed in 2024 and a setting this special, this is the kind of home that’s hard to come by.
Listing Information
Property Type: Residential, Single Family Residence
Status: Active
Bedrooms: 3
Bathrooms: 2
Lot Size: 1.44 Acres
Square Feet: 2,336 sq ft
Year Built: 1983
Garage: Yes
Stories: 1 Story
Construction: Block,Stucco
Subdivision: Joshua Creekwood
Foundation: Crawlspace
County: Desoto
Room Information
Main Floor
Florida Room: 7x48
Bedroom 3: 13x13
Bedroom 2: 14x13
Primary Bedroom: 15x14
Family Room: 24x13
Living Room: 15x18
Dining Room: 13x13
Kitchen: 15x13
Bathrooms
Full Baths: 2
Additonal Room Information
Laundry: In Garage
Interior Features
Appliances: Range, Refrigerator
Flooring: Luxury Vinyl
Basement: Crawl Space
Doors/Windows: Window Treatments
Fireplaces: Electric, Family Room, Free Standing
Additional Interior Features: Split Bedrooms, Eat-In Kitchen, Ceiling Fan(s), Walk-In Closet(s), Window Treatments, Main Level Primary
Utilities
Water: Well
Sewer: Septic Tank
Other Utilities: Electricity Connected
Cooling: Ceiling Fan(s), Central Air
Heating: Central
Exterior / Lot Features
Attached Garage: Attached Garage
Garage Spaces: 2
Parking Description: driveway
Roof: Shingle
Pool: Above Ground
Lot View: Pool,Trees/Woods
Additional Exterior/Lot Features: Private Yard, Fire Pit, Storage, Lighting, Front Porch, Landscaped, Cul-de-Sac, Outside City Limits
Out Buildings: Storage, Shed(s)
Driving Directions
Take HWY 70 E, Turn Right onto HWY 31, Turn Left onto Co Rd 760, Turn Left onto Creekwood Ter, Property will be toward the end on the Right.
Financial Considerations
Terms: Cash,Conventional,FHA,VA Loan
Tax/Property ID: 09-38-25-0203-0000-0190
Tax Amount: 4791.21
Tax Year: 2025
A broker reciprocity listing courtesy: THE WILLIAMSON GROUP REALTY, I
Based on information provided by Stellar MLS as distributed by the MLS GRID. Information from the Internet Data Exchange is provided exclusively for consumers’ personal, non-commercial use, and such information may not be used for any purpose other than to identify prospective properties consumers may be interested in purchasing. This data is deemed reliable but is not guaranteed to be accurate by Edina Realty, Inc., or by the MLS. Edina Realty, Inc., is not a multiple listing service (MLS), nor does it offer MLS access.
Copyright 2026 Stellar MLS as distributed by the MLS GRID. All Rights Reserved.
Payment Calculator
Interest rate and annual percentage rate (APR) are based on current market conditions, are for informational purposes only, are subject to change without notice and may be subject to pricing add-ons related to property type, loan amount, loan-to-value, credit score and other variables. Estimated closing costs used in the APR calculation are assumed to be paid by the borrower at closing. If the closing costs are financed, the loan, APR and payment amounts will be higher. If the down payment is less than 20%, mortgage insurance may be required and could increase the monthly payment and APR. Contact us for details. Additional loan programs may be available. Accuracy is not guaranteed, and all products may not be available in all borrower's geographical areas and are based on their individual situation. This is not a credit decision or a commitment to lend.
Sales History & Tax Summary for 2788 SE Creekwood Terrace
Sales History
| Date | Price | |
|---|---|---|
| Currently not available. | ||
Tax Summary
| Tax Year | Estimated Market Value | Total Tax |
|---|---|---|
| Currently not available. | ||
Data powered by ATTOM Data Solutions. Copyright© 2026. Information deemed reliable but not guaranteed.
Schools
Schools nearby 2788 SE Creekwood Terrace
| Schools in attendance boundaries | Grades | Distance | Rating |
|---|---|---|---|
| Loading... | |||
| Schools nearby | Grades | Distance | Rating |
|---|---|---|---|
| Loading... | |||
Data powered by ATTOM Data Solutions. Copyright© 2026. Information deemed reliable but not guaranteed.
The schools shown represent both the assigned schools and schools by distance based on local school and district attendance boundaries. Attendance boundaries change based on various factors and proximity does not guarantee enrollment eligibility. Please consult your real estate agent and/or the school district to confirm the schools this property is zoned to attend. Information is deemed reliable but not guaranteed.
SchoolDigger ® Rating
The SchoolDigger rating system is a 1-5 scale with 5 as the highest rating. SchoolDigger ranks schools based on test scores supplied by each state's Department of Education. They calculate an average standard score by normalizing and averaging each school's test scores across all tests and grades.
Coming soon properties will soon be on the market, but are not yet available for showings.