2807 Priego Boulevard Kissimmee, FL 34744
For Sale MLS# V4943640
4 beds 3 baths 2,320 sq ft Single Family
Details for 2807 Priego Boulevard
MLS# V4943640
Description for 2807 Priego Boulevard, Kissimmee, FL, 34744
PRICE IMPROVEMENT! Step into refined living in this Energy Star Certified 4 bedroom, 3 bathroom home with a 2 car garage and covered lanai. The open-concept layout features wood-look tile flooring, a gourmet kitchen with 42" cabinets, quartz countertops, stainless steel appliances (including double ovens and cooktop), and a walk-in pantry. Built-in surround system and speakers in the great room. Upstairs, the luxurious Primary Suite offers dual walk-in closets, a granite dual-sink vanity, glass-enclosed shower and a private water closet. All bedrooms and laundry are conventiently located on the second level. Enjoy outdoor gatherings in the peaceful backyard complete with a built-in fireplace. Located near SR417 and Florida's Turnpike, in the desirable Marbella community with resort-style amenities: pool, cabana, dog park, and playground. Schedule your private tour and experience elevated everyday living!
Listing Information
Property Type: Residential, Single Family Residence
Status: Active
Bedrooms: 4
Bathrooms: 3
Lot Size: 0.11 Acres
Square Feet: 2,320 sq ft
Year Built: 2019
Garage: Yes
Stories: 2 Story
Construction: Block,Stucco,Wood Frame
Subdivision: Marbella Ph 1
Foundation: Slab
County: Osceola
School Information
Elementary: East Lake Elem
Middle: Neptune Middle (6-8)
High: Tohopekaliga High School
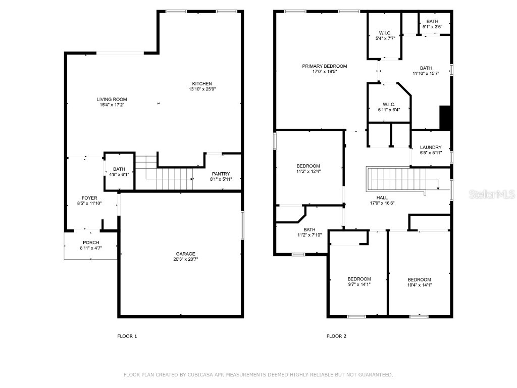
Room Information
Main Floor
Porch: 7x16
Great Room: 16x16
Dinette: 11x13
Kitchen: 15x13
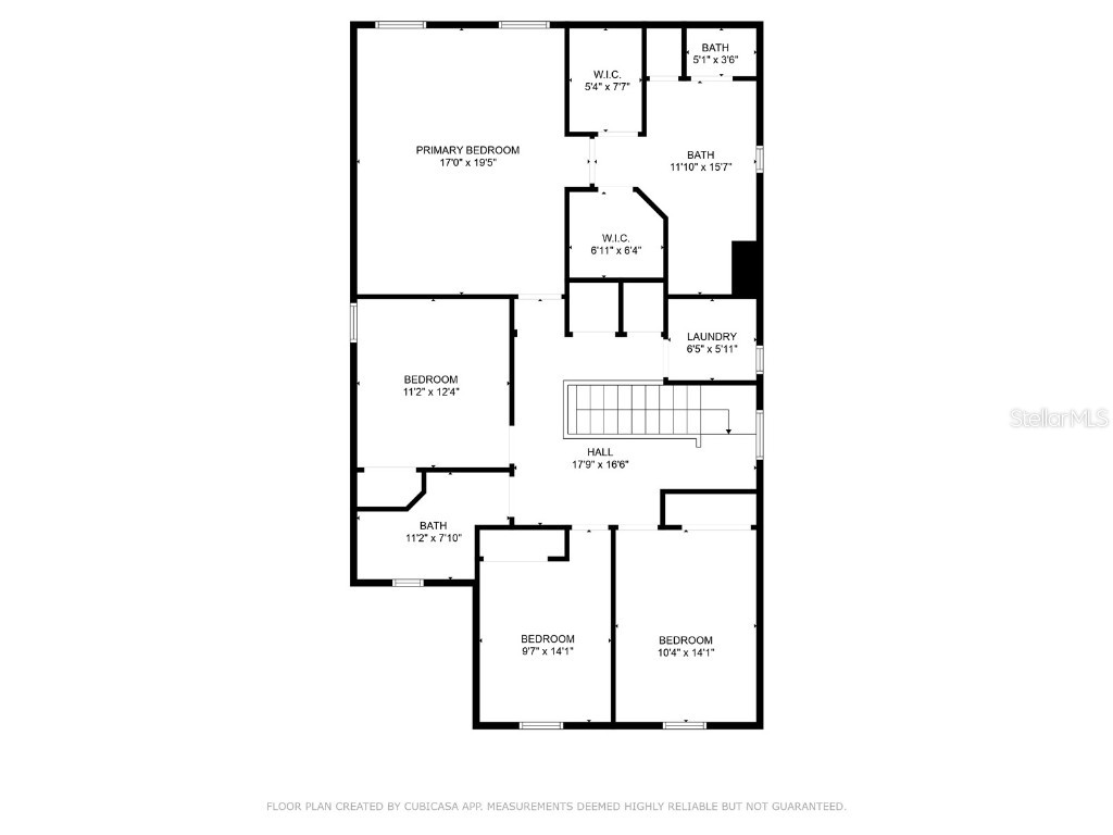
Upper Floor
Bedroom 4: 12x10
Bedroom 3: 11x10
Bedroom 2: 12x11
Primary Bedroom: 18x15
Bathrooms
Full Baths: 2
1/2 Baths: 1
Additonal Room Information
Laundry: Washer Hookup, Upper Level, Electric Dryer Hookup
Interior Features
Appliances: Built-In Oven, Electric Water Heater, Cooktop, Dishwasher, Disposal, Microwave, Refrigerator
Flooring: Carpet,Tile
Additional Interior Features: Eat-In Kitchen, Built-in Features, Walk-In Closet(s), Wood Cabinets, Kitchen/Family Room Combo, Open Floorplan, Stone Counters
Utilities
Water: Public
Sewer: Public Sewer
Other Utilities: Cable Connected,Electricity Connected,High Speed Internet Available,Municipal Utilities,Sewer Connected,Water Connected
Cooling: Central Air
Heating: Central
Exterior / Lot Features
Attached Garage: Attached Garage
Garage Spaces: 2
Roof: Shingle
Pool: Community
Additional Exterior/Lot Features: Sprinkler/Irrigation
Community Features
Community Features: Sidewalks, Pool, Playground
Homeowners Association: Yes
HOA Dues: $90 / Monthly
Driving Directions
From East Osceola Parkway, turn right onto Simpson Road (FL-530). Go down about half a mile and the Marbella Community will be on your left.
Financial Considerations
Terms: Cash,Conventional,FHA,VA Loan
Tax/Property ID: 05-25-30-4026-0001-0020
Tax Amount: 5447
Tax Year: 2024
A broker reciprocity listing courtesy: LOCAL LIVING REALTY GROUP
Based on information provided by Stellar MLS as distributed by the MLS GRID. Information from the Internet Data Exchange is provided exclusively for consumers’ personal, non-commercial use, and such information may not be used for any purpose other than to identify prospective properties consumers may be interested in purchasing. This data is deemed reliable but is not guaranteed to be accurate by Edina Realty, Inc., or by the MLS. Edina Realty, Inc., is not a multiple listing service (MLS), nor does it offer MLS access.
Copyright 2025 Stellar MLS as distributed by the MLS GRID. All Rights Reserved.
Payment Calculator
Interest rate and annual percentage rate (APR) are based on current market conditions, are for informational purposes only, are subject to change without notice and may be subject to pricing add-ons related to property type, loan amount, loan-to-value, credit score and other variables. Estimated closing costs used in the APR calculation are assumed to be paid by the borrower at closing. If the closing costs are financed, the loan, APR and payment amounts will be higher. If the down payment is less than 20%, mortgage insurance may be required and could increase the monthly payment and APR. Contact us for details. Additional loan programs may be available. Accuracy is not guaranteed, and all products may not be available in all borrower's geographical areas and are based on their individual situation. This is not a credit decision or a commitment to lend.
Sales History & Tax Summary for 2807 Priego Boulevard
Sales History
| Date | Price | Change |
|---|---|---|
| Currently not available. | ||
Tax Summary
| Tax Year | Estimated Market Value | Total Tax |
|---|---|---|
| Currently not available. | ||
Data powered by ATTOM Data Solutions. Copyright© 2025. Information deemed reliable but not guaranteed.
Schools
Schools nearby 2807 Priego Boulevard
| Schools in attendance boundaries | Grades | Distance | Rating |
|---|---|---|---|
| Loading... | |||
| Schools nearby | Grades | Distance | Rating |
|---|---|---|---|
| Loading... | |||
Data powered by ATTOM Data Solutions. Copyright© 2025. Information deemed reliable but not guaranteed.
The schools shown represent both the assigned schools and schools by distance based on local school and district attendance boundaries. Attendance boundaries change based on various factors and proximity does not guarantee enrollment eligibility. Please consult your real estate agent and/or the school district to confirm the schools this property is zoned to attend. Information is deemed reliable but not guaranteed.
SchoolDigger ® Rating
The SchoolDigger rating system is a 1-5 scale with 5 as the highest rating. SchoolDigger ranks schools based on test scores supplied by each state's Department of Education. They calculate an average standard score by normalizing and averaging each school's test scores across all tests and grades.
Coming soon properties will soon be on the market, but are not yet available for showings.