$139,900
2809 Granada Court #5 Lake Wales, FL 33898
For Sale MLS# K4902898
2 beds 2 baths 1,185 sq ft Condo
Details for 2809 Granada Court #5
MLS# K4902898
Description for 2809 Granada Court #5, Lake Wales, FL, 33898
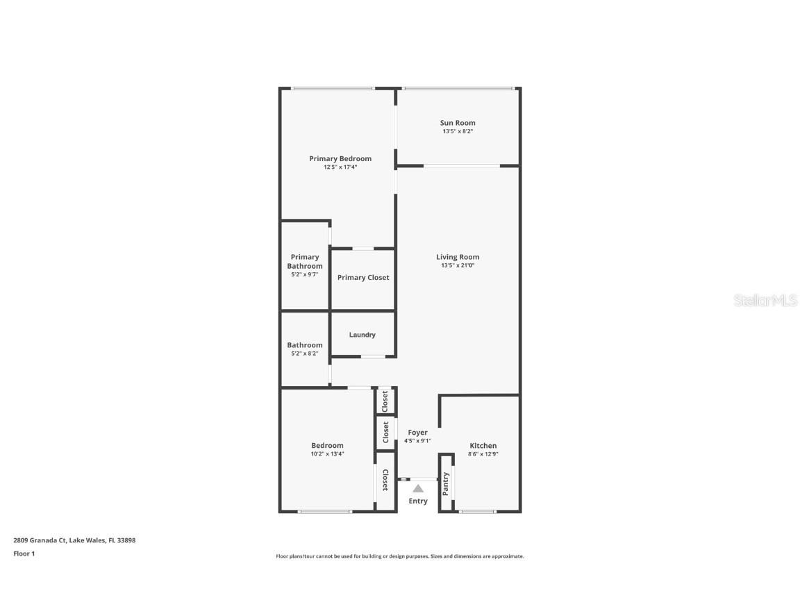
Well maintained and move-in ready, this two bedroom, two bathroom second floor condo is located in the 55+ community of Granada Condos and has a NEW METAL ROOF! The kitchen has all wood cabinets, comes with a complete appliance package, and is adjacent to the dining room. The main living areas of the home have beautiful NEW LUXURY VINYL PLANK FLOORING! You'll love the owners suite, with it's large walk-in closet and ensuite bathroom, plus it's private access to the Florida room. Your guests will enjoy their own room and guest bathroom. The spacious laundry room comes complete with a washer and dryer. The large Florida room at the back of the home has a scenic view of majestic oaks and the community pool. There's extra storage in the attic for all your treasures, and ease of access with the pull-down staircase. The low monthly condo fee covers maintenance of the exterior of the building and amenities, as well as cable, internet and pest control. Come for the winter or live here year round! This is the best value in the complex so call now to schedule your private tour.
Listing Information
Property Type: Residential, Condominium
Status: Active
Bedrooms: 2
Bathrooms: 2
Lot Size: 0.02 Acres
Square Feet: 1,185 sq ft
Year Built: 1992
Stories: 1 Story
Construction: Block,Stucco
Subdivision: Granada Land Condo
Foundation: Slab
County: Polk
Room Information
Main Floor
Florida Room: 13x8
Utility Room: 7x6
Bedroom 2: 13x10
Primary Bedroom: 13x13
Living Room:
Dining Room:
Kitchen: 13x8
Bathrooms
Full Baths: 2
Additonal Room Information
Laundry: Laundry Room
Interior Features
Appliances: Washer, Microwave, Range, Refrigerator, Dishwasher, Disposal, Dryer
Flooring: Ceramic Tile,Laminate,Linoleum
Doors/Windows: Window Treatments
Additional Interior Features: Ceiling Fan(s), Solid Surface Counters, Attic
Utilities
Water: Public
Sewer: Public Sewer
Other Utilities: Cable Connected,Electricity Connected,Sewer Connected,Water Connected
Cooling: Ceiling Fan(s), Central Air
Heating: Central
Exterior / Lot Features
Roof: Metal
Pool: Community, Association
Additional Exterior/Lot Features: Outdoor Grill, Outdoor Shower, Front Porch, Covered
Community Features
Community Features: Sidewalks, Street Lights, Community Mailbox
Association Amenities: Pool, Cable TV
HOA Dues Include: Internet, Trash, Maintenance Structure, Pool(s), Maintenance Grounds, Pest Control
Driving Directions
From Lake Wales, go east on Hwy. 60, turn right on Doherty Drive, then right on Leisure Ln. Turn left on Granada Ct, unit will be on the end building on the right.
Financial Considerations
Terms: Cash,Conventional,FHA,VA Loan
Tax/Property ID: 29-30-21-992867-008050
Tax Amount: 440
Tax Year: 2024
A broker reciprocity listing courtesy: BENDER REALTY, LLC
Based on information provided by Stellar MLS as distributed by the MLS GRID. Information from the Internet Data Exchange is provided exclusively for consumers’ personal, non-commercial use, and such information may not be used for any purpose other than to identify prospective properties consumers may be interested in purchasing. This data is deemed reliable but is not guaranteed to be accurate by Edina Realty, Inc., or by the MLS. Edina Realty, Inc., is not a multiple listing service (MLS), nor does it offer MLS access.
Copyright 2025 Stellar MLS as distributed by the MLS GRID. All Rights Reserved.
Payment Calculator
Interest rate and annual percentage rate (APR) are based on current market conditions, are for informational purposes only, are subject to change without notice and may be subject to pricing add-ons related to property type, loan amount, loan-to-value, credit score and other variables. Estimated closing costs used in the APR calculation are assumed to be paid by the borrower at closing. If the closing costs are financed, the loan, APR and payment amounts will be higher. If the down payment is less than 20%, mortgage insurance may be required and could increase the monthly payment and APR. Contact us for details. Additional loan programs may be available. Accuracy is not guaranteed, and all products may not be available in all borrower's geographical areas and are based on their individual situation. This is not a credit decision or a commitment to lend.
Sales History & Tax Summary for 2809 Granada Court #5
Sales History
| Date | Price | Change |
|---|---|---|
| Currently not available. | ||
Tax Summary
| Tax Year | Estimated Market Value | Total Tax |
|---|---|---|
| Currently not available. | ||
Data powered by ATTOM Data Solutions. Copyright© 2025. Information deemed reliable but not guaranteed.
Schools
Schools nearby 2809 Granada Court #5
| Schools in attendance boundaries | Grades | Distance | Rating |
|---|---|---|---|
| Loading... | |||
| Schools nearby | Grades | Distance | Rating |
|---|---|---|---|
| Loading... | |||
Data powered by ATTOM Data Solutions. Copyright© 2025. Information deemed reliable but not guaranteed.
The schools shown represent both the assigned schools and schools by distance based on local school and district attendance boundaries. Attendance boundaries change based on various factors and proximity does not guarantee enrollment eligibility. Please consult your real estate agent and/or the school district to confirm the schools this property is zoned to attend. Information is deemed reliable but not guaranteed.
SchoolDigger ® Rating
The SchoolDigger rating system is a 1-5 scale with 5 as the highest rating. SchoolDigger ranks schools based on test scores supplied by each state's Department of Education. They calculate an average standard score by normalizing and averaging each school's test scores across all tests and grades.
Coming soon properties will soon be on the market, but are not yet available for showings.