2810 9th Street Englewood, FL 34224
Pending MLS# N6141025
3 beds 2 baths 1,628 sq ft Single Family
Details for 2810 9th Street
MLS# N6141025
Description for 2810 9th Street, Englewood, FL, 34224
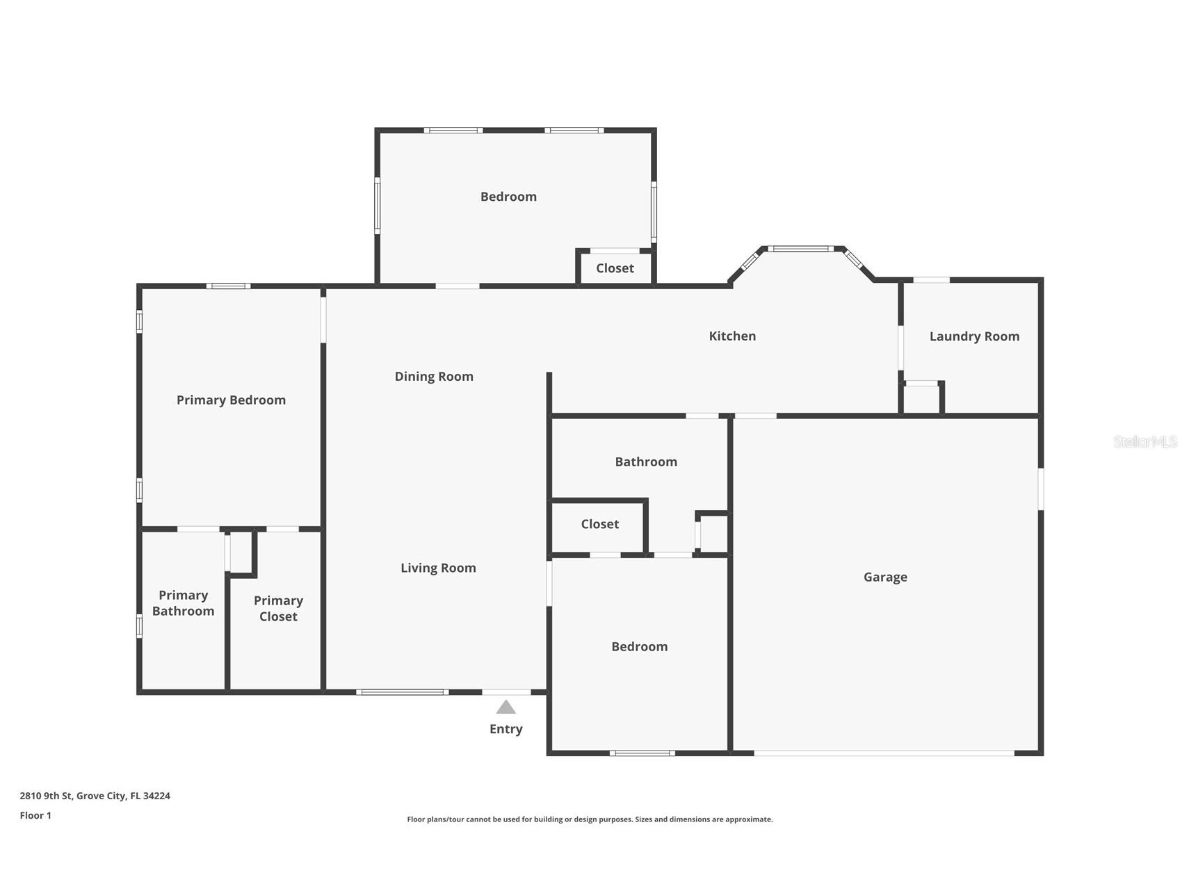
Under contract-accepting backup offers. One or more photo(s) has been virtually staged. Do not miss this spacious newly remodeled 3-bedroom 2 bath, 2 car garage home in the sought-after Grove city area of Englewood. Great Location! New roof in 2024, Newer Ac in 2019 and Water heater in 2020. The large living room flows seamlessly into the dining area. The master bedroom boasts a generously sized walk-in closet, private en-suite bathroom with a beautifully tiled walk-in shower. The split-floor plan offers privacy with the 2nd and 3rd bedrooms off each end of the living room sharing the guest bath and beautifully tiled walk-in shower. Walk into the updated kitchen with all new cabinets, new appliances and new granite countertops flowing into the cozy breakfast nook with easy access to the interior laundry room with added functionality. Enjoy a drink at the fire pit in the spacious backyard next to your fully mature mango tree with fresh mangos ready to be picked during season. Blocks away from great local bars, restaurants and just minutes to shopping and downtown Dearborn Street. No deed restrictions or HOA fees. Located in flood Zone X, which most insurance carriers don’t require flood insurance. Minutes to Englewood Public beach (4.3 mi) and Ainger creek park public boat launch (1.4 mi) or keep your boat across the street at Stump Pass marina or join the boat club and enjoy lunch at Lighthouse Grill. Do not miss this opportunity to make this Grove City gem your own. Seller is very motivated!
Listing Information
Property Type: Residential, Single Family Residence
Status: Pending
Bedrooms: 3
Bathrooms: 2
Lot Size: 0.17 Acres
Square Feet: 1,628 sq ft
Year Built: 1995
Garage: Yes
Stories: 1 Story
Construction: Block
Subdivision: Grove City
Foundation: Slab
County: Charlotte
School Information
Elementary: Englewood Elementary
Middle: Sky Academy Englewood
High: Lemon Bay High
Room Information
Main Floor
Kitchen:
Living Room:
Bedroom 3:
Bedroom 2:
Primary Bedroom:
Bathrooms
Full Baths: 2
Additonal Room Information
Laundry: Inside, Laundry Room
Interior Features
Appliances: Electric Water Heater, Dishwasher, Dryer, Microwave, Range, Refrigerator, Washer
Flooring: Ceramic Tile,Luxury Vinyl
Additional Interior Features: Walk-In Closet(s), Cathedral Ceiling(s)
Utilities
Water: Public
Sewer: Public Sewer
Other Utilities: Cable Available,Electricity Connected,High Speed Internet Available
Cooling: Attic Fan, Central Air
Heating: Electric, Heat Pump, Central
Exterior / Lot Features
Attached Garage: Attached Garage
Garage Spaces: 2
Roof: Shingle
Lot Dimensions: 75x100
Additional Exterior/Lot Features: Rain Gutters, Storm/Security Shutters
Driving Directions
Follow N River Rd/FL-777 8.1 mi, about 11 min Turn left onto Pine St about 0.2 mi, less than 1 min Follow Pine St 3.2 mi, about 6 min Turn left onto Massachusetts Ave about 0.1 mi, less than 1 min Turn right onto 9th St about 0.1 mi, less than 1 min You have arrived at 9th St B 2810 9th St, Englewood, FL 34224
Financial Considerations
Terms: Cash,Conventional,FHA,VA Loan
Tax/Property ID: 412017213006
Tax Amount: 2714.85
Tax Year: 2024
A broker reciprocity listing courtesy: ACCARDI & ASSOCIATES REAL ESTA
Based on information provided by Stellar MLS as distributed by the MLS GRID. Information from the Internet Data Exchange is provided exclusively for consumers’ personal, non-commercial use, and such information may not be used for any purpose other than to identify prospective properties consumers may be interested in purchasing. This data is deemed reliable but is not guaranteed to be accurate by Edina Realty, Inc., or by the MLS. Edina Realty, Inc., is not a multiple listing service (MLS), nor does it offer MLS access.
Copyright 2026 Stellar MLS as distributed by the MLS GRID. All Rights Reserved.
Sales History & Tax Summary for 2810 9th Street
Sales History
| Date | Price | |
|---|---|---|
| Currently not available. | ||
Tax Summary
| Tax Year | Estimated Market Value | Total Tax |
|---|---|---|
| Currently not available. | ||
Data powered by ATTOM Data Solutions. Copyright© 2026. Information deemed reliable but not guaranteed.
Schools
Schools nearby 2810 9th Street
| Schools in attendance boundaries | Grades | Distance | Rating |
|---|---|---|---|
| Loading... | |||
| Schools nearby | Grades | Distance | Rating |
|---|---|---|---|
| Loading... | |||
Data powered by ATTOM Data Solutions. Copyright© 2026. Information deemed reliable but not guaranteed.
The schools shown represent both the assigned schools and schools by distance based on local school and district attendance boundaries. Attendance boundaries change based on various factors and proximity does not guarantee enrollment eligibility. Please consult your real estate agent and/or the school district to confirm the schools this property is zoned to attend. Information is deemed reliable but not guaranteed.
SchoolDigger ® Rating
The SchoolDigger rating system is a 1-5 scale with 5 as the highest rating. SchoolDigger ranks schools based on test scores supplied by each state's Department of Education. They calculate an average standard score by normalizing and averaging each school's test scores across all tests and grades.
Coming soon properties will soon be on the market, but are not yet available for showings.