2814 Osprey Cove Place #104 Kissimmee, FL 34746
For Sale MLS# G5106891
3 beds 2 baths 1,136 sq ft Condo
Details for 2814 Osprey Cove Place #104
MLS# G5106891
Description for 2814 Osprey Cove Place #104, Kissimmee, FL, 34746
Don’t miss this beautiful ground-floor, end-unit condo located in the community of Osprey Cove at The Oaks. This spacious 3-bedroom, 2-bathroom residence offers serene views of majestic oak trees, the golf course, pool and nearby tennis and pickleball courts, creating a peaceful backdrop for everyday living. The home has been thoughtfully refreshed and is truly move-in ready, with an updated kitchen, new A/C unit and dual-pane hurricane resistant windows. The bright, open layout is enhanced by the abundant natural light. The kitchen offers ample cabinetry, stainless steel appliances, making it both functional and inviting. The generous primary suite includes sliding glass doors to the screened rear lanai, a walk-in closet, dual vanities. Two additional bedrooms provide flexibility for guests, home office space, or rental potential. Additional conveniences include an in-unit laundry closet, and excellent flow for everyday living or entertaining. Enjoy resort-style amenities including a community pool, tennis courts, and golf course living, all while being ideally located near shopping, dining, major highways, and world-renowned Central Florida attractions. Whether you’re seeking a primary residence, first home, or investment opportunity, this condo offers an exceptional blend of comfort, location, and lifestyle. Schedule your private showing today.
Listing Information
Property Type: Residential, Condominium
Status: Active
Bedrooms: 3
Bathrooms: 2
Lot Size: 0.11 Acres
Square Feet: 1,136 sq ft
Year Built: 1998
Stories: 1 Story
Construction: Block,Stucco
Subdivision: Osprey Cove At The Oaks Condo Ph 5
Foundation: Slab
County: Osceola
School Information
Elementary: Pleasant Hill Elem
Middle: Horizon Middle
High: Liberty High
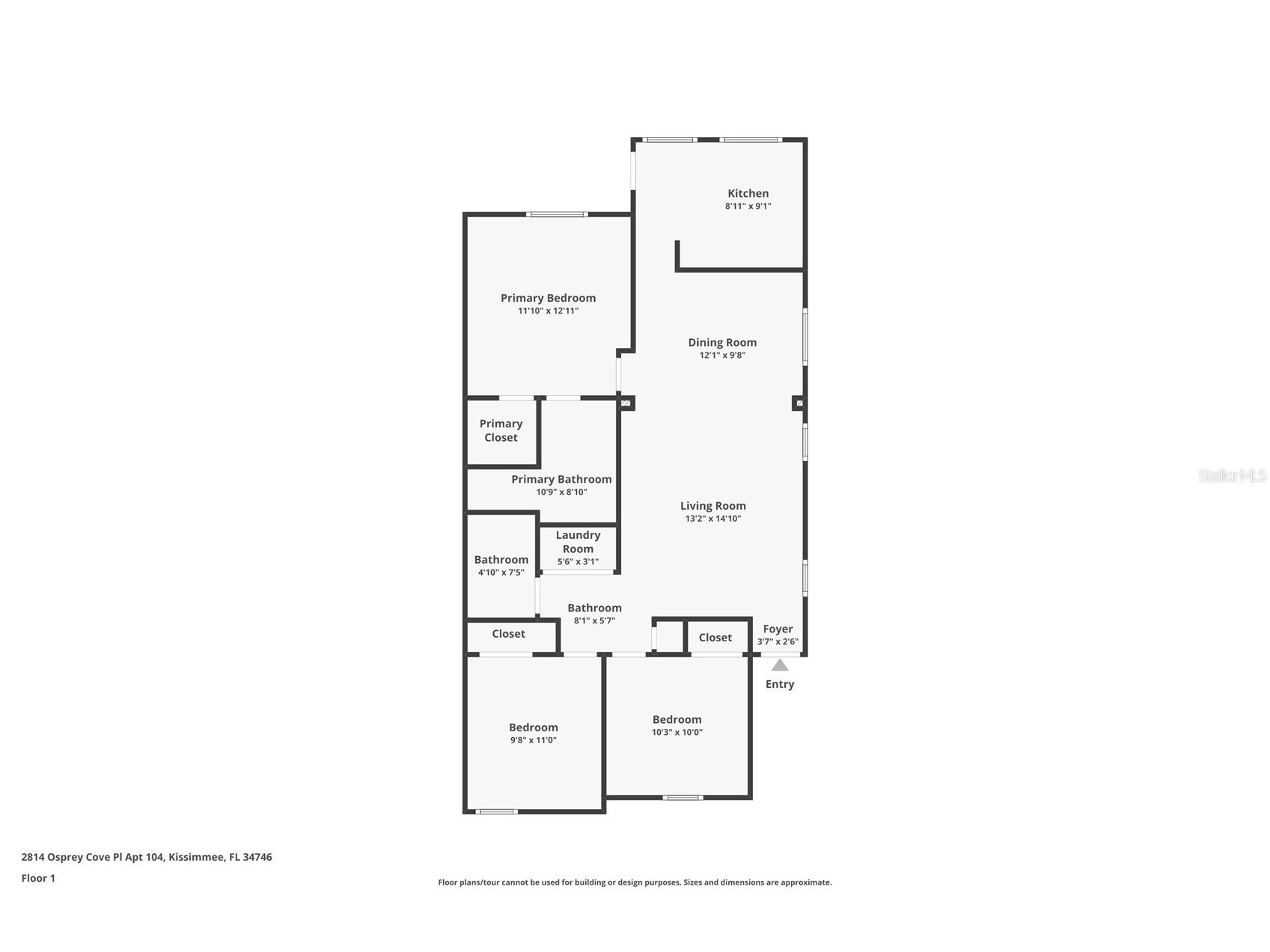
Room Information
Main Floor
Laundry: 3x6
Foyer: 3x4
Bathroom 2: 8x5
Bedroom 3: 11x10
Bedroom 2: 10x10
Primary Bathroom: 9x11
Primary Bedroom: 13x12
Kitchen: 9x9
Dining Room: 10x12
Living Room: 15x13
Bathrooms
Full Baths: 2
Additonal Room Information
Laundry: Inside, Laundry Closet, Electric Dryer Hookup, Common On Floor
Interior Features
Appliances: Electric Water Heater, Range, Refrigerator, Microwave
Flooring: Ceramic Tile
Additional Interior Features: Ceiling Fan(s), Built-in Features, Open Floorplan, Stone Counters, Wood Cabinets
Utilities
Water: Public
Sewer: Public Sewer
Other Utilities: Cable Connected,Electricity Connected,Municipal Utilities,Sewer Connected,Water Connected
Cooling: Ceiling Fan(s), Central Air
Heating: Electric
Exterior / Lot Features
Roof: Tile
Pool: Community
Lot View: Golf Course
Additional Exterior/Lot Features: Screened, Rear Porch
Community Features
Community Features: Pool, Tennis Court(s), Street Lights, Gated
Security Features: Gated Community
HOA Dues Include: Maintenance Grounds, Maintenance Structure, Pool(s)
Homeowners Association: Yes
HOA Dues: $250 / Monthly
Driving Directions
From US-17 S/US-92 W/John Young Pkwy, turn onto The Oaks Blvd, Turn right to stay on The Oaks Blvd., Turn left onto Osprey Cove Pl, Turn left to stay on Osprey Cove Pl, condo is straight ahead.
Financial Considerations
Terms: Cash,Conventional
Tax/Property ID: 32-25-29-4629-0001-1040
Tax Amount: 3315.55
Tax Year: 2025
A broker reciprocity listing courtesy: KELLER WILLIAMS ELITE PARTNERS III REALTY
Based on information provided by Stellar MLS as distributed by the MLS GRID. Information from the Internet Data Exchange is provided exclusively for consumers’ personal, non-commercial use, and such information may not be used for any purpose other than to identify prospective properties consumers may be interested in purchasing. This data is deemed reliable but is not guaranteed to be accurate by Edina Realty, Inc., or by the MLS. Edina Realty, Inc., is not a multiple listing service (MLS), nor does it offer MLS access.
Copyright 2026 Stellar MLS as distributed by the MLS GRID. All Rights Reserved.
Payment Calculator
Interest rate and annual percentage rate (APR) are based on current market conditions, are for informational purposes only, are subject to change without notice and may be subject to pricing add-ons related to property type, loan amount, loan-to-value, credit score and other variables. Estimated closing costs used in the APR calculation are assumed to be paid by the borrower at closing. If the closing costs are financed, the loan, APR and payment amounts will be higher. If the down payment is less than 20%, mortgage insurance may be required and could increase the monthly payment and APR. Contact us for details. Additional loan programs may be available. Accuracy is not guaranteed, and all products may not be available in all borrower's geographical areas and are based on their individual situation. This is not a credit decision or a commitment to lend.
Sales History & Tax Summary for 2814 Osprey Cove Place #104
Sales History
| Date | Price | |
|---|---|---|
| Currently not available. | ||
Tax Summary
| Tax Year | Estimated Market Value | Total Tax |
|---|---|---|
| Currently not available. | ||
Data powered by ATTOM Data Solutions. Copyright© 2026. Information deemed reliable but not guaranteed.
Schools
Schools nearby 2814 Osprey Cove Place #104
| Schools in attendance boundaries | Grades | Distance | Rating |
|---|---|---|---|
| Loading... | |||
| Schools nearby | Grades | Distance | Rating |
|---|---|---|---|
| Loading... | |||
Data powered by ATTOM Data Solutions. Copyright© 2026. Information deemed reliable but not guaranteed.
The schools shown represent both the assigned schools and schools by distance based on local school and district attendance boundaries. Attendance boundaries change based on various factors and proximity does not guarantee enrollment eligibility. Please consult your real estate agent and/or the school district to confirm the schools this property is zoned to attend. Information is deemed reliable but not guaranteed.
SchoolDigger ® Rating
The SchoolDigger rating system is a 1-5 scale with 5 as the highest rating. SchoolDigger ranks schools based on test scores supplied by each state's Department of Education. They calculate an average standard score by normalizing and averaging each school's test scores across all tests and grades.
Coming soon properties will soon be on the market, but are not yet available for showings.