283 Willow View Drive Davenport, FL 33896
For Sale MLS# S5123398
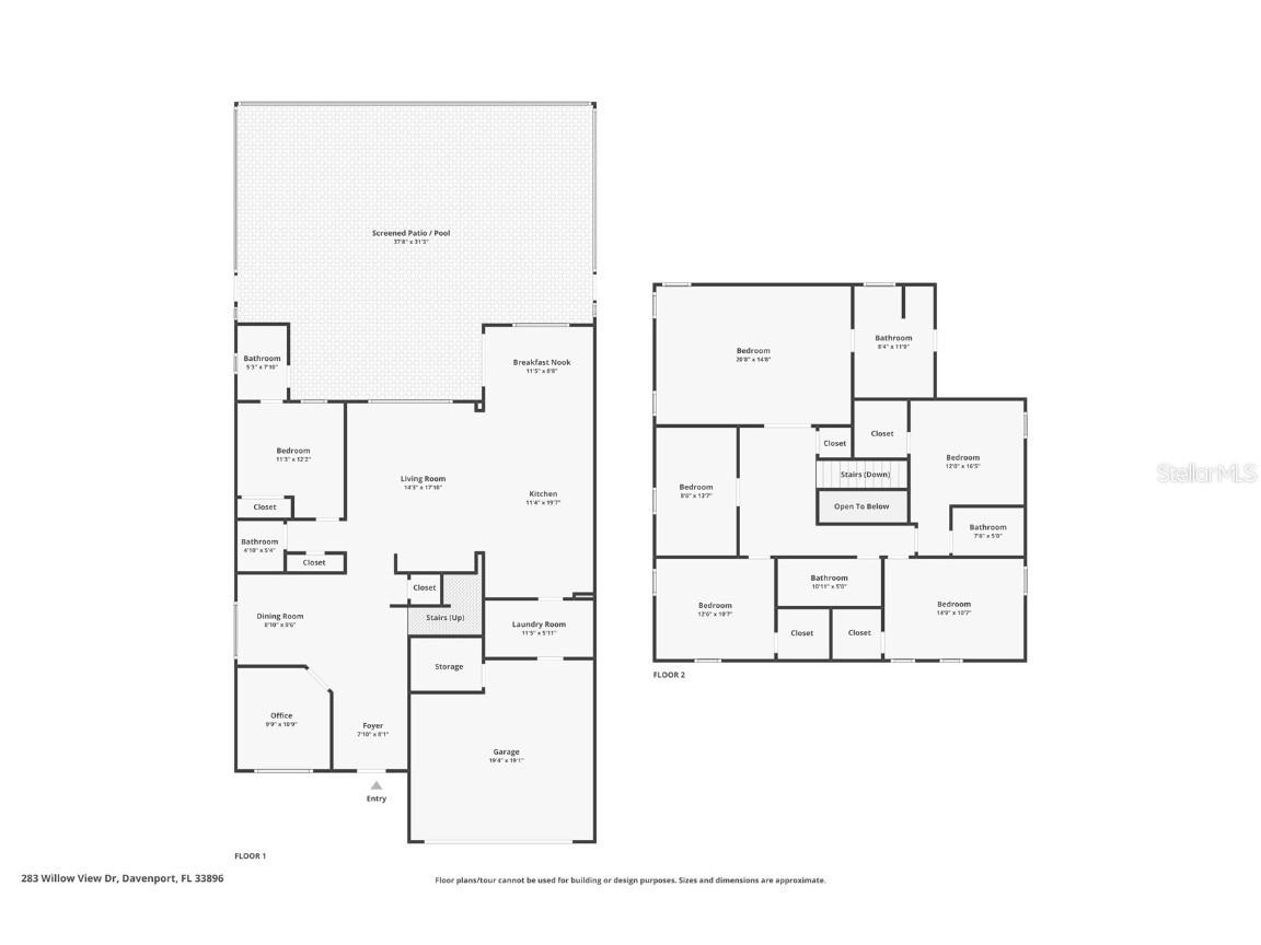
7 beds 5 baths 3,102 sq ft Single Family
Details for 283 Willow View Drive
MLS# S5123398
Description for 283 Willow View Drive, Davenport, FL, 33896
This magnificent, fully furnished 7-bedroom, 4.5-bathroom home with a new roof and fresh paint inside and out in the sought-after Windwood Bay is a must-see! Envision sun-drenched afternoons spent by the pool, unwinding in your private screened-in pool and spa, while the children (or the young at heart!) achieve high scores in the converted garage games room. Perfectly positioned for adventure, this sanctuary is mere moments from Central Florida's magical theme parks, tantalising dining options, and upscale shopping, ensuring every day is filled with unforgettable memories. This is more than just a home; it's your personal slice of paradise, ready for your full-time residence, second home, or short-term holiday rental property.
Listing Information
Property Type: Residential, Single Family Residence
Status: Active
Bedrooms: 7
Bathrooms: 5
Lot Size: 0.13 Acres
Square Feet: 3,102 sq ft
Year Built: 2004
Garage: Yes
Stories: 2 Story
Construction: Stucco
Subdivision: Windwood Bay
Foundation: Slab
County: Polk
Room Information
Main Floor
Kitchen: 19x11
Bedroom 3: 10x9
Bedroom 2: 12x11
Dining Room: 9x8
Living Room: 17x14
Upper Floor
Bedroom: 13x8
Bedroom: 10x12
Bedroom 5: 10x14
Bedroom 4: 16x12
Primary Bedroom: 14x20
Bathrooms
Full Baths: 4
1/2 Baths: 1
Additonal Room Information
Laundry: Laundry Room
Interior Features
Appliances: Microwave, Dishwasher, Dryer, Range, Refrigerator, Washer
Flooring: Carpet,Tile
Additional Interior Features: Ceiling Fan(s)
Utilities
Water: Public
Sewer: Public Sewer
Other Utilities: Cable Available,Electricity Available,High Speed Internet Available,Municipal Utilities,Phone Available,Water Available
Cooling: Ceiling Fan(s), Central Air
Heating: Central, Electric
Exterior / Lot Features
Attached Garage: Attached Garage
Garage Spaces: 2
Roof: Shingle
Pool: In Ground, Other, Screen Enclosure
Lot View: Trees/Woods
Community Features
Community Features: None, Sidewalks
HOA Dues Include: Other
Homeowners Association: Yes
HOA Dues: $680 / Annually
Driving Directions
Follow I-4 W to Champions Gate Blvd/Osceola Polk Line Rd in Four Corners. Take exit 58 from I-4 W. Take Heritage Pass to Willow View Dr in Polk County
Financial Considerations
Terms: Cash,Conventional,FHA,VA Loan
Tax/Property ID: 27-26-04-701107-002090
Tax Amount: 5172.65
Tax Year: 2024
A broker reciprocity listing courtesy: TEAM DONOVAN
Based on information provided by Stellar MLS as distributed by the MLS GRID. Information from the Internet Data Exchange is provided exclusively for consumers’ personal, non-commercial use, and such information may not be used for any purpose other than to identify prospective properties consumers may be interested in purchasing. This data is deemed reliable but is not guaranteed to be accurate by Edina Realty, Inc., or by the MLS. Edina Realty, Inc., is not a multiple listing service (MLS), nor does it offer MLS access.
Copyright 2026 Stellar MLS as distributed by the MLS GRID. All Rights Reserved.
Payment Calculator
Interest rate and annual percentage rate (APR) are based on current market conditions, are for informational purposes only, are subject to change without notice and may be subject to pricing add-ons related to property type, loan amount, loan-to-value, credit score and other variables. Estimated closing costs used in the APR calculation are assumed to be paid by the borrower at closing. If the closing costs are financed, the loan, APR and payment amounts will be higher. If the down payment is less than 20%, mortgage insurance may be required and could increase the monthly payment and APR. Contact us for details. Additional loan programs may be available. Accuracy is not guaranteed, and all products may not be available in all borrower's geographical areas and are based on their individual situation. This is not a credit decision or a commitment to lend.
Sales History & Tax Summary for 283 Willow View Drive
Sales History
| Date | Price | |
|---|---|---|
| Currently not available. | ||
Tax Summary
| Tax Year | Estimated Market Value | Total Tax |
|---|---|---|
| Currently not available. | ||
Data powered by ATTOM Data Solutions. Copyright© 2026. Information deemed reliable but not guaranteed.
Schools
Schools nearby 283 Willow View Drive
| Schools in attendance boundaries | Grades | Distance | Rating |
|---|---|---|---|
| Loading... | |||
| Schools nearby | Grades | Distance | Rating |
|---|---|---|---|
| Loading... | |||
Data powered by ATTOM Data Solutions. Copyright© 2026. Information deemed reliable but not guaranteed.
The schools shown represent both the assigned schools and schools by distance based on local school and district attendance boundaries. Attendance boundaries change based on various factors and proximity does not guarantee enrollment eligibility. Please consult your real estate agent and/or the school district to confirm the schools this property is zoned to attend. Information is deemed reliable but not guaranteed.
SchoolDigger ® Rating
The SchoolDigger rating system is a 1-5 scale with 5 as the highest rating. SchoolDigger ranks schools based on test scores supplied by each state's Department of Education. They calculate an average standard score by normalizing and averaging each school's test scores across all tests and grades.
Coming soon properties will soon be on the market, but are not yet available for showings.