2896 Coldwater Lane North Port, FL 34286
For Sale MLS# A4688780
2 beds 2 baths 1,043 sq ft Single Family
Details for 2896 Coldwater Lane
MLS# A4688780
Description for 2896 Coldwater Lane, North Port, FL, 34286
Located at 2896 Coldwater Drive in the heart of North Port, this fully updated 2-bedroom, 2-bathroom home offers 1,043 sq ft of modern living and is one of the most affordable pool homes in North Port, Florida. Priced at $255,000, this move-in-ready property is perfect for first-time buyers, investors, or anyone searching for an affordable Florida home with a private pool. This North Port home for sale features a completely renovated interior including an updated kitchen, remodeled bathrooms, new flooring, and a clean, modern design throughout. The open living space flows seamlessly, creating a functional layout ideal for everyday living or rental potential. Step outside to your private backyard oasis featuring a vinyl pool with a custom wood deck—perfect for entertaining, relaxing, or enjoying the Florida lifestyle year-round. A rare bonus feature is the custom-built skate ramp, making this one of the most unique homes for sale in North Port FL. This property is connected to city water, a highly desirable feature in North Port real estate that adds long-term value and eliminates the need for well maintenance. Located in Sarasota County, this home is just minutes to shopping, dining, schools, and a short drive to Gulf Coast beaches, including Siesta Key Beach and Englewood Beach. If you’re looking for a North Port Florida pool home, affordable homes in North Port under $300k, or a move-in-ready Florida home with upgrades, this is a rare opportunity you don’t want to miss.
Listing Information
Property Type: Residential, Single Family Residence
Status: Active
Bedrooms: 2
Bathrooms: 2
Lot Size: 0.28 Acres
Square Feet: 1,043 sq ft
Year Built: 1993
Garage: Yes
Stories: 1 Story
Construction: Block,Concrete,Stucco
Subdivision: Port Charlotte Sub 05
Foundation: Slab
County: Sarasota
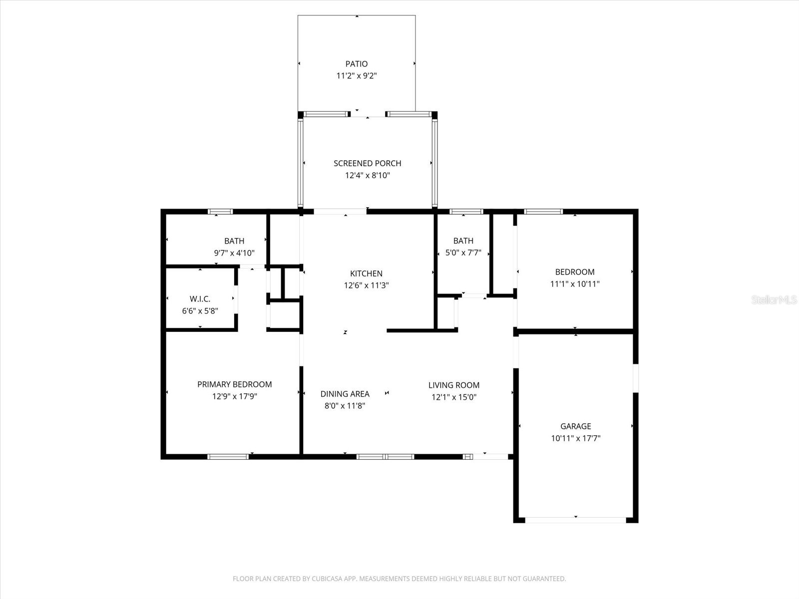
Room Information
Main Floor
Bedroom 1: 11x11
Primary Bedroom: 18x13
Kitchen: 12x12.5
Dining Room: 12x8
Living Room: 15x12
Bathrooms
Full Baths: 2
Additonal Room Information
Laundry: Laundry Closet
Interior Features
Appliances: Water Softener, Convection Oven, Exhaust Fan, Washer, Dishwasher, Disposal, Dryer, Microwave, Electric Water Heater
Flooring: Luxury Vinyl,Tile
Doors/Windows: Window Treatments
Additional Interior Features: Ceiling Fan(s), Window Treatments, Main Level Primary, Split Bedrooms, Walk-In Closet(s), Open Floorplan, Solid Surface Counters, Stone Counters
Utilities
Water: Public
Sewer: Septic Tank
Other Utilities: Cable Available,Cable Connected,Electricity Available,Electricity Connected,Fiber Optic Available,High Speed Internet Available,Water Available,Water Connected
Cooling: Central Air, Ceiling Fan(s)
Heating: Central
Exterior / Lot Features
Attached Garage: Attached Garage
Garage Spaces: 1
Roof: Shingle
Pool: Vinyl
Additional Exterior/Lot Features: Private Yard, Sprinkler/Irrigation, Fire Pit, Dog Run
Driving Directions
From US-41 (Tamiami Trail), head north on S Cranberry Blvd. Turn right onto Chamberlain Blvd, then left onto Coldwater Drive. Continue straight and the property at 2896 Coldwater Drive will be on your right.
Financial Considerations
Terms: Cash,Conventional,FHA,VA Loan
Tax/Property ID: 0990033004
Tax Amount: 2727.42
Tax Year: 2025
A broker reciprocity listing courtesy: EXP REALTY LLC
Based on information provided by Stellar MLS as distributed by the MLS GRID. Information from the Internet Data Exchange is provided exclusively for consumers’ personal, non-commercial use, and such information may not be used for any purpose other than to identify prospective properties consumers may be interested in purchasing. This data is deemed reliable but is not guaranteed to be accurate by Edina Realty, Inc., or by the MLS. Edina Realty, Inc., is not a multiple listing service (MLS), nor does it offer MLS access.
Copyright 2026 Stellar MLS as distributed by the MLS GRID. All Rights Reserved.
Payment Calculator
Interest rate and annual percentage rate (APR) are based on current market conditions, are for informational purposes only, are subject to change without notice and may be subject to pricing add-ons related to property type, loan amount, loan-to-value, credit score and other variables. Estimated closing costs used in the APR calculation are assumed to be paid by the borrower at closing. If the closing costs are financed, the loan, APR and payment amounts will be higher. If the down payment is less than 20%, mortgage insurance may be required and could increase the monthly payment and APR. Contact us for details. Additional loan programs may be available. Accuracy is not guaranteed, and all products may not be available in all borrower's geographical areas and are based on their individual situation. This is not a credit decision or a commitment to lend.
Sales History & Tax Summary for 2896 Coldwater Lane
Sales History
| Date | Price | |
|---|---|---|
| Currently not available. | ||
Tax Summary
| Tax Year | Estimated Market Value | Total Tax |
|---|---|---|
| Currently not available. | ||
Data powered by ATTOM Data Solutions. Copyright© 2026. Information deemed reliable but not guaranteed.
Schools
Schools nearby 2896 Coldwater Lane
| Schools in attendance boundaries | Grades | Distance | Rating |
|---|---|---|---|
| Loading... | |||
| Schools nearby | Grades | Distance | Rating |
|---|---|---|---|
| Loading... | |||
Data powered by ATTOM Data Solutions. Copyright© 2026. Information deemed reliable but not guaranteed.
The schools shown represent both the assigned schools and schools by distance based on local school and district attendance boundaries. Attendance boundaries change based on various factors and proximity does not guarantee enrollment eligibility. Please consult your real estate agent and/or the school district to confirm the schools this property is zoned to attend. Information is deemed reliable but not guaranteed.
SchoolDigger ® Rating
The SchoolDigger rating system is a 1-5 scale with 5 as the highest rating. SchoolDigger ranks schools based on test scores supplied by each state's Department of Education. They calculate an average standard score by normalizing and averaging each school's test scores across all tests and grades.
Coming soon properties will soon be on the market, but are not yet available for showings.