$3,795,000
290 Cocoanut Avenue #803 Sarasota, FL 34236 - SARASOTA BAY
For Sale MLS# A4655045
3 beds 4 baths 3,532 sq ft Condo
Details for 290 Cocoanut Avenue #803
MLS# A4655045
Description for 290 Cocoanut Avenue #803, Sarasota, FL, 34236 - SARASOTA BAY
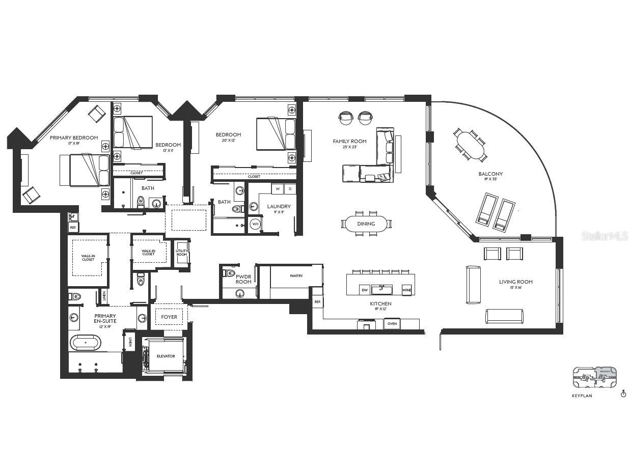
Under Construction. The Edge Sarasota embodies refined urban luxury in the heart of downtown’s vibrant Arts District. Residence B is an impeccably designed 3-bedroom, 3-bathroom corner residence offering over 3,500 square feet of living space, framed by floor-to-ceiling windows and sweeping city views from the 8th floor. The open-concept design features soaring ceilings, walls of glass and a chef’s kitchen with Italian cabinetry, Wolf and Sub-Zero appliances including a gas cooktop, an expansive island with waterfall edge and a butler’s pantry—all curated for elevated living. From the great room, dining or separate living room step out onto your private terrace and feel the energy of Sarasota below while enjoying the tranquility of your own modern sanctuary. The owners’ suite provides a true retreat with a gracious foyer, midnight bar, dual walk-in closets and en suite bathroom featuring dual vanities, private water closets, glass enclosed shower, soaking tub and convenient linen closet. A full laundry room with front-load washer and dryer and utility sink includes additional storage for ease of living. Beyond your residence, enjoy a curated collection of luxury amenities including a resort-style pool deck with hot and cold plunge pools, cabanas and two outdoor kitchens. The owners’ club focuses on wellness and entertainment with a fully equipped fitness center complete with a yoga room and infrared sauna. Two treatments rooms afford plenty of space for your personal massage therapist or a physical therapy session. The social room includes a lounge, bar, game room and catering kitchen. For more intimate gatherings, reserve the private dining room featuring resident wine lockers and a separate bar area. The building’s boutique size—only 27 residences—creates a community feel in the heart of Sarasota’s vibrant Arts District. Walk to acclaimed restaurants, galleries, boutiques, and the Bayfront, embracing a lifestyle that combines culture, convenience, and sophistication. Construction is progressing with limited opportunities to customize your finishes—secure your place at The Edge today and invest in a rare downtown Sarasota address with lasting appeal. Images shown are artist renderings intended to illustrate the interior finishes and design concepts for this community.
Listing Information
Property Type: Residential, Condominium
Status: Active
Bedrooms: 3
Bathrooms: 4
Lot Size: 0.55 Acres
Square Feet: 3,532 sq ft
Year Built: 2025
Garage: Yes
Stories: 1 Story
Construction: Block,Concrete,Stucco
Construction Display: New Construction
Subdivision: The Edge Sarasota
Builder: Voeller Construction, Inc
Foundation: Slab
County: Sarasota
Construction Status: Under Construction
School Information
Elementary: Alta Vista Elementary
Middle: Booker Middle
High: Booker High
Room Information
Main Floor
Porch: 35x19
Primary Bathroom:
Bedroom 2: 11x13
Bedroom 3:
Utility Room: 9x9
Primary Bedroom: 19x17
Kitchen: 12x19
Family Room: 23x25
Living Room: 16x15
Bathrooms
Full Baths: 3
1/2 Baths: 1
Additonal Room Information
Laundry: Inside, Laundry Room
Interior Features
Appliances: Exhaust Fan, Built-In Oven, Electric Water Heater, Range Hood, Washer, Refrigerator, Cooktop, Indoor Grill, Dishwasher, Disposal, Dryer
Flooring: Porcelain Tile
Accessibility: Wheelchair Access
Additional Interior Features: Eat-In Kitchen, Elevator, Walk-In Closet(s), High Ceilings, Living/Dining Room, Main Level Primary, Separate/Formal Dining Room, Solid Surface Counters, Stone Counters, Open Floorplan
Utilities
Water: Public
Sewer: Public Sewer
Other Utilities: Cable Available,Electricity Available,Natural Gas Connected,High Speed Internet Available,Municipal Utilities,Sewer Connected,Underground Utilities,Water Connected
Cooling: Zoned, Central Air
Heating: Central, Natural Gas, Zoned, Exhaust Fan
Exterior / Lot Features
Attached Garage: Attached Garage
Garage Spaces: 2
Parking Description: Guest, Covered, Assigned
Roof: Other, Concrete
Pool: Association, Community, In Ground, Pool Sweep
Lot View: City,Park/Greenbelt,Marina,Pool,Trees/Woods,Water
Fencing: fenced
Additional Exterior/Lot Features: Lighting, Balcony, Dog Run, Balcony, Covered, Corner Lot, Cleared, Near Public Transit, City Lot
Out Buildings: Cabana
Waterfront Details
Standard Water Body: SARASOTA BAY
Community Features
Community Features: Handicap Access, Street Lights, Gated, Sidewalks, Pool, Fitness
Security Features: Fire Sprinkler System, Fire Alarm, Gated Community, Key Card Entry, Lobby Secured, Secured Garage/Parking, Security Gate, Smoke Detector(s)
Association Amenities: Pool, Recreation Facilities, Other, Elevator(s), Spa/Hot Tub, Security, Clubhouse, Fitness Center, Gated, Maintenance Grounds
HOA Dues Include: Common Areas, Maintenance Structure, Pool(s), Maintenance Grounds, Pest Control, Reserve Fund, Insurance, Sewer, Association Management, Recreation Facilities, Taxes, Trash, Water
Driving Directions
Heading southbound on I-75, turn right (west) onto Fruitville Road and continue west on Fruitville for 6 miles. Turn left onto lime avenue then turn right onto main street and the Sales Gallery will be on your right.
Financial Considerations
Terms: Cash
Tax/Property ID: 2026130030
Tax Year: 2025
A broker reciprocity listing courtesy: MICHAEL SAUNDERS & COMPANY
Based on information provided by Stellar MLS as distributed by the MLS GRID. Information from the Internet Data Exchange is provided exclusively for consumers’ personal, non-commercial use, and such information may not be used for any purpose other than to identify prospective properties consumers may be interested in purchasing. This data is deemed reliable but is not guaranteed to be accurate by Edina Realty, Inc., or by the MLS. Edina Realty, Inc., is not a multiple listing service (MLS), nor does it offer MLS access.
Copyright 2025 Stellar MLS as distributed by the MLS GRID. All Rights Reserved.
Payment Calculator
Interest rate and annual percentage rate (APR) are based on current market conditions, are for informational purposes only, are subject to change without notice and may be subject to pricing add-ons related to property type, loan amount, loan-to-value, credit score and other variables. Estimated closing costs used in the APR calculation are assumed to be paid by the borrower at closing. If the closing costs are financed, the loan, APR and payment amounts will be higher. If the down payment is less than 20%, mortgage insurance may be required and could increase the monthly payment and APR. Contact us for details. Additional loan programs may be available. Accuracy is not guaranteed, and all products may not be available in all borrower's geographical areas and are based on their individual situation. This is not a credit decision or a commitment to lend.
Sales History & Tax Summary for 290 Cocoanut Avenue #803
Sales History
| Date | Price | Change |
|---|---|---|
| Currently not available. | ||
Tax Summary
| Tax Year | Estimated Market Value | Total Tax |
|---|---|---|
| Currently not available. | ||
Data powered by ATTOM Data Solutions. Copyright© 2025. Information deemed reliable but not guaranteed.
Schools
Schools nearby 290 Cocoanut Avenue #803
| Schools in attendance boundaries | Grades | Distance | Rating |
|---|---|---|---|
| Loading... | |||
| Schools nearby | Grades | Distance | Rating |
|---|---|---|---|
| Loading... | |||
Data powered by ATTOM Data Solutions. Copyright© 2025. Information deemed reliable but not guaranteed.
The schools shown represent both the assigned schools and schools by distance based on local school and district attendance boundaries. Attendance boundaries change based on various factors and proximity does not guarantee enrollment eligibility. Please consult your real estate agent and/or the school district to confirm the schools this property is zoned to attend. Information is deemed reliable but not guaranteed.
SchoolDigger ® Rating
The SchoolDigger rating system is a 1-5 scale with 5 as the highest rating. SchoolDigger ranks schools based on test scores supplied by each state's Department of Education. They calculate an average standard score by normalizing and averaging each school's test scores across all tests and grades.
Coming soon properties will soon be on the market, but are not yet available for showings.