290 Jefferson Lane The Villages, FL 32162
For Sale MLS# G5102434
3 beds 2 baths 1,527 sq ft Single Family
OPEN HOUSE: Saturday, 12/20 12:00 PM - 02:00 PM
Details for 290 Jefferson Lane
MLS# G5102434
Description for 290 Jefferson Lane, The Villages, FL, 32162
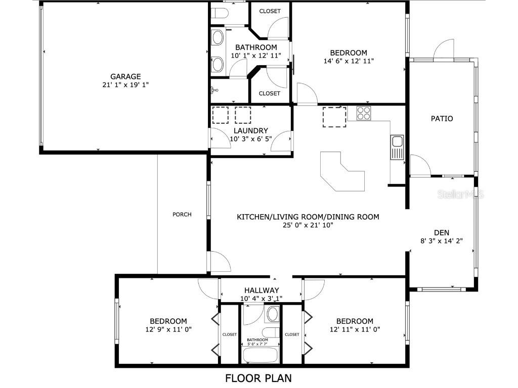
Located in the highly desirable Village of Caroline in The Villages, Florida. This beautifully maintained Amarillo model offers 1,527 square feet of heated living space with a split-bedroom, open-concept floor plan designed for comfort and functionality. Inside, you will find a bright and inviting great room that connects the living, dining, and kitchen areas for easy flow and everyday convenience. The kitchen includes abundant cabinetry, generous counter space, a breakfast bar, and plenty of natural light. The primary suite features two walk-in closets and a private en-suite bath. The guest wing provides two additional bedrooms and a full guest bath that offers privacy and comfort for family and visitors. Enjoy Florida living at its best on the enclosed lanai and the pergola-covered patio, both surrounded by mature, low-maintenance landscaping that creates a relaxing outdoor retreat. Recent updates include a new roof in 2021, an HVAC system replaced in 2016, and an aluminum pergola installed in 2021. The low remaining bond balance of $6,134.43 adds exceptional value and affordability to this move-in-ready home. Residents of the Village of Caroline enjoy convenient access to recreation centers, championship golf courses, swimming pools, shopping, dining, and entertainment. The Caroline Recreation Center is only half a mile away and offers a neighborhood pool, bocce and shuffleboard courts, and picnic areas. Lake Sumter Landing Market Square is located just 1.9 miles away and features waterfront dining, live entertainment, and boutique shopping. Nearby you will also find Glenview Country Club, Colony Plaza with Publix and local restaurants, and The Villages Regional Hospital for medical care and services. Additional highlights include a two-car garage with ample storage, an open-concept living area ideal for gatherings, and neutral finishes ready for personalization. The listing includes a 3D virtual tour, a video tour, and an interactive floor plan for convenient remote viewing. The home is also a short golf cart ride to Lake Sumter Landing and several nearby golf courses. This home combines thoughtful design, low maintenance, and a premier location within one of the most active communities in Florida. Experience the lifestyle, recreation, and convenience that make The Villages one of the most desirable destinations in the country. Schedule your private showing today and discover why 290 Jefferson Lane is the perfect place to call home.
Listing Information
Property Type: Residential, Single Family Residence
Status: Active
Bedrooms: 3
Bathrooms: 2
Lot Size: 0.13 Acres
Square Feet: 1,527 sq ft
Year Built: 2006
Garage: Yes
Stories: 1 Story
Construction: Vinyl Siding
Construction Display: New Construction
Subdivision: The Villages
Foundation: Slab
County: Sumter
Construction Status: New Construction
Room Information
Main Floor
Bathroom 2: 7x5
Dining Room: 12x10
Living Room: 15x11
Bedroom 3: 12x11
Bedroom 2: 12x11
Primary Bathroom: 12x10
Primary Bedroom: 14x13
Porch: 14x8
Florida Room: 14x8
Laundry: 10x6
Kitchen: 12x11
Bathrooms
Full Baths: 2
Additonal Room Information
Laundry: Inside, Laundry Room, Washer Hookup, Electric Dryer Hookup, Gas Dryer Hookup
Interior Features
Appliances: Exhaust Fan, Gas Water Heater, Washer, Range, Refrigerator, Dishwasher, Dryer, Microwave
Flooring: Carpet,Laminate,Linoleum
Additional Interior Features: Walk-In Closet(s), Living/Dining Room, Ceiling Fan(s), Vaulted Ceiling(s), Main Level Primary, Open Floorplan
Utilities
Water: Public
Sewer: Public Sewer
Other Utilities: Electricity Connected,Sewer Connected,Water Connected
Cooling: Ceiling Fan(s), Central Air
Heating: Central
Exterior / Lot Features
Attached Garage: Attached Garage
Garage Spaces: 2
Parking Description: Garage, Garage Door Opener
Roof: Shingle
Pool: Association, Community
Lot Dimensions: 65x90
Additional Exterior/Lot Features: Sprinkler/Irrigation, Front Porch, Covered, Patio, Porch, Screened, Near Golf Course
Community Features
Community Features: Restaurant, Dog Park, Fitness, Golf Carts OK, Pool, Tennis Court(s), Playground, Golf
Association Amenities: Pickleball, Shuffleboard Court, Recreation Facilities, Tennis Court(s), Pool, Playground, Golf Course, Trail(s), Basketball Court
HOA Dues Include: Recreation Facilities, Pool(s)
Driving Directions
From the intersection of CR466 & Morse Blvd. Go South on Morse Blvd 800 ft. At the roundabout, take the second exit onto Morse Blvd. Go 0.6 miles and at the roundabout take the second exit onto Morse Blvd. Go 0.2 miles and at the roundabout, take the third exit onto Stillwater Trail. Go 0.9 miles and turn left onto Olanta Dr. Go 0.3 miles and turn left onto Jefferson Ln. Go 200 ft. and the destination is on your left. 290 Jefferson Lane
Financial Considerations
Terms: Cash,Conventional,VA Loan
Tax/Property ID: D24A136
Tax Amount: 2781.05
Tax Year: 2024
A broker reciprocity listing courtesy: REALTY EXECUTIVES IN THE VILLAGES
Based on information provided by Stellar MLS as distributed by the MLS GRID. Information from the Internet Data Exchange is provided exclusively for consumers’ personal, non-commercial use, and such information may not be used for any purpose other than to identify prospective properties consumers may be interested in purchasing. This data is deemed reliable but is not guaranteed to be accurate by Edina Realty, Inc., or by the MLS. Edina Realty, Inc., is not a multiple listing service (MLS), nor does it offer MLS access.
Copyright 2025 Stellar MLS as distributed by the MLS GRID. All Rights Reserved.
Payment Calculator
Interest rate and annual percentage rate (APR) are based on current market conditions, are for informational purposes only, are subject to change without notice and may be subject to pricing add-ons related to property type, loan amount, loan-to-value, credit score and other variables. Estimated closing costs used in the APR calculation are assumed to be paid by the borrower at closing. If the closing costs are financed, the loan, APR and payment amounts will be higher. If the down payment is less than 20%, mortgage insurance may be required and could increase the monthly payment and APR. Contact us for details. Additional loan programs may be available. Accuracy is not guaranteed, and all products may not be available in all borrower's geographical areas and are based on their individual situation. This is not a credit decision or a commitment to lend.
Sales History & Tax Summary for 290 Jefferson Lane
Sales History
| Date | Price | Change |
|---|---|---|
| Currently not available. | ||
Tax Summary
| Tax Year | Estimated Market Value | Total Tax |
|---|---|---|
| Currently not available. | ||
Data powered by ATTOM Data Solutions. Copyright© 2025. Information deemed reliable but not guaranteed.
Schools
Schools nearby 290 Jefferson Lane
| Schools in attendance boundaries | Grades | Distance | Rating |
|---|---|---|---|
| Loading... | |||
| Schools nearby | Grades | Distance | Rating |
|---|---|---|---|
| Loading... | |||
Data powered by ATTOM Data Solutions. Copyright© 2025. Information deemed reliable but not guaranteed.
The schools shown represent both the assigned schools and schools by distance based on local school and district attendance boundaries. Attendance boundaries change based on various factors and proximity does not guarantee enrollment eligibility. Please consult your real estate agent and/or the school district to confirm the schools this property is zoned to attend. Information is deemed reliable but not guaranteed.
SchoolDigger ® Rating
The SchoolDigger rating system is a 1-5 scale with 5 as the highest rating. SchoolDigger ranks schools based on test scores supplied by each state's Department of Education. They calculate an average standard score by normalizing and averaging each school's test scores across all tests and grades.
Coming soon properties will soon be on the market, but are not yet available for showings.