2900 Brantley Hills Court Longwood, FL 32779
For Sale MLS# O6357754
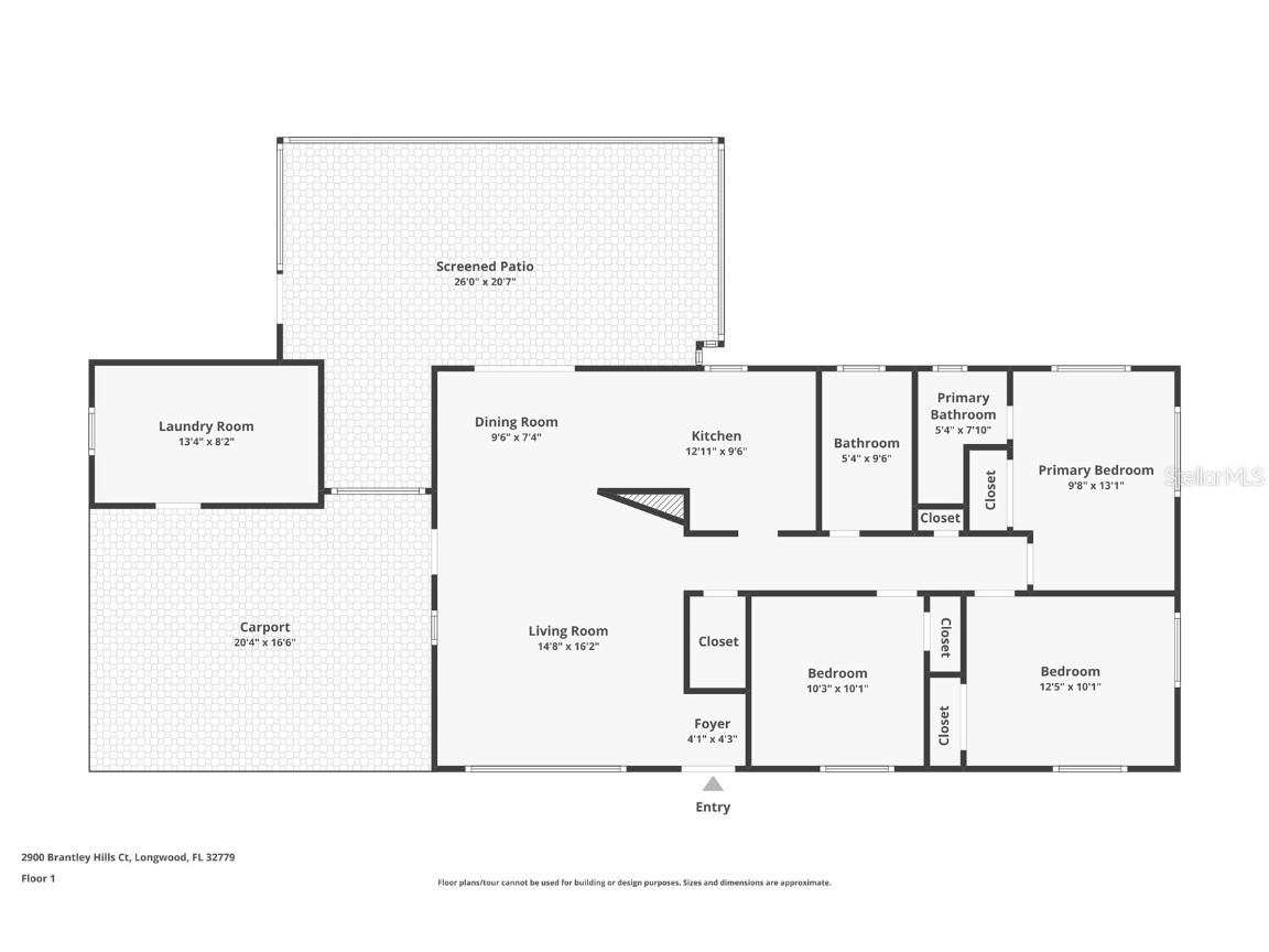
3 beds 2 baths 1,100 sq ft Single Family
Details for 2900 Brantley Hills Court
MLS# O6357754
Description for 2900 Brantley Hills Court, Longwood, FL, 32779
Beautifully maintained 3 bedroom, 2 bathroom home nestled in the sought after Brantley Hills community. This charming home showcases a stunning designer kitchen * remodeled in 2020 * featuring granite waterfall countertops, custom solid wood cabinetry and premium finishes throughout. * All new carpet in 3 bedrooms, December 2025 * The interior offers ceramic tile in living room, kitchen and baths and new carpeting in bedrooms for added comfort. Enjoy the serene outdoors from the expansive screened patio overlooking a lush, wooded, and fully fenced backyard. Additional features include a * new roof in 2020 * and * new a/c unit in 2023 * and newer washer and dryer in the exterior utility room. Conveniently located near top-rated schools, restaurants, shopping, I4 and Wekiva State Park.
Listing Information
Property Type: Residential, Single Family Residence
Status: Active
Bedrooms: 3
Bathrooms: 2
Lot Size: 0.26 Acres
Square Feet: 1,100 sq ft
Year Built: 1960
Stories: 1 Story
Construction: Block,Concrete
Construction Display: New Construction
Subdivision: Lake Brantley Hills
Foundation: Slab
County: Seminole
Construction Status: New Construction
School Information
Elementary: Wekiva Elementary
Middle: Teague Middle
High: Lake Brantley High
Room Information
Main Floor
Bedroom 3: 9.9x12
Bedroom 2: 9.9x10
Primary Bedroom: 8.7x12.9
Living Room: 11x14
Dining Room: 9.8x11.4
Kitchen: 6.1x12.5
Bathrooms
Full Baths: 2
Additonal Room Information
Laundry: Electric Dryer Hookup, Outside, Washer Hookup
Interior Features
Appliances: Range, Refrigerator, Washer, Dishwasher, Dryer, Microwave
Flooring: Carpet,Ceramic Tile
Doors/Windows: Blinds, Window Treatments
Additional Interior Features: Ceiling Fan(s), Main Level Primary, Solid Surface Counters, Wood Cabinets, Window Treatments, Built-in Features
Utilities
Water: Public
Sewer: Septic Tank
Other Utilities: Municipal Utilities
Cooling: Central Air, Ceiling Fan(s)
Heating: Central
Exterior / Lot Features
Parking Description: Covered, driveway
Roof: Shingle
Additional Exterior/Lot Features: Screened, Covered, Patio, Landscaped, City Lot, Outside City Limits
Out Buildings: Other
Driving Directions
I4 West, Exit SR434 east. Turn left onto Sand Lake Rd, turn right onto W Lake Brantley Rd, turn left onto Brantley Hills, house is on the right.
Financial Considerations
Terms: Cash,Conventional,FHA,VA Loan
Tax/Property ID: 05-21-29-504-0000-0330
Tax Amount: 2773.15
Tax Year: 2024
A broker reciprocity listing courtesy: DON ASHER & ASSOCIATES, INC.
Based on information provided by Stellar MLS as distributed by the MLS GRID. Information from the Internet Data Exchange is provided exclusively for consumers’ personal, non-commercial use, and such information may not be used for any purpose other than to identify prospective properties consumers may be interested in purchasing. This data is deemed reliable but is not guaranteed to be accurate by Edina Realty, Inc., or by the MLS. Edina Realty, Inc., is not a multiple listing service (MLS), nor does it offer MLS access.
Copyright 2026 Stellar MLS as distributed by the MLS GRID. All Rights Reserved.
Payment Calculator
Interest rate and annual percentage rate (APR) are based on current market conditions, are for informational purposes only, are subject to change without notice and may be subject to pricing add-ons related to property type, loan amount, loan-to-value, credit score and other variables. Estimated closing costs used in the APR calculation are assumed to be paid by the borrower at closing. If the closing costs are financed, the loan, APR and payment amounts will be higher. If the down payment is less than 20%, mortgage insurance may be required and could increase the monthly payment and APR. Contact us for details. Additional loan programs may be available. Accuracy is not guaranteed, and all products may not be available in all borrower's geographical areas and are based on their individual situation. This is not a credit decision or a commitment to lend.
Sales History & Tax Summary for 2900 Brantley Hills Court
Sales History
| Date | Price | |
|---|---|---|
| Currently not available. | ||
Tax Summary
| Tax Year | Estimated Market Value | Total Tax |
|---|---|---|
| Currently not available. | ||
Data powered by ATTOM Data Solutions. Copyright© 2026. Information deemed reliable but not guaranteed.
Schools
Schools nearby 2900 Brantley Hills Court
| Schools in attendance boundaries | Grades | Distance | Rating |
|---|---|---|---|
| Loading... | |||
| Schools nearby | Grades | Distance | Rating |
|---|---|---|---|
| Loading... | |||
Data powered by ATTOM Data Solutions. Copyright© 2026. Information deemed reliable but not guaranteed.
The schools shown represent both the assigned schools and schools by distance based on local school and district attendance boundaries. Attendance boundaries change based on various factors and proximity does not guarantee enrollment eligibility. Please consult your real estate agent and/or the school district to confirm the schools this property is zoned to attend. Information is deemed reliable but not guaranteed.
SchoolDigger ® Rating
The SchoolDigger rating system is a 1-5 scale with 5 as the highest rating. SchoolDigger ranks schools based on test scores supplied by each state's Department of Education. They calculate an average standard score by normalizing and averaging each school's test scores across all tests and grades.
Coming soon properties will soon be on the market, but are not yet available for showings.