2907 Ashburn Street Lehigh Acres, FL 33972
For Sale MLS# 225049795
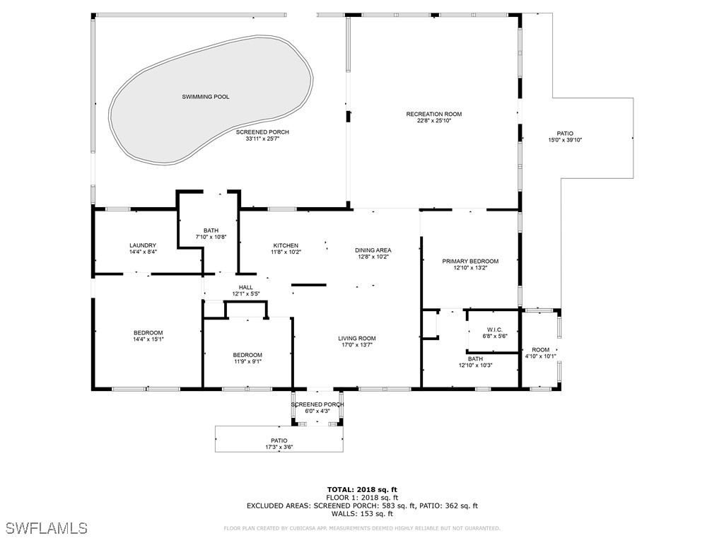
2 beds 2 baths 1,772 sq ft Single Family
Details for 2907 Ashburn Street
MLS# 225049795
Description for 2907 Ashburn Street, Lehigh Acres, FL, 33972
Discover the perfect blend of comfort, flexibility, and energy efficiency in this well-maintained 2-bedroom, 2-bathroom single-family home, offering 1,772 sq. ft. of living space with thoughtfully converted areas for added versatility. Built in 1991, this Southwest Florida gem is packed with upgrades that make it ideal for year-round living or a seasonal escape. Step outside into your private screened-in pool area with an inground pool as well as a separate Hot Tub/Spa. New pool cage in 2022 with Super Screen and an electric pool heater—perfect for enjoying the Florida lifestyle in every season. Very secluded lot at the end of a cul-de-sac. Lots of privacy. Part of the lanai has been enclosed and converted into additional living space, cooled by a split AC unit, offering an ideal spot for a home office, hobby room, or bonus entertaining space. Energy savings come standard with solar electric panels installed on the roof, helping to reduce utility bills and support sustainable living. Inside, you’ll find: • Laminate flooring in both bedrooms • Tile flooring throughout the main living areas • Ceiling fans in every bedroom and living space for added comfort • A converted garage, now a cozy den or extra bedroom, complete with central A/C and a utility room/pantry/storage area • A detached shed equipped with lots of tools and or Gardening equipment offering even more storage or workshop potential • Second Refrigerator • LG Wash Tower • Unique ceiling lights in Dining are that turn into a Fan
Listing Information
Property Type: Residential, Single Family Residence
Status: Active
Bedrooms: 2
Bathrooms: 2
Lot Size: 0.35 Acres
Square Feet: 1,772 sq ft
Year Built: 1991
Stories: 1 Story
Construction: Block,Concrete,Stucco
Subdivision: Lehigh Acres
Furnished: Yes
County: Lee
Days On Market: 197
Construction Status: Resale
Room Information
Bathrooms
Full Baths: 2
Additonal Room Information
Laundry: In Garage
Interior Features
Appliances: Ice Maker, Range, Refrigerator, Washer, Dishwasher, Dryer, Freezer, Self Cleaning Oven, Water Purifier, RefrigeratorWithIce Maker
Flooring: Laminate,Tile
Doors/Windows: Display Window(s), Arched
Additional Interior Features: Tub Shower, Living/Dining Room, Split Bedrooms, Walk-In Closet(s), Closet Cabinetry, Family/Dining Room, Home Office, Vaulted Ceiling(s)
Utilities
Water: Well
Sewer: Septic Tank
Other Utilities: Cable Not Available
Cooling: Electric, Ceiling Fan(s), Central Air, Wall Unit(s)
Heating: Central, Electric
Exterior / Lot Features
Parking Description: Common, driveway, on street, Paved
Roof: Shingle
Pool: In Ground, Screen Enclosure, Electric Heat, Heated
Lot View: Trees/Woods
Lot Dimensions: 62 x 105 x 145 x 108
Zoning: RS-1
Additional Exterior/Lot Features: Storage, Outdoor Grill, Shutters Electric, Shutters Manual, Lanai, Porch, Screened, Cul-de-Sac
Out Buildings: Gazebo
Community Features
Community Features: Non-Gated
Security Features: Smoke Detector(s)
Driving Directions
Please use GPS.
Financial Considerations
Terms: All Financing Considered,Cash,FHA,VA Loan
Tax/Property ID: 26-44-27-L3-00007.0400
Tax Amount: 3149.43
Tax Year: 2024
A broker reciprocity listing courtesy: Sellstate 5 Star Realty
Based on information provided by FGCMLS. Internet Data Exchange information is provided exclusively for consumers’ personal, non-commercial use, and such information may not be used for any purpose other than to identify prospective properties consumers may be interested in purchasing. This data is deemed reliable but is not guaranteed to be accurate by Edina Realty, Inc., or by the MLS. Edina Realty, Inc., is not a multiple listing service (MLS), nor does it offer MLS access.
Copyright 2025 FGCMLS. All Rights Reserved.
Payment Calculator
Interest rate and annual percentage rate (APR) are based on current market conditions, are for informational purposes only, are subject to change without notice and may be subject to pricing add-ons related to property type, loan amount, loan-to-value, credit score and other variables. Estimated closing costs used in the APR calculation are assumed to be paid by the borrower at closing. If the closing costs are financed, the loan, APR and payment amounts will be higher. If the down payment is less than 20%, mortgage insurance may be required and could increase the monthly payment and APR. Contact us for details. Additional loan programs may be available. Accuracy is not guaranteed, and all products may not be available in all borrower's geographical areas and are based on their individual situation. This is not a credit decision or a commitment to lend.
Sales History & Tax Summary for 2907 Ashburn Street
Sales History
| Date | Price | Change |
|---|---|---|
| Currently not available. | ||
Tax Summary
| Tax Year | Estimated Market Value | Total Tax |
|---|---|---|
| Currently not available. | ||
Data powered by ATTOM Data Solutions. Copyright© 2025. Information deemed reliable but not guaranteed.
Schools
Schools nearby 2907 Ashburn Street
| Schools in attendance boundaries | Grades | Distance | Rating |
|---|---|---|---|
| Loading... | |||
| Schools nearby | Grades | Distance | Rating |
|---|---|---|---|
| Loading... | |||
Data powered by ATTOM Data Solutions. Copyright© 2025. Information deemed reliable but not guaranteed.
The schools shown represent both the assigned schools and schools by distance based on local school and district attendance boundaries. Attendance boundaries change based on various factors and proximity does not guarantee enrollment eligibility. Please consult your real estate agent and/or the school district to confirm the schools this property is zoned to attend. Information is deemed reliable but not guaranteed.
SchoolDigger ® Rating
The SchoolDigger rating system is a 1-5 scale with 5 as the highest rating. SchoolDigger ranks schools based on test scores supplied by each state's Department of Education. They calculate an average standard score by normalizing and averaging each school's test scores across all tests and grades.
Coming soon properties will soon be on the market, but are not yet available for showings.