29235 Bayhead Rd Dade City, FL 33523
Pending MLS# P4935835
3 beds 2 baths 2,047 sq ft Single Family
Details for 29235 Bayhead Rd
MLS# P4935835
Description for 29235 Bayhead Rd, Dade City, FL, 33523
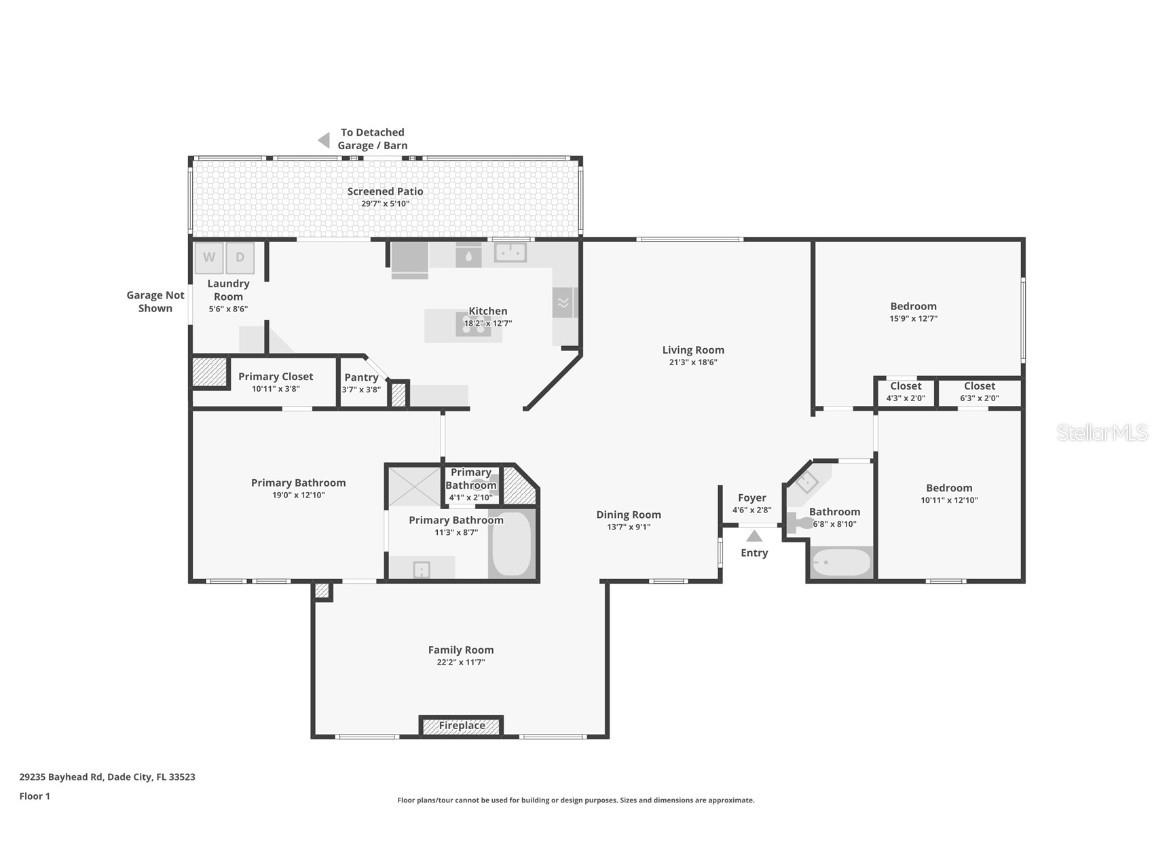
Under contract-accepting backup offers. Discover your private country estate at 29235 Bayhead Rd, Dade City, Florida. This stunning Palm Harbor homes model ranch-style mobile home is situated on a spacious 5.58-acre lot, offering the perfect blend of tranquility and convenience for families seeking ample space and the joys of country living. The main residence features 3 bedrooms and 2 bathrooms, including a formal living room and dining room showcasing beautiful travertine stone tiles, along with a cozy family room complete with a fireplace. This home has many recent updates, boasting a roof installed on the main house in December 2017, gutters with a leaf filter system added in 2022, and a newly paved driveway completed in 2024 and coated in 2025. For your convenience and peace of mind, the property also includes garage door openers, hurricane coverings for all windows, and an upgraded water filtration system installed in July 2025. Additional recent maintenance includes a septic drain field replacement in June 2018 and a cleaning in 2023. The property is further enhanced by majestic mature oak trees and Southern magnolias, creating a picturesque setting. Beyond the main home, the property offers several valuable outbuildings. A second building spanning 960 sq ft includes 2 bedrooms, 1 bathroom, a delightful sunroom, and features a new roof completed in 2024. A third building, also 960 sq ft, presents the potential for conversion into additional living space, while a 2000 sq ft concrete barn features a large workshop, high ceilings, and two convenient storage rooms. The expansive garage space can accommodate up to 6 cars, and could easily be converted into horse stables, catering to equestrian enthusiasts. This property is eligible for USDA loans, making it an attractive option for qualified buyers, and is being sold "as-is". This exceptional estate provides an idyllic setting for families to grow, thrive, and create lasting memories. This unique property offers a competitive opportunity in the current market. Don't miss out on the chance to call this magnificent estate your home! Contact us today to schedule your private showing.
Listing Information
Property Type: Residential, Modular Home, Patio Home,Ranch,Modular/Prefab
Status: Pending
Bedrooms: 3
Bathrooms: 2
Lot Size: 5.58 Acres
Square Feet: 2,047 sq ft
Year Built: 1999
Garage: Yes
Stories: 1 Story
Construction: Vinyl Siding
Construction Display: New Construction
Subdivision: Acreage
Foundation: Crawlspace
County: Pasco
Construction Status: New Construction
School Information
Elementary: San Antonio-Po
Middle: Pasco Middle-Po
High: Pasco High-Po
Room Information
Main Floor
Porch: 30x6
Primary Bedroom: 14x12
Kitchen: 22x11
Living Room: 14x22
Family Room: 22x12
Dining Room: 14x9
Bathroom 2:
Primary Bathroom:
Bedroom 3: 13x11
Bedroom 2: 17x10
Bathrooms
Full Baths: 2
Additonal Room Information
Laundry: Washer Hookup, Electric Dryer Hookup, Inside, In Kitchen
Interior Features
Appliances: Water Softener, Microwave, Range, Refrigerator, Dishwasher, Electric Water Heater
Flooring: Carpet,Ceramic Tile,Laminate,Tile,Travertine
Basement: Crawl Space
Doors/Windows: Blinds, Window Treatments, Skylight(s)
Fireplaces: Living Room, Wood Burning, Stone
Additional Interior Features: High Ceilings, Skylights, Cathedral Ceiling(s), Separate/Formal Living Room, Ceiling Fan(s), Vaulted Ceiling(s), Eat-In Kitchen, Walk-In Closet(s), Split Bedrooms
Utilities
Water: Private, Well
Sewer: Septic Tank
Other Utilities: Cable Available,Electricity Available,Electricity Connected,High Speed Internet Available,Municipal Utilities,Phone Available,Water Available
Cooling: Ceiling Fan(s), Central Air
Heating: Electric
Exterior / Lot Features
Attached Garage: Attached Garage
Garage Spaces: 2
Parking Description: Workshop in Garage, RV Access/Parking, Golf Cart Garage, Guest, Boat, Converted Garage, Oversized, Garage Door Opener, Covered, driveway, Garage, Off Street
Roof: Shingle
Lot View: Trees/Woods
Additional Exterior/Lot Features: Storage, Garden, Sprinkler/Irrigation, Rain Gutters, Rear Porch, Enclosed, Screened, Patio, Covered, Irregular Lot, Landscaped, Cleared, Pasture, Farm, Outside City Limits
Out Buildings: Greenhouse, Guest House, Shed(s), Workshop, Barn(s)
Community Features
Security Features: Closed Circuit Camera(s), Smoke Detector(s)
Driving Directions
I-75,Exit 293 (West) on Blanton Rd. Left (South) on Lake Iola Rd. Right (West) on Bayhead to property on north side.
Financial Considerations
Terms: Cash,Conventional,FHA,USDA Loan,VA Loan
Tax/Property ID: 08-24-20-0000-00700-0022
Tax Amount: 1931.73
Tax Year: 2024
A broker reciprocity listing courtesy: EXP REALTY LLC
Based on information provided by Stellar MLS as distributed by the MLS GRID. Information from the Internet Data Exchange is provided exclusively for consumers’ personal, non-commercial use, and such information may not be used for any purpose other than to identify prospective properties consumers may be interested in purchasing. This data is deemed reliable but is not guaranteed to be accurate by Edina Realty, Inc., or by the MLS. Edina Realty, Inc., is not a multiple listing service (MLS), nor does it offer MLS access.
Copyright 2026 Stellar MLS as distributed by the MLS GRID. All Rights Reserved.
Sales History & Tax Summary for 29235 Bayhead Rd
Sales History
| Date | Price | |
|---|---|---|
| Currently not available. | ||
Tax Summary
| Tax Year | Estimated Market Value | Total Tax |
|---|---|---|
| Currently not available. | ||
Data powered by ATTOM Data Solutions. Copyright© 2026. Information deemed reliable but not guaranteed.
Schools
Schools nearby 29235 Bayhead Rd
| Schools in attendance boundaries | Grades | Distance | Rating |
|---|---|---|---|
| Loading... | |||
| Schools nearby | Grades | Distance | Rating |
|---|---|---|---|
| Loading... | |||
Data powered by ATTOM Data Solutions. Copyright© 2026. Information deemed reliable but not guaranteed.
The schools shown represent both the assigned schools and schools by distance based on local school and district attendance boundaries. Attendance boundaries change based on various factors and proximity does not guarantee enrollment eligibility. Please consult your real estate agent and/or the school district to confirm the schools this property is zoned to attend. Information is deemed reliable but not guaranteed.
SchoolDigger ® Rating
The SchoolDigger rating system is a 1-5 scale with 5 as the highest rating. SchoolDigger ranks schools based on test scores supplied by each state's Department of Education. They calculate an average standard score by normalizing and averaging each school's test scores across all tests and grades.
Coming soon properties will soon be on the market, but are not yet available for showings.