$344,900
Off-Market Date: 02/28/20262924 Cr 526 Sumterville, FL 33585
Pending MLS# OM716928
3 beds 2 baths 1,402 sq ft Single Family
Details for 2924 Cr 526
MLS# OM716928
Description for 2924 Cr 526, Sumterville, FL, 33585
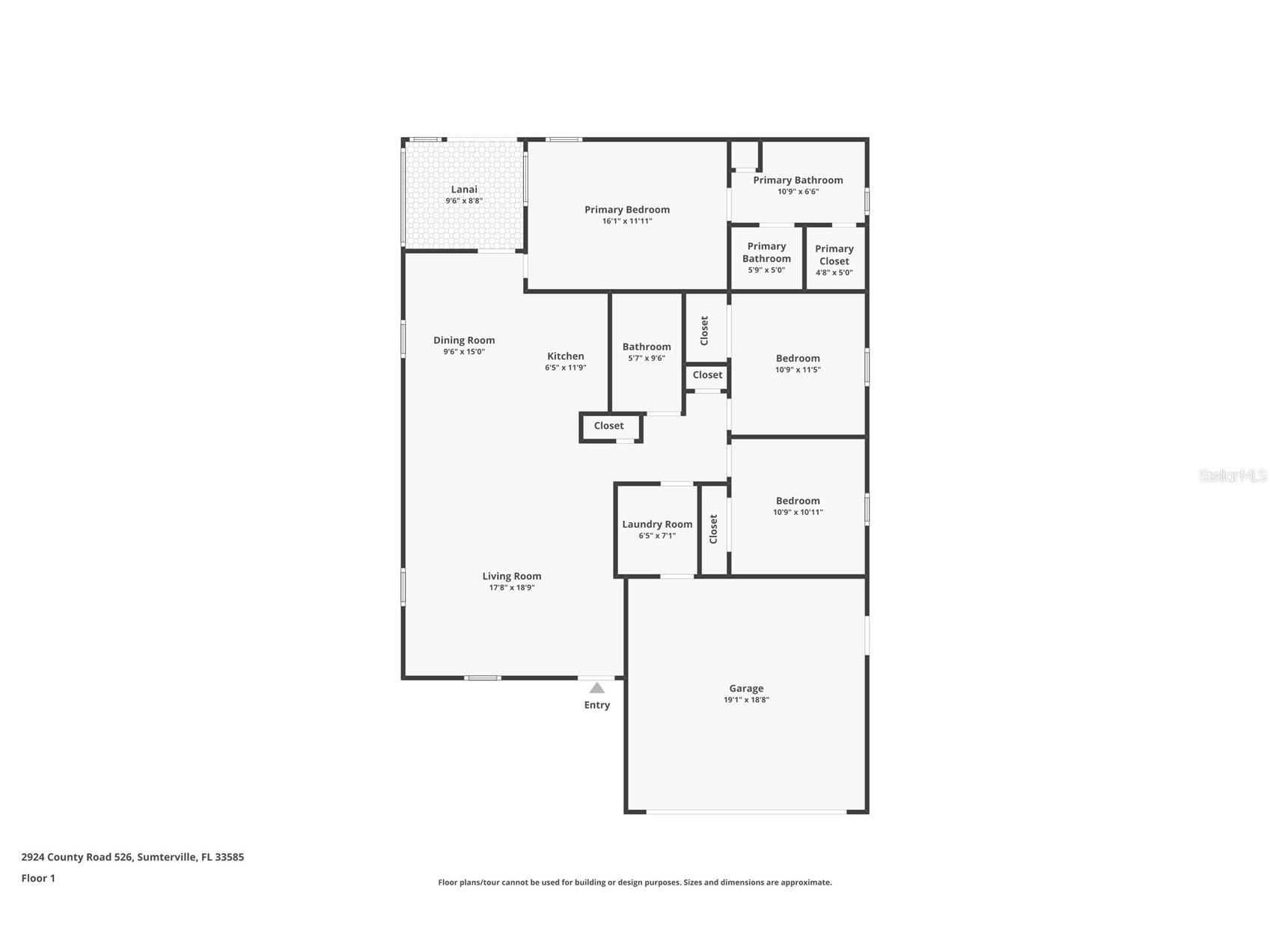
SELLER OFFERING UP TO $4,900 TOWARD BUYERS allowable closing costs, prepaids, and/or lender-approved interest rate buydown with acceptable offer. Concession subject to lender guidelines and contract terms. Custom Built Home with plenty of room for all your toys — with no HOA, no CDD, no deed restrictions, and no amenity fees. This 3-bedroom, 2-bath with a 2-car garage sits on an oversized 0.59-acre lot, offering privacy and space with convenient access to everything. Inside, enjoy an open floor plan with solid stone countertops, solid wood cabinets, a kitchen island with seating, vaulted ceilings with wood beams, and a stone accent wall. The home features a desirable split-bedroom layout, with the primary suite privately positioned at the rear of the home, complete with a tray ceiling finished in pine tongue-and-groove, walk-in closets, and a beautifully appointed bath with dual vanity. The home includes a conveniently located indoor laundry room and features durable luxury vinyl plank and tile flooring throughout. The screened back porch features beautiful pine tongue-and-groove ceilings and overlooks a spacious paver patio with a built-in fire pit — perfect for outdoor gatherings. A concrete driveway leads to the two-car garage, and the property also includes a storage shed plus a covered equipment area with a lawn tractor, along with ample open space on the property to park a trailer, RV, or boat. Located just minutes from The Villages for shopping, dining, and entertainment, with easy access to major highways. Enjoy quiet country living while staying close to everyday conveniences.
Listing Information
Property Type: Residential, Single Family Residence
Status: Pending
Bedrooms: 3
Bathrooms: 2
Lot Size: 0.59 Acres
Square Feet: 1,402 sq ft
Year Built: 2022
Garage: Yes
Stories: 1 Story
Construction: Cement Siding,HardiPlank Type
Construction Display: New Construction
Subdivision: N/A
Foundation: Slab
County: Sumter
Construction Status: New Construction
School Information
Elementary: Lake Panasoffkee Elementary
Middle: South Sumter Middle
High: South Sumter High
Room Information
Main Floor
Living Room: 20x16
Kitchen: 10x8
Primary Bedroom: 16x12
Bathrooms
Full Baths: 2
Additonal Room Information
Laundry: Inside, Washer Hookup, Laundry Room, Electric Dryer Hookup
Interior Features
Appliances: Water Softener, Dishwasher, Microwave, Range, Refrigerator
Flooring: Laminate,Tile
Additional Interior Features: Eat-In Kitchen, Vaulted Ceiling(s), Ceiling Fan(s), Walk-In Closet(s), Tray Ceiling(s), Built-in Features, Cathedral Ceiling(s), High Ceilings, Open Floorplan, Main Level Primary, Kitchen/Family Room Combo, Solid Surface Counters, Stone Counters, Wood Cabinets
Utilities
Water: Well
Sewer: Septic Tank
Other Utilities: Cable Available,Electricity Connected
Cooling: Ceiling Fan(s), Central Air
Heating: Central
Exterior / Lot Features
Attached Garage: Attached Garage
Garage Spaces: 2
Parking Description: Garage, Garage Door Opener, driveway
Roof: Metal
Additional Exterior/Lot Features: Fire Pit, Storage, Covered, Patio, Front Porch, Rear Porch, Screened
Out Buildings: Storage, Shed(s)
Driving Directions
From I-75 Exit 321 (Bushnell/Wildwood) Take US-301 South toward Bushnell. Turn left (east) onto County Road 526 and continue approximately 4 miles. The property will be on your left at 2924 CR 526
Financial Considerations
Terms: Cash,Conventional,FHA,USDA Loan,VA Loan
Tax/Property ID: J13-141
Tax Amount: 1195
Tax Year: 2025
A broker reciprocity listing courtesy: SALLY LOVE REAL ESTATE
Based on information provided by Stellar MLS as distributed by the MLS GRID. Information from the Internet Data Exchange is provided exclusively for consumers’ personal, non-commercial use, and such information may not be used for any purpose other than to identify prospective properties consumers may be interested in purchasing. This data is deemed reliable but is not guaranteed to be accurate by Edina Realty, Inc., or by the MLS. Edina Realty, Inc., is not a multiple listing service (MLS), nor does it offer MLS access.
Copyright 2026 Stellar MLS as distributed by the MLS GRID. All Rights Reserved.
Sales History & Tax Summary for 2924 Cr 526
Sales History
| Date | Price | |
|---|---|---|
| Currently not available. | ||
Tax Summary
| Tax Year | Estimated Market Value | Total Tax |
|---|---|---|
| Currently not available. | ||
Data powered by ATTOM Data Solutions. Copyright© 2026. Information deemed reliable but not guaranteed.
Schools
Schools nearby 2924 Cr 526
| Schools in attendance boundaries | Grades | Distance | Rating |
|---|---|---|---|
| Loading... | |||
| Schools nearby | Grades | Distance | Rating |
|---|---|---|---|
| Loading... | |||
Data powered by ATTOM Data Solutions. Copyright© 2026. Information deemed reliable but not guaranteed.
The schools shown represent both the assigned schools and schools by distance based on local school and district attendance boundaries. Attendance boundaries change based on various factors and proximity does not guarantee enrollment eligibility. Please consult your real estate agent and/or the school district to confirm the schools this property is zoned to attend. Information is deemed reliable but not guaranteed.
SchoolDigger ® Rating
The SchoolDigger rating system is a 1-5 scale with 5 as the highest rating. SchoolDigger ranks schools based on test scores supplied by each state's Department of Education. They calculate an average standard score by normalizing and averaging each school's test scores across all tests and grades.
Coming soon properties will soon be on the market, but are not yet available for showings.