29250 Us Highway 19 N #578 Clearwater, FL 33761
For Sale MLS# TB8469027
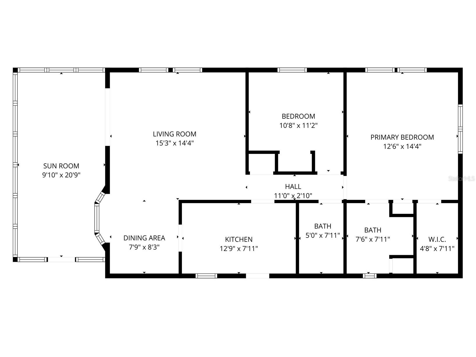
2 beds 2 baths 1,170 sq ft Single Family
Details for 29250 Us Highway 19 N #578
MLS# TB8469027
Description for 29250 Us Highway 19 N #578, Clearwater, FL, 33761
FULLY REMODELED 2-bedroom, 2-bathroom home in the DESIRABLE, GATED 55+ PARK COMMUNITY of Doral Village, offering affordable living with the benefit of a resident-owned park, ensuring long-term stability and value for its homeowners. With NO LOT RENT, park voting rights, and a low monthly maintenance fee of just $238, which covers water, sewer, lawn care, and garbage, this home combines comfort with cost efficiency. Spanning 930 square feet, the split floor plan has been thoughtfully updated throughout. The kitchen features NEW CUSTOM CABINETRY, granite countertops, and lots of storage. Modern fixtures and WATERPROOF LUXURY VINYL FLOORING throughout add both function and peace of mind. The SPACIOUS PRIMARY SUITE offers a newly remodeled private bath with a walk-in shower, while the second updated bathroom includes a tub and cabinetry. Additional highlight include a bonus room perfect for morning coffee or entertainment. Practical features include a large two-car carport and an outside utility room with washer and dryer. Step outside and enjoy the RESORT-STYLE AMENITIES of Doral Village, including a heated pool, hot tub, shuffleboard, billiards, and a wide array of social activities such as golf, bowling, card games, dances, and travel outings. This pet-friendly community is ideally located near golf courses, beautiful beaches, shopping, dining, medical facilities, and just 30 minutes to two major airports. Move-in ready and beautifully renovated, this home offers a vibrant, active lifestyle in one of the area’s most sought-after 55+ communities.
Listing Information
Property Type: Residential, Mobile Home
Status: Active
Bedrooms: 2
Bathrooms: 2
Lot Size: 0.10 Acres
Square Feet: 1,170 sq ft
Year Built: 1976
Stories: 1 Story
Construction: Metal Frame
Subdivision: Doral Ro Association Inc Unrec
County: Pinellas
Room Information
Main Floor
Bedroom 2:
Bathroom 2:
Bathroom 1:
Living Room:
Kitchen:
Primary Bedroom:
Bathrooms
Full Baths: 2
Additonal Room Information
Laundry: Washer Hookup, Laundry Room, Electric Dryer Hookup, Outside
Interior Features
Appliances: Dishwasher, Microwave, Range, Refrigerator
Flooring: Luxury Vinyl
Additional Interior Features: Split Bedrooms, Built-in Features, Ceiling Fan(s), Solid Surface Counters, Wood Cabinets, Main Level Primary
Utilities
Water: Public
Sewer: Public Sewer
Other Utilities: Cable Available,Electricity Connected,High Speed Internet Available,Sewer Connected,Water Connected
Cooling: Ceiling Fan(s), Central Air
Heating: Electric, Heat Pump
Exterior / Lot Features
Roof: Metal, Membrane
Pool: Community
Additional Exterior/Lot Features: Private Entrance, Awning(s)
Community Features
Community Features: Pool, Tennis Court(s), Clubhouse
Homeowners Association: Yes
HOA Dues: $238 / Monthly
Driving Directions
Enter community from Belcher road. Go North on Belcher Rd. Turn right on Spanish Vista Dr. At the Doral community entrance, turn right to Via Dorado. Follow the road onto Oro Dr. Go around then turn right onto Azul Ct. Home is the 3rd house on the right #578.
Financial Considerations
Terms: Cash,Conventional,FHA,VA Loan
Tax/Property ID: 19-28-16-21904-000-5780
Tax Amount: 1739.51
Tax Year: 2024
A broker reciprocity listing courtesy: CHARLES RUTENBERG REALTY INC
Based on information provided by Stellar MLS as distributed by the MLS GRID. Information from the Internet Data Exchange is provided exclusively for consumers’ personal, non-commercial use, and such information may not be used for any purpose other than to identify prospective properties consumers may be interested in purchasing. This data is deemed reliable but is not guaranteed to be accurate by Edina Realty, Inc., or by the MLS. Edina Realty, Inc., is not a multiple listing service (MLS), nor does it offer MLS access.
Copyright 2026 Stellar MLS as distributed by the MLS GRID. All Rights Reserved.
Payment Calculator
Interest rate and annual percentage rate (APR) are based on current market conditions, are for informational purposes only, are subject to change without notice and may be subject to pricing add-ons related to property type, loan amount, loan-to-value, credit score and other variables. Estimated closing costs used in the APR calculation are assumed to be paid by the borrower at closing. If the closing costs are financed, the loan, APR and payment amounts will be higher. If the down payment is less than 20%, mortgage insurance may be required and could increase the monthly payment and APR. Contact us for details. Additional loan programs may be available. Accuracy is not guaranteed, and all products may not be available in all borrower's geographical areas and are based on their individual situation. This is not a credit decision or a commitment to lend.
Sales History & Tax Summary for 29250 Us Highway 19 N #578
Sales History
| Date | Price | |
|---|---|---|
| Currently not available. | ||
Tax Summary
| Tax Year | Estimated Market Value | Total Tax |
|---|---|---|
| Currently not available. | ||
Data powered by ATTOM Data Solutions. Copyright© 2026. Information deemed reliable but not guaranteed.
Schools
Schools nearby 29250 Us Highway 19 N #578
| Schools in attendance boundaries | Grades | Distance | Rating |
|---|---|---|---|
| Loading... | |||
| Schools nearby | Grades | Distance | Rating |
|---|---|---|---|
| Loading... | |||
Data powered by ATTOM Data Solutions. Copyright© 2026. Information deemed reliable but not guaranteed.
The schools shown represent both the assigned schools and schools by distance based on local school and district attendance boundaries. Attendance boundaries change based on various factors and proximity does not guarantee enrollment eligibility. Please consult your real estate agent and/or the school district to confirm the schools this property is zoned to attend. Information is deemed reliable but not guaranteed.
SchoolDigger ® Rating
The SchoolDigger rating system is a 1-5 scale with 5 as the highest rating. SchoolDigger ranks schools based on test scores supplied by each state's Department of Education. They calculate an average standard score by normalizing and averaging each school's test scores across all tests and grades.
Coming soon properties will soon be on the market, but are not yet available for showings.