2945 2nd Court Deland, FL 32724
For Sale MLS# TB8411221
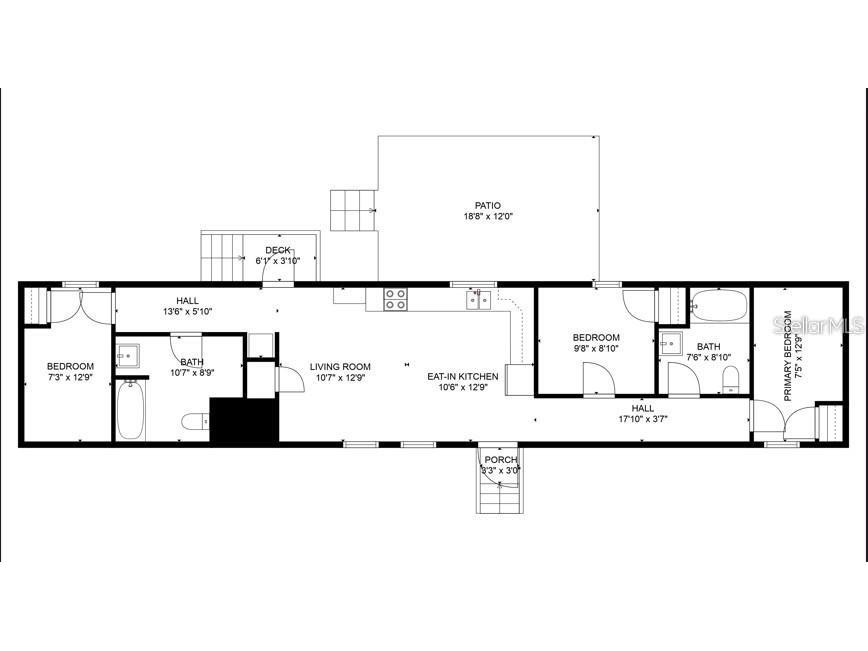
3 beds 2 baths 960 sq ft Single Family
Details for 2945 2nd Court
MLS# TB8411221
Description for 2945 2nd Court, Deland, FL, 32724
Welcome to this beautiful, manufactured home at the end of a quiet cul-de-sac, this 3-bedroom, 2-bathroom featuring an open-concept layout perfect for modern living. Enjoy a bright, airy interior with seamless flow between the kitchen, dining and living areas. The large backyard space offers a beautiful entertaining area for family and friends or simply relaxing outdoors after a long day. This home is located in a great location in Deland with easy access to local amenities, don't miss out on this perfect opportunity! Contact me to schedule a showing!
Listing Information
Property Type: Residential, Manufactured Home
Status: Active
Bedrooms: 3
Bathrooms: 2
Lot Size: 0.24 Acres
Square Feet: 960 sq ft
Year Built: 2022
Stories: 1 Story
Construction: Vinyl Siding,Wood Frame
Construction Display: New Construction
Subdivision: Northwood Rep Lt F & N 160 Ft Lt G
Foundation: Concrete Perimeter,Slab
County: Volusia
Construction Status: New Construction
School Information
Elementary: George Marks Elem
Middle: Deland Middle
High: Deland High
Room Information
Main Floor
Kitchen:
Primary Bedroom:
Bedroom 1:
Living Room:
Primary Bathroom:
Bathroom 1:
Bathrooms
Full Baths: 2
Additonal Room Information
Laundry: Washer Hookup, Electric Dryer Hookup
Interior Features
Appliances: Range, Refrigerator, Microwave, Range Hood
Flooring: Vinyl
Additional Interior Features: Kitchen/Family Room Combo, Open Floorplan
Utilities
Water: Public
Sewer: Septic Tank
Other Utilities: Electricity Available,Water Available
Cooling: Central Air
Heating: Propane
Exterior / Lot Features
Roof: Metal
Lot Dimensions: 75x140
Driving Directions
Follow I-4 E to FL-44 W/E New York Ave in Volusia County. Take the FL-44 W exit from I-4 E 13 min (14.6 mi) Merge onto I-4 E Exit onto FL-44 W/t New York Ave toward DeLand Historic Dist Continue on FL-44 W/t New York Ave. lake Blue Lake Ave, US-92 W/& International Speedway Blvd and US-17 N/N Woodland Blvd to 2nd Ct 16 min (8.5 mi) Merge onto FL-44 W/E New York Ave Turn right onto Blue Lake Ave, 1.2 mi turn right onto Jacobs Rd, 0.8 mi turn left onto US-92 W/E Internation Speedway Blvd. 1.4 mi turn onto US-17 N/N Woodland Blvd, 1.0 mi Slight right onto SR 11, 0.2 mi Continue onto FL-11 N, 0.4 mi Turn right onto June Terrace 0.1 mi Turn left onto 2nd Court.
Financial Considerations
Terms: Cash,Conventional,FHA
Tax/Property ID: US-60-28-02-00-0170
Tax Amount: 530.8
Tax Year: 2024
A broker reciprocity listing courtesy: AMO REALTY INC.
Based on information provided by Stellar MLS as distributed by the MLS GRID. Information from the Internet Data Exchange is provided exclusively for consumers’ personal, non-commercial use, and such information may not be used for any purpose other than to identify prospective properties consumers may be interested in purchasing. This data is deemed reliable but is not guaranteed to be accurate by Edina Realty, Inc., or by the MLS. Edina Realty, Inc., is not a multiple listing service (MLS), nor does it offer MLS access.
Copyright 2026 Stellar MLS as distributed by the MLS GRID. All Rights Reserved.
Payment Calculator
Interest rate and annual percentage rate (APR) are based on current market conditions, are for informational purposes only, are subject to change without notice and may be subject to pricing add-ons related to property type, loan amount, loan-to-value, credit score and other variables. Estimated closing costs used in the APR calculation are assumed to be paid by the borrower at closing. If the closing costs are financed, the loan, APR and payment amounts will be higher. If the down payment is less than 20%, mortgage insurance may be required and could increase the monthly payment and APR. Contact us for details. Additional loan programs may be available. Accuracy is not guaranteed, and all products may not be available in all borrower's geographical areas and are based on their individual situation. This is not a credit decision or a commitment to lend.
Sales History & Tax Summary for 2945 2nd Court
Sales History
| Date | Price | |
|---|---|---|
| Currently not available. | ||
Tax Summary
| Tax Year | Estimated Market Value | Total Tax |
|---|---|---|
| Currently not available. | ||
Data powered by ATTOM Data Solutions. Copyright© 2026. Information deemed reliable but not guaranteed.
Schools
Schools nearby 2945 2nd Court
| Schools in attendance boundaries | Grades | Distance | Rating |
|---|---|---|---|
| Loading... | |||
| Schools nearby | Grades | Distance | Rating |
|---|---|---|---|
| Loading... | |||
Data powered by ATTOM Data Solutions. Copyright© 2026. Information deemed reliable but not guaranteed.
The schools shown represent both the assigned schools and schools by distance based on local school and district attendance boundaries. Attendance boundaries change based on various factors and proximity does not guarantee enrollment eligibility. Please consult your real estate agent and/or the school district to confirm the schools this property is zoned to attend. Information is deemed reliable but not guaranteed.
SchoolDigger ® Rating
The SchoolDigger rating system is a 1-5 scale with 5 as the highest rating. SchoolDigger ranks schools based on test scores supplied by each state's Department of Education. They calculate an average standard score by normalizing and averaging each school's test scores across all tests and grades.
Coming soon properties will soon be on the market, but are not yet available for showings.