2955 N Beach Road #C123 Englewood, FL 34223 - LEMON BAY & GULF OF MEXICO
Pending MLS# D6144662
3 beds 3 baths 1,555 sq ft Condo
Details for 2955 N Beach Road #C123
MLS# D6144662
Description for 2955 N Beach Road #C123, Englewood, FL, 34223 - LEMON BAY & GULF OF MEXICO
Under contract-accepting backup offers. Perfect for Beach and Boat Lovers! Welcome to this beautifully updated 3-bedroom, 3-bath condo in the highly sought-after Tamarind Gulf & Bay community on stunning Manasota Key. This spacious second-floor residence comes completely turnkey furnished, ready for you to move right in and start living the island lifestyle. Enjoy peace of mind with all-new, hurricane-rated windows and doors installed in 2025. The split floor plan offers privacy and functionality, with two bedrooms on the main level and a generous third bedroom and bath in the loft — perfect for guests or a private retreat. Soaring ceilings and oversized windows bathe the space in natural light, while the expansive 26' x 14' lanai is ideal for gatherings with family and friends. Set within a spectacular 9-acre tropical paradise, Tamarind Gulf & Bay is elevated 12–15 feet above sea level and had no water intrusion from the 2024 hurricane. The complex features a true resort-style atmosphere, with lush green space, mature landscaping, and nothing built over three stories. Residents enjoy 400 feet of private beach on the Gulf of Mexico, plus 300 feet of frontage on Lemon Bay, complete with 26 first-come boat slips with water and electricity, a private boat ramp, kayak racks, and a fish-cleaning station — everything you need for a day on the water. After a day of exploring, relax by the heated pool, fire up the outdoor grills, or unwind at the clubhouse. Covered parking, two-pet policy with no weight restrictions, and easy access to miles of pristine beaches make this condo truly special. Step out to enjoy the best of island living — fresh seafood at great local restaurants, charming shops, vibrant nightlife, and endless aquatic adventures like paddleboarding, kayaking, fishing, beach yoga, dolphin and manatee watching, and shell or shark’s tooth hunting. Nearby golf courses, bike trails, and nature preserves add even more ways to enjoy your slice of paradise. Tamarind’s HOA takes care of flood and wind insurance, Xfinity cable and internet, water, trash, exterior maintenance, roof, landscaping, and more — allowing you to focus on living the dream. Call today to schedule your private showing.
Listing Information
Property Type: Residential, Condominium
Status: Pending
Bedrooms: 3
Bathrooms: 3
Lot Size: 0.04 Acres
Square Feet: 1,555 sq ft
Year Built: 1982
Stories: 2 Story
Construction: Block,Stucco
Subdivision: Tamarind Gulf & Bay Bldg C-1
Foundation: Stem Wall
County: Charlotte
School Information
Elementary: Englewood Elementary
Middle: L.A. Ainger Middle
High: Lemon Bay High
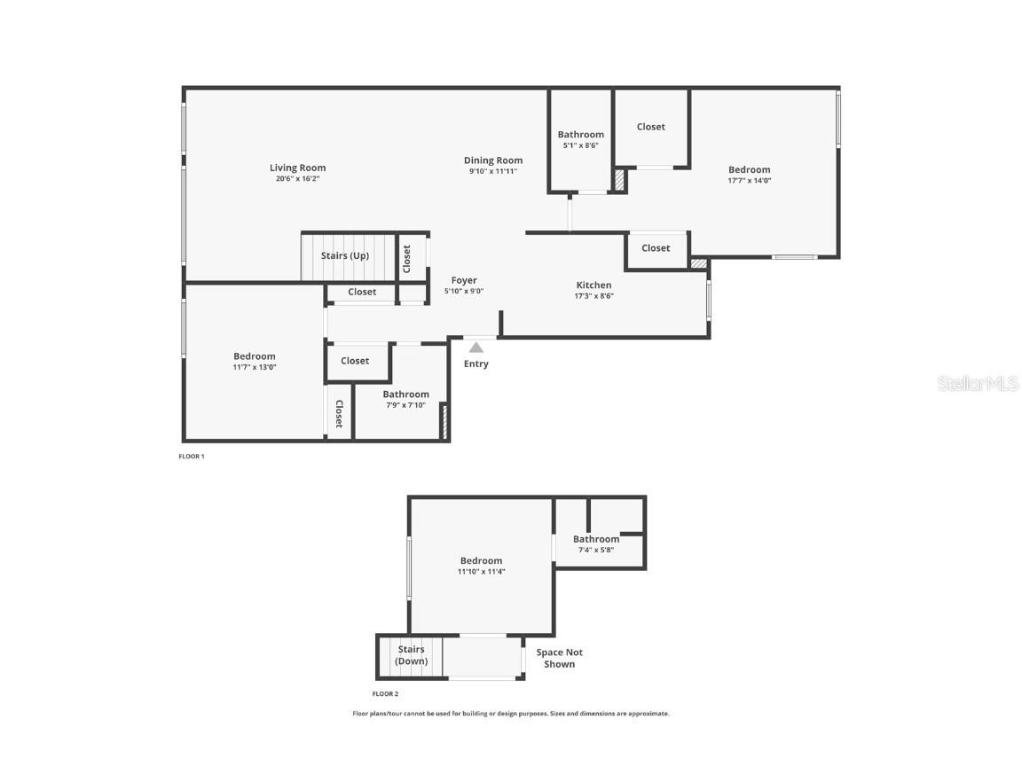
Room Information
Main Floor
Bedroom 1: 11x12
Primary Bedroom: 15x17
Kitchen: 8x17
Dining Room: 11x12
Living Room: 15x21
Upper Floor
Porch: 14x26
Bedroom 2: 11x12
Bathrooms
Full Baths: 3
Additonal Room Information
Laundry: Inside, Common On Floor
Interior Features
Appliances: Range Hood, Electric Water Heater, Washer, Microwave, Range, Refrigerator, Dishwasher, Disposal, Dryer
Flooring: Ceramic Tile,Laminate
Doors/Windows: Window Treatments
Additional Interior Features: Window Treatments, Walk-In Closet(s), Split Bedrooms, Ceiling Fan(s), Vaulted Ceiling(s), Main Level Primary, Living/Dining Room, High Ceilings, Built-in Features, Open Floorplan, Solid Surface Counters, Stone Counters, Wood Cabinets
Utilities
Water: Public
Sewer: Public Sewer
Other Utilities: Cable Connected,Electricity Connected,Municipal Utilities,Sewer Connected,Water Connected
Cooling: Ceiling Fan(s), Central Air
Heating: Electric
Exterior / Lot Features
Roof: Membrane
Pool: Community
Additional Exterior/Lot Features: Storage, Buyer Approval Required
Waterfront Details
Standard Water Body: LEMON BAY & GULF OF MEXICO
Water Front Features: Gulf Access, Beach Access
Community Features
Community Features: Fishing, Golf Carts OK, Boat Facilities, Recreation Area, Water Access, Sidewalks, Boat Slip, Pool, Clubhouse, Waterfront
Association Amenities: Clubhouse, Cable TV
HOA Dues Include: Cable TV, Internet, Water, Trash, Sewer, Association Management, Taxes, Pool(s), Maintenance Grounds, Pest Control, Maintenance Structure, Common Areas, Reserve Fund, Road Maintenance
Homeowners Association: Yes
HOA Dues: $3,775 / Quarterly
Driving Directions
Take 776/Indiana to Englewood Beach Road to round a bout North (right) approximately 1 mile to second Tamarind Bayside entrance to the C Building on your right.
Financial Considerations
Terms: Cash,Conventional
Tax/Property ID: 411901702017
Tax Amount: 8637.66
Tax Year: 2024
A broker reciprocity listing courtesy: KELLER WILLIAMS ISLAND LIFE REAL ESTATE
Based on information provided by Stellar MLS as distributed by the MLS GRID. Information from the Internet Data Exchange is provided exclusively for consumers’ personal, non-commercial use, and such information may not be used for any purpose other than to identify prospective properties consumers may be interested in purchasing. This data is deemed reliable but is not guaranteed to be accurate by Edina Realty, Inc., or by the MLS. Edina Realty, Inc., is not a multiple listing service (MLS), nor does it offer MLS access.
Copyright 2026 Stellar MLS as distributed by the MLS GRID. All Rights Reserved.
Sales History & Tax Summary for 2955 N Beach Road #C123
Sales History
| Date | Price | |
|---|---|---|
| Currently not available. | ||
Tax Summary
| Tax Year | Estimated Market Value | Total Tax |
|---|---|---|
| Currently not available. | ||
Data powered by ATTOM Data Solutions. Copyright© 2026. Information deemed reliable but not guaranteed.
Schools
Schools nearby 2955 N Beach Road #C123
| Schools in attendance boundaries | Grades | Distance | Rating |
|---|---|---|---|
| Loading... | |||
| Schools nearby | Grades | Distance | Rating |
|---|---|---|---|
| Loading... | |||
Data powered by ATTOM Data Solutions. Copyright© 2026. Information deemed reliable but not guaranteed.
The schools shown represent both the assigned schools and schools by distance based on local school and district attendance boundaries. Attendance boundaries change based on various factors and proximity does not guarantee enrollment eligibility. Please consult your real estate agent and/or the school district to confirm the schools this property is zoned to attend. Information is deemed reliable but not guaranteed.
SchoolDigger ® Rating
The SchoolDigger rating system is a 1-5 scale with 5 as the highest rating. SchoolDigger ranks schools based on test scores supplied by each state's Department of Education. They calculate an average standard score by normalizing and averaging each school's test scores across all tests and grades.
Coming soon properties will soon be on the market, but are not yet available for showings.