2959 Hickory Court Dunedin, FL 34698
For Sale MLS# TB8465522
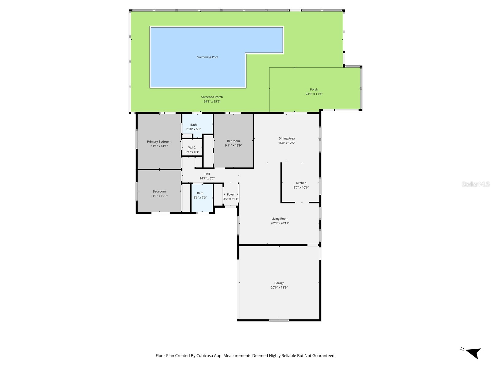
3 beds 2 baths 1,438 sq ft Single Family
Details for 2959 Hickory Court
MLS# TB8465522
Description for 2959 Hickory Court, Dunedin, FL, 34698
PRICE IMPROVEMENT ALERT!!! MOTIVATED SELLER!!! 100% Financing, NO DOWNPAYMENT loan available. Seller will also consider a rate buydown with the right offer. Welcome to this beautifully maintained 3-bedroom, 2-bath home with a screened pool, ideally situated on an attractive corner lot in the Wilshire Estates community of unincorporated Dunedin. Located in the “X” flood zone, this home offers peace of mind along with convenient access to schools, shopping, everyday amenities, Downtown Dunedin, Honeymoon Island & much more. The private backyard is designed for Florida living, featuring an in-ground pool with screen enclosure, newly resurfaced pool finish, and a new filter system. A covered patio with table, chairs, and gas grill provides the perfect setting for outdoor dining and entertaining, with stone walkways leading to the pool on both the east and south sides. An 8’ vinyl privacy fence surrounds the yard, complemented by a shallow well irrigation system with automatic timer. Inside, the home offers low-maintenance ceramic tile flooring throughout, ceiling fans in every room, dimmable lighting, and abundant natural light. The spacious living room features an L-shaped layout with built-in bookshelves and three exterior windows. The family room and multiple bedrooms provide direct access to the pool area. The pool is newly resurfaced, and all new parts in the filter system. The kitchen is well-equipped with stainless steel appliances, including a 24-cu-ft LG refrigerator (purchased 9/2023), Frigidaire electric range with self-cleaning oven (purchased 5/2021 and under warranty), dishwasher, microwave, stainless double sink with disposal, concealed lighting, ceramic tile backsplash, and generous cabinet space. All bedrooms offer ample closet storage, with a walk-in closet in the primary suite. The primary bedroom and one additional bedroom feature private exit doors to the pool. The primary bath includes a tub/shower combination, vanity storage, recessed lighting, and ceramic tile throughout. The main bath features a large walk-in shower, wall closet, ceramic tile, and updated commode components. Additional highlights include a double-car garage with automatic opener, hurricane-rated garage door, overhead storage with drop-down ladder, washer/dryer hookups, a 52-gallon quick-recovery water heater still under warranty, central heat and air with Honeywell programmable thermostat, concrete driveway, smoke detectors, and window blinds throughout, HOA is optional. 4 point inspection attached. From Pinellas County: 2959 Hickory Ct, Dunedin is a single family home, one living unit, located in the unincorporated part of the county. Short term rentals, periods of under 30 days, if a Certificate of Use is obtained. Property was purchased by current seller with a property settlement/sinkhole repaired. Full engineer report & seller explanation attached. This well-cared-for Dunedin home offers comfort, privacy, and true Florida lifestyle living.
Listing Information
Property Type: Residential, Single Family Residence
Status: Active
Bedrooms: 3
Bathrooms: 2
Lot Size: 0.22 Acres
Square Feet: 1,438 sq ft
Year Built: 1976
Garage: Yes
Stories: 1 Story
Construction: Block
Construction Display: New Construction
Subdivision: Wilshire Estates
Foundation: Block
County: Pinellas
Construction Status: New Construction
School Information
Elementary: Garrison-Jones Elementary-Pn
Middle: Palm Harbor Middle-Pn
High: Dunedin High-Pn
Room Information
Main Floor
Bathroom 2: 13x9
Bedroom 2: 13x9
Living Room: 20x20
Bedroom 1: 10.6x11
Kitchen: 11x10
Primary Bedroom: 6x8
Primary Bedroom: 14x11
Bathrooms
Full Baths: 2
Additonal Room Information
Laundry: In Garage
Interior Features
Appliances: Built-In Oven, Dishwasher, Dryer, Microwave, Range, Refrigerator, Washer
Flooring: Ceramic Tile,Tile
Additional Interior Features: High Ceilings, Main Level Primary
Utilities
Water: Public
Sewer: Public Sewer
Other Utilities: Cable Available,Cable Connected,Electricity Available,Electricity Connected
Cooling: Central Air
Heating: Central
Exterior / Lot Features
Attached Garage: Attached Garage
Garage Spaces: 2
Roof: Shingle
Pool: In Ground, Pool Sweep, Screen Enclosure
Lot Dimensions: 85x114
Additional Exterior/Lot Features: Private Yard, Sprinkler/Irrigation, Outdoor Grill
Community Features
Homeowners Association: Yes
HOA Dues: $50 / Annually
Driving Directions
Belcher to Wilshire Dr, right to Leisure Ct, left on Colonial, right on Hickory
Financial Considerations
Terms: Cash,Conventional,FHA,VA Loan
Tax/Property ID: 19-28-16-98127-000-0510
Tax Amount: 6247.8
Tax Year: 2024
A broker reciprocity listing courtesy: KELLER WILLIAMS REALTY- PALM H
Based on information provided by Stellar MLS as distributed by the MLS GRID. Information from the Internet Data Exchange is provided exclusively for consumers’ personal, non-commercial use, and such information may not be used for any purpose other than to identify prospective properties consumers may be interested in purchasing. This data is deemed reliable but is not guaranteed to be accurate by Edina Realty, Inc., or by the MLS. Edina Realty, Inc., is not a multiple listing service (MLS), nor does it offer MLS access.
Copyright 2026 Stellar MLS as distributed by the MLS GRID. All Rights Reserved.
Payment Calculator
Interest rate and annual percentage rate (APR) are based on current market conditions, are for informational purposes only, are subject to change without notice and may be subject to pricing add-ons related to property type, loan amount, loan-to-value, credit score and other variables. Estimated closing costs used in the APR calculation are assumed to be paid by the borrower at closing. If the closing costs are financed, the loan, APR and payment amounts will be higher. If the down payment is less than 20%, mortgage insurance may be required and could increase the monthly payment and APR. Contact us for details. Additional loan programs may be available. Accuracy is not guaranteed, and all products may not be available in all borrower's geographical areas and are based on their individual situation. This is not a credit decision or a commitment to lend.
Sales History & Tax Summary for 2959 Hickory Court
Sales History
| Date | Price | |
|---|---|---|
| Currently not available. | ||
Tax Summary
| Tax Year | Estimated Market Value | Total Tax |
|---|---|---|
| Currently not available. | ||
Data powered by ATTOM Data Solutions. Copyright© 2026. Information deemed reliable but not guaranteed.
Schools
Schools nearby 2959 Hickory Court
| Schools in attendance boundaries | Grades | Distance | Rating |
|---|---|---|---|
| Loading... | |||
| Schools nearby | Grades | Distance | Rating |
|---|---|---|---|
| Loading... | |||
Data powered by ATTOM Data Solutions. Copyright© 2026. Information deemed reliable but not guaranteed.
The schools shown represent both the assigned schools and schools by distance based on local school and district attendance boundaries. Attendance boundaries change based on various factors and proximity does not guarantee enrollment eligibility. Please consult your real estate agent and/or the school district to confirm the schools this property is zoned to attend. Information is deemed reliable but not guaranteed.
SchoolDigger ® Rating
The SchoolDigger rating system is a 1-5 scale with 5 as the highest rating. SchoolDigger ranks schools based on test scores supplied by each state's Department of Education. They calculate an average standard score by normalizing and averaging each school's test scores across all tests and grades.
Coming soon properties will soon be on the market, but are not yet available for showings.