$435,000
2968 On The Rocks Point Kissimmee, FL 34747
For Sale MLS# TB8453088
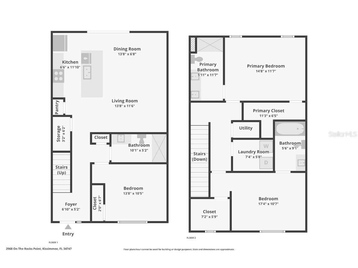
3 beds 3 baths 1,545 sq ft Townhouse/Twinhome
Details for 2968 On The Rocks Point
MLS# TB8453088
Description for 2968 On The Rocks Point, Kissimmee, FL, 34747
Step into a little slice of paradise with this fully furnished 3-bed/3-bath Key West–inspired villa tucked inside the Margaritaville Resort, just minutes from Disney. From the moment you walk in, the bright and breezy feel sets the tone for a relaxing escape, with 10-foot ceilings, wood-look tile floors, gorgeous quartz surfaces, and a full suite of Samsung appliances already in place. The open layout makes everyday living easy, and the sliding doors lead to a private patio with brick pavers—perfect for morning coffee or unwinding at the end of the day. The spare bedrooms each feature fun themed wall murals that add an extra touch of magic, especially in a setting so close to the parks. You’ll also enjoy an incredible selection of resort-style amenities, including multiple pools, the H2O water park, restaurants, bars, walking trails, a fitness center, a full-service spa, and endless entertainment options nearby. This villa includes a lockable owners’ closet, double-paned windows for added efficiency, and stylish furnishings. It’s an inviting, turnkey opportunity in one of the most carefree settings in Central Florida—schedule your visit and experience it for yourself.
Listing Information
Property Type: Residential, Townhouse
Status: Active
Bedrooms: 3
Bathrooms: 3
Lot Size: 0.03 Acres
Square Feet: 1,545 sq ft
Year Built: 2022
Stories: 2 Story
Construction: Block,Stucco
Subdivision: Rolling Oaks Ph 7
Foundation: Slab
County: Osceola
School Information
Elementary: Westside K-8
Middle: Kissimmee Middle
High: Celebration High
Room Information
Main Floor
Living Room: 17x14
Kitchen: 15x8
Upper Floor
Primary Bedroom: 17x12
Bathrooms
Full Baths: 3
Additonal Room Information
Laundry: Inside, Laundry Room
Interior Features
Appliances: Electric Water Heater, Range, Refrigerator, Washer, Dishwasher, Disposal, Dryer, Microwave
Flooring: Ceramic Tile
Doors/Windows: Window Treatments, Blinds, Double Pane Windows
Additional Interior Features: Eat-In Kitchen, Window Treatments, Ceiling Fan(s), Walk-In Closet(s), High Ceilings, Living/Dining Room, Open Floorplan, Kitchen/Family Room Combo, Solid Surface Counters, Stone Counters, Upper Level Primary
Utilities
Water: Public
Sewer: Public Sewer
Other Utilities: Cable Connected,Electricity Connected,High Speed Internet Available,Municipal Utilities,Sewer Connected,Underground Utilities,Water Connected
Cooling: Ceiling Fan(s), Central Air
Heating: Central
Exterior / Lot Features
Roof: Shingle
Pool: Community, Association
Lot View: Garden
Additional Exterior/Lot Features: Sprinkler/Irrigation, Lighting, Patio, Landscaped
Community Features
Community Features: Pool, Sidewalks, Playground, Handicap Access, Waterfront, Street Lights, Gated, Park, Fitness, Golf Carts OK, Clubhouse
Security Features: Gated Community
Association Amenities: Playground, Pool, Trail(s)
HOA Dues Include: Maintenance Grounds, Maintenance Structure, Pest Control, Road Maintenance, Common Areas, Pool(s), Cable TV, Internet, Trash, Security, Sewer, Taxes
Homeowners Association: Yes
HOA Dues: $583 / Monthly
Driving Directions
From I-4, exit on the FL-429 North to US-192 East. Then Right at Rolling Oaks Blvd., L on Fiins Up and L on On the Rocks Pt. Home is on the right
Financial Considerations
Terms: Cash,Conventional,FHA,VA Loan
Tax/Property ID: 04-25-27-5016-0001-0170
Tax Amount: 7826.4
Tax Year: 2025
A broker reciprocity listing courtesy: REDFIN CORPORATION
Based on information provided by Stellar MLS as distributed by the MLS GRID. Information from the Internet Data Exchange is provided exclusively for consumers’ personal, non-commercial use, and such information may not be used for any purpose other than to identify prospective properties consumers may be interested in purchasing. This data is deemed reliable but is not guaranteed to be accurate by Edina Realty, Inc., or by the MLS. Edina Realty, Inc., is not a multiple listing service (MLS), nor does it offer MLS access.
Copyright 2025 Stellar MLS as distributed by the MLS GRID. All Rights Reserved.
Payment Calculator
Interest rate and annual percentage rate (APR) are based on current market conditions, are for informational purposes only, are subject to change without notice and may be subject to pricing add-ons related to property type, loan amount, loan-to-value, credit score and other variables. Estimated closing costs used in the APR calculation are assumed to be paid by the borrower at closing. If the closing costs are financed, the loan, APR and payment amounts will be higher. If the down payment is less than 20%, mortgage insurance may be required and could increase the monthly payment and APR. Contact us for details. Additional loan programs may be available. Accuracy is not guaranteed, and all products may not be available in all borrower's geographical areas and are based on their individual situation. This is not a credit decision or a commitment to lend.
Sales History & Tax Summary for 2968 On The Rocks Point
Sales History
| Date | Price | Change |
|---|---|---|
| Currently not available. | ||
Tax Summary
| Tax Year | Estimated Market Value | Total Tax |
|---|---|---|
| Currently not available. | ||
Data powered by ATTOM Data Solutions. Copyright© 2025. Information deemed reliable but not guaranteed.
Schools
Schools nearby 2968 On The Rocks Point
| Schools in attendance boundaries | Grades | Distance | Rating |
|---|---|---|---|
| Loading... | |||
| Schools nearby | Grades | Distance | Rating |
|---|---|---|---|
| Loading... | |||
Data powered by ATTOM Data Solutions. Copyright© 2025. Information deemed reliable but not guaranteed.
The schools shown represent both the assigned schools and schools by distance based on local school and district attendance boundaries. Attendance boundaries change based on various factors and proximity does not guarantee enrollment eligibility. Please consult your real estate agent and/or the school district to confirm the schools this property is zoned to attend. Information is deemed reliable but not guaranteed.
SchoolDigger ® Rating
The SchoolDigger rating system is a 1-5 scale with 5 as the highest rating. SchoolDigger ranks schools based on test scores supplied by each state's Department of Education. They calculate an average standard score by normalizing and averaging each school's test scores across all tests and grades.
Coming soon properties will soon be on the market, but are not yet available for showings.