297 Shadow Ridge Trail Ponte Vedra, FL 32081
For Sale MLS# O6326032
3 beds 3 baths 2,069 sq ft Single Family
Details for 297 Shadow Ridge Trail
MLS# O6326032
Description for 297 Shadow Ridge Trail, Ponte Vedra, FL, 32081
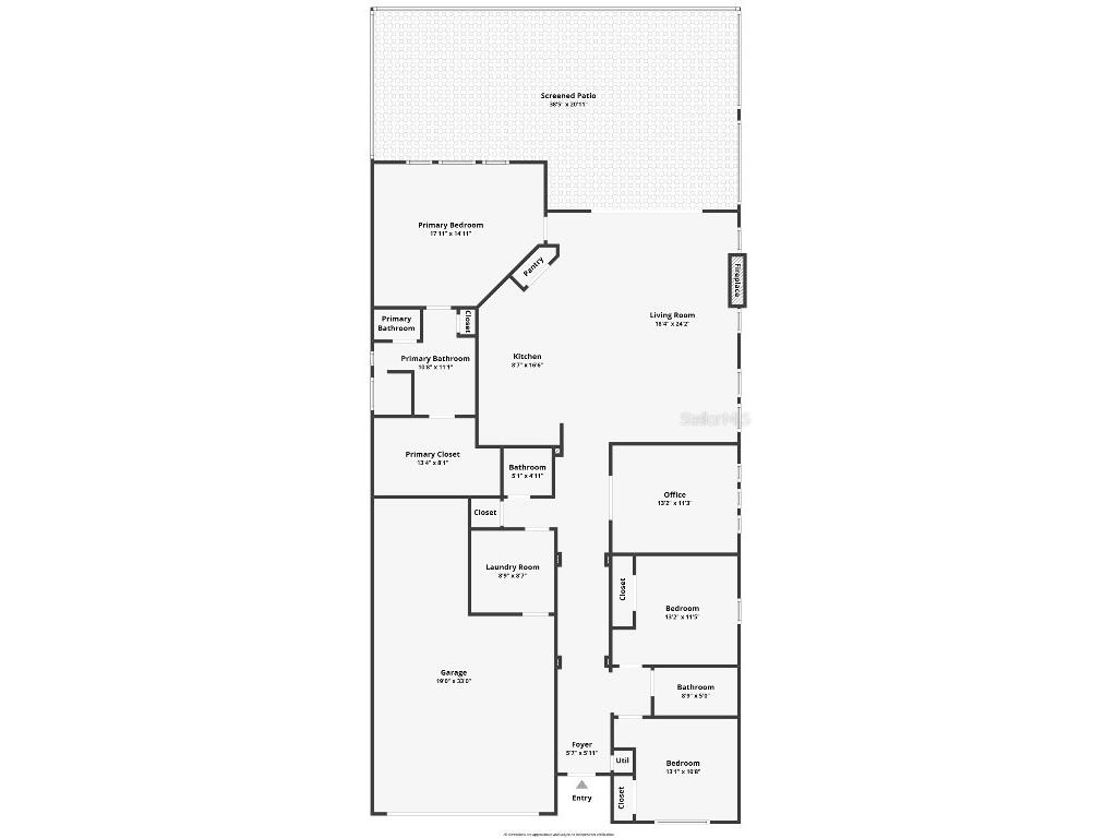
Discover resort-style living in this upgraded ICI-built Sienna model on a quiet cul-de-sac surrounded by preserve. This 3BR + office, 2.5BA, 3-car garage home offers 2,069 sq ft of open living space with custom upgrades throughout. The gourmet kitchen features granite countertops, stainless appliances, a walk-in pantry, and a large island. Relax in the spacious living room with shiplap accent wall and fireplace, or unwind in the primary suite with walk-in closet and spa-like bath. Enjoy Florida living year-round in the expansive 38’ x 21’ screened lanai with full outdoor kitchen, covered dining, and hot tub zone—all overlooking the peaceful preserve. Located near Pine Island Academy, Crosswater Park, and Nocatee amenities including water parks, fitness trails, kayak launches, and more.
Listing Information
Property Type: Residential, Single Family Residence
Status: Active
Bedrooms: 3
Bathrooms: 3
Lot Size: 0.20 Acres
Square Feet: 2,069 sq ft
Year Built: 2018
Garage: Yes
Stories: 1 Story
Construction: Block
Subdivision: Crosswater Village Ph 1 B
Foundation: Slab
County: St Johns
Room Information
Main Floor
Great Room:
Kitchen:
Laundry:
Office:
Bedroom 2:
Bedroom 1:
Primary Bedroom:
Bathrooms
Full Baths: 2
1/2 Baths: 1
Additonal Room Information
Laundry: Washer Hookup, Laundry Room, Electric Dryer Hookup, Gas Dryer Hookup
Interior Features
Appliances: Water Purifier, Bar Fridge, Range Hood, Cooktop, Dishwasher, Disposal, Dryer, Microwave, Range, Refrigerator, Washer, Gas Water Heater, Built-In Oven
Flooring: Carpet,Ceramic Tile,Laminate
Fireplaces: Electric
Additional Interior Features: Ceiling Fan(s)
Utilities
Sewer: Public Sewer
Other Utilities: Natural Gas Connected,Municipal Utilities,Sewer Connected,Water Connected,Water Not Available
Cooling: Ceiling Fan(s), Central Air
Heating: Electric
Exterior / Lot Features
Attached Garage: Attached Garage
Garage Spaces: 3
Roof: Shingle
Additional Exterior/Lot Features: Outdoor Grill, Outdoor Kitchen
Community Features
Homeowners Association: Yes
HOA Dues: $989 / Annually
Driving Directions
Cross streets: Crosswater Parkway and Crosswater Lake Drive
Financial Considerations
Terms: Cash,Conventional,FHA,VA Loan
Tax/Property ID: 070491-3780
Tax Amount: 6679
Tax Year: 2024
A broker reciprocity listing courtesy: EXP REALTY LLC
Based on information provided by Stellar MLS as distributed by the MLS GRID. Information from the Internet Data Exchange is provided exclusively for consumers’ personal, non-commercial use, and such information may not be used for any purpose other than to identify prospective properties consumers may be interested in purchasing. This data is deemed reliable but is not guaranteed to be accurate by Edina Realty, Inc., or by the MLS. Edina Realty, Inc., is not a multiple listing service (MLS), nor does it offer MLS access.
Copyright 2025 Stellar MLS as distributed by the MLS GRID. All Rights Reserved.
Payment Calculator
Interest rate and annual percentage rate (APR) are based on current market conditions, are for informational purposes only, are subject to change without notice and may be subject to pricing add-ons related to property type, loan amount, loan-to-value, credit score and other variables. Estimated closing costs used in the APR calculation are assumed to be paid by the borrower at closing. If the closing costs are financed, the loan, APR and payment amounts will be higher. If the down payment is less than 20%, mortgage insurance may be required and could increase the monthly payment and APR. Contact us for details. Additional loan programs may be available. Accuracy is not guaranteed, and all products may not be available in all borrower's geographical areas and are based on their individual situation. This is not a credit decision or a commitment to lend.
Sales History & Tax Summary for 297 Shadow Ridge Trail
Sales History
| Date | Price | Change |
|---|---|---|
| Currently not available. | ||
Tax Summary
| Tax Year | Estimated Market Value | Total Tax |
|---|---|---|
| Currently not available. | ||
Data powered by ATTOM Data Solutions. Copyright© 2025. Information deemed reliable but not guaranteed.
Schools
Schools nearby 297 Shadow Ridge Trail
| Schools in attendance boundaries | Grades | Distance | Rating |
|---|---|---|---|
| Loading... | |||
| Schools nearby | Grades | Distance | Rating |
|---|---|---|---|
| Loading... | |||
Data powered by ATTOM Data Solutions. Copyright© 2025. Information deemed reliable but not guaranteed.
The schools shown represent both the assigned schools and schools by distance based on local school and district attendance boundaries. Attendance boundaries change based on various factors and proximity does not guarantee enrollment eligibility. Please consult your real estate agent and/or the school district to confirm the schools this property is zoned to attend. Information is deemed reliable but not guaranteed.
SchoolDigger ® Rating
The SchoolDigger rating system is a 1-5 scale with 5 as the highest rating. SchoolDigger ranks schools based on test scores supplied by each state's Department of Education. They calculate an average standard score by normalizing and averaging each school's test scores across all tests and grades.
Coming soon properties will soon be on the market, but are not yet available for showings.