2980 Haines Bayshore Road #105 Clearwater, FL 33760 - OLD TAMPA BAY
For Sale MLS# TB8399679
2 beds 3 baths 1,210 sq ft Condo
Details for 2980 Haines Bayshore Road #105
MLS# TB8399679
Description for 2980 Haines Bayshore Road #105, Clearwater, FL, 33760 - OLD TAMPA BAY
Breathtaking Waterfront Townhome with Direct Tampa Bay Views – Caribay, Clearwater Welcome to your Florida dream home! Nestled in the highly sought-after Caribay community of Clearwater, this stunning 2-bedroom, 2.5-bathroom townhouse-style condo offers spectacular, unobstructed panoramic views of Old Tampa Bay. When it comes to location and lifestyle, it truly doesn’t get any better. This spacious residence features an open-concept floor plan on the main level, including a generous living and dining area perfect for entertaining, and a beautiful galley-style kitchen with modern appliances and convenience. Natural light pours in through expansive wall to wall sliders, making every day feel like a getaway. Upstairs, you’ll find two oversized bedrooms, each with its own private en-suite bathroom. Wake up to sunrise over the water from the master suite, which boasts a stunning wall-to-wall, floor-to-ceiling view of the bay—it’s a daily reminder of why you chose to live in paradise. The unit also features an oversized carport with a garage-style door, offering ample storage space for beach gear, bikes, kayaks, or your favorite toys. There’s even room for a second vehicle in the driveway. Caribay offers a resort-style lifestyle with amenities that include: • A spacious clubhouse with a pool table, living room style room with large-screen TV (perfect for watching the Bucs, Bolts, or Rays), kitchenette, multi-purpose room, and full bathrooms with showers. • A private fishing pier—ideal for sunbathing, birdwatching, or casting a line to catch dinner (snook, redfish and speckled trout have been known to cruise the shoreline). • A beautiful heated pool with year-round enjoyment. • A tennis court also lined for pickleball. • Kayak and paddleboard storage with a convenient launch area. And the location? You’re just minutes from Tampa International Airport and St. Pete-Clearwater International, world-class beaches like Clearwater Beach and Treasure Island, and close to the vibrant dining, art, and entertainment scenes of downtown St. Pete and Tampa. Enjoy easy access to spring training games, festivals, seasonal events, and more. Best of all, this property was unaffected by recent hurricanes—peace of mind included. Whether you’re seeking a full-time residence, vacation getaway, or investment opportunity, this bayfront beauty delivers the ultimate Florida lifestyle. Don’t miss your chance to live waterfront in Caribay! (Some Photos have been virtually staged)
Listing Information
Property Type: Residential, Condominium
Status: Active
Bedrooms: 2
Bathrooms: 3
Lot Size: 6.23 Acres
Square Feet: 1,210 sq ft
Year Built: 1975
Stories: 2 Story
Construction: Block
Property Attached: Yes
Subdivision: Caribay Condo
Foundation: Slab
County: Pinellas
School Information
Elementary: Belcher Elementary-Pn
Middle: Oak Grove Middle-Pn
High: Pinellas Park High-Pn
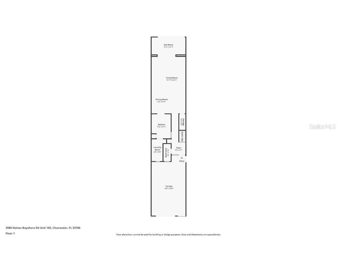
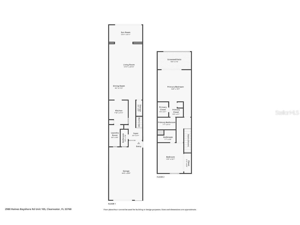
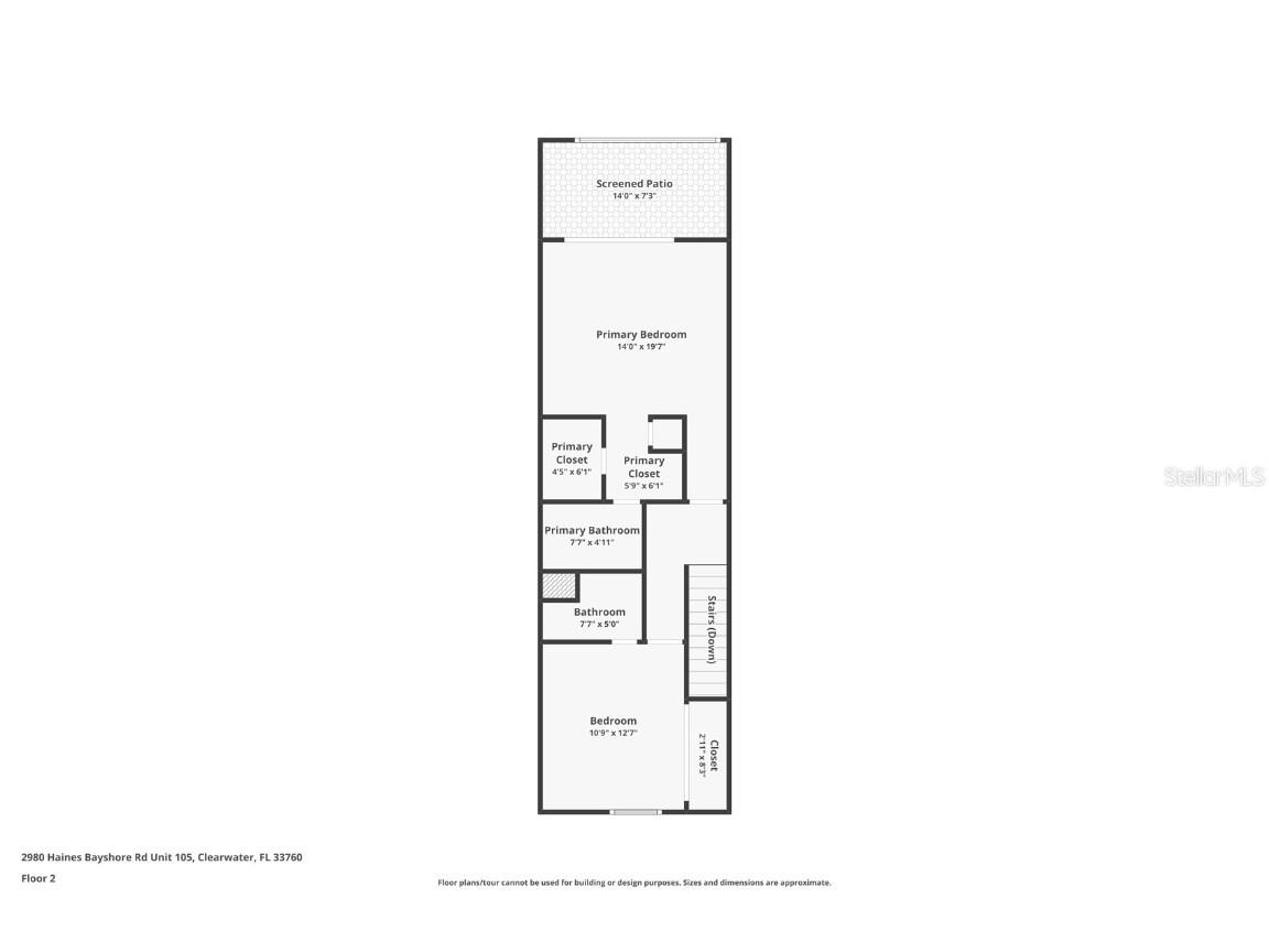
Room Information
Main Floor
Laundry:
Kitchen: 10x8
Living Room: 13x14
Upper Floor
Bathroom 2:
Bedroom 2:
Primary Bathroom:
Primary Bedroom: 13x14
Bathrooms
Full Baths: 2
1/2 Baths: 1
Additonal Room Information
Laundry: Laundry Room
Interior Features
Appliances: Electric Water Heater, Microwave, Range, Refrigerator, Dishwasher, Dryer, Washer
Flooring: Carpet,Tile
Additional Interior Features: Ceiling Fan(s), Upper Level Primary, Living/Dining Room
Utilities
Water: Public
Sewer: Public Sewer
Other Utilities: Cable Available,Electricity Connected,Sewer Connected,Water Connected
Cooling: Ceiling Fan(s), Central Air
Heating: Electric
Exterior / Lot Features
Roof: Membrane
Pool: Community, In Ground
Lot View: Bay,Water
Additional Exterior/Lot Features: Tennis Court(s), Enclosed, Landscaped, Buyer Approval Required
Waterfront Details
Standard Water Body: OLD TAMPA BAY
Water Front Features: Bay Access
Community Features
Community Features: Fishing, Clubhouse, Community Mailbox, Pool, Tennis Court(s), Sidewalks
HOA Dues Include: Water, Trash, Sewer, Maintenance Grounds, Maintenance Structure, Pool(s)
Driving Directions
From US 19 N. and Rosevelt, Take Frontage Road North, make a right on Haines Bayshore Rd.heading east to 2nd entrance of Caribay on your left follow to unit #105 (on your right)
Financial Considerations
Terms: Cash,Conventional
Tax/Property ID: 29-29-16-13455-002-1050
Tax Amount: 641
Tax Year: 2024
A broker reciprocity listing courtesy: COASTAL PROPERTIES GROUP INTERNATIONAL
Based on information provided by Stellar MLS as distributed by the MLS GRID. Information from the Internet Data Exchange is provided exclusively for consumers’ personal, non-commercial use, and such information may not be used for any purpose other than to identify prospective properties consumers may be interested in purchasing. This data is deemed reliable but is not guaranteed to be accurate by Edina Realty, Inc., or by the MLS. Edina Realty, Inc., is not a multiple listing service (MLS), nor does it offer MLS access.
Copyright 2025 Stellar MLS as distributed by the MLS GRID. All Rights Reserved.
Payment Calculator
Interest rate and annual percentage rate (APR) are based on current market conditions, are for informational purposes only, are subject to change without notice and may be subject to pricing add-ons related to property type, loan amount, loan-to-value, credit score and other variables. Estimated closing costs used in the APR calculation are assumed to be paid by the borrower at closing. If the closing costs are financed, the loan, APR and payment amounts will be higher. If the down payment is less than 20%, mortgage insurance may be required and could increase the monthly payment and APR. Contact us for details. Additional loan programs may be available. Accuracy is not guaranteed, and all products may not be available in all borrower's geographical areas and are based on their individual situation. This is not a credit decision or a commitment to lend.
Sales History & Tax Summary for 2980 Haines Bayshore Road #105
Sales History
| Date | Price | Change |
|---|---|---|
| Currently not available. | ||
Tax Summary
| Tax Year | Estimated Market Value | Total Tax |
|---|---|---|
| Currently not available. | ||
Data powered by ATTOM Data Solutions. Copyright© 2025. Information deemed reliable but not guaranteed.
Schools
Schools nearby 2980 Haines Bayshore Road #105
| Schools in attendance boundaries | Grades | Distance | Rating |
|---|---|---|---|
| Loading... | |||
| Schools nearby | Grades | Distance | Rating |
|---|---|---|---|
| Loading... | |||
Data powered by ATTOM Data Solutions. Copyright© 2025. Information deemed reliable but not guaranteed.
The schools shown represent both the assigned schools and schools by distance based on local school and district attendance boundaries. Attendance boundaries change based on various factors and proximity does not guarantee enrollment eligibility. Please consult your real estate agent and/or the school district to confirm the schools this property is zoned to attend. Information is deemed reliable but not guaranteed.
SchoolDigger ® Rating
The SchoolDigger rating system is a 1-5 scale with 5 as the highest rating. SchoolDigger ranks schools based on test scores supplied by each state's Department of Education. They calculate an average standard score by normalizing and averaging each school's test scores across all tests and grades.
Coming soon properties will soon be on the market, but are not yet available for showings.