$337,000
29929 Southwell Lane Wesley Chapel, FL 33543
For Sale MLS# TB8407581
2 beds 3 baths 1,571 sq ft Townhouse/Twinhome
Details for 29929 Southwell Lane
MLS# TB8407581
Description for 29929 Southwell Lane, Wesley Chapel, FL, 33543
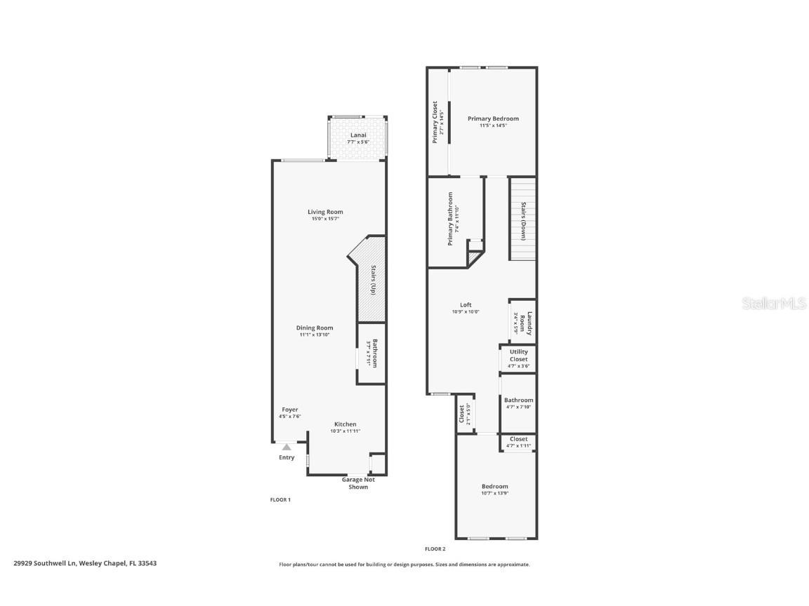
Welcome to Windermere Estates Townhomes—where comfort meets modern elegance in the heart of Wesley Chapel. This beautifully designed Andover II model offers the perfect blend of style and functionality, featuring 2 bedrooms, 2.5 baths, and a versatile loft that can easily convert into a 3rd bedroom or private office. Step inside to a welcoming foyer that flows into an upgraded kitchen, complete with stainless steel appliances—including a newer dishwasher and microwave—quartz countertops, and oversized cabinetry ideal for home-cooked meals. A convenient breakfast bar opens into a spacious dining area, perfect for entertaining, with a nearby powder room for guests. The open-concept living room is expansive and bright, highlighted by premium vinyl plank flooring and sliding glass doors that lead to a peaceful backyard patio—your own private oasis for morning coffee or evening relaxation. The attached one-car garage offers interior access, so you can stay dry while unloading groceries on a rainy day. Upstairs, you’ll find a large bonus loft offering endless possibilities—use it as a reading nook, workspace, or convert it into a 3rd bedroom. The centrally located laundry closet adds convenience, while the hallway leads to a well-appointed full bath with granite countertops, white subway tile, and matte black finishes. A generous secondary bedroom is ideal for guests or children. At the end of the hall, the private owner’s suite boasts two walk-in closets and a spa-like ensuite bathroom with an oversized walk-in shower, dual vanities, a private water closet, and a separate linen closet. Community & Location Highlights: Windermere Estates is a tranquil, well-maintained community located minutes from everything that makes Wesley Chapel one of Florida’s most sought-after destinations.Enjoy: The crystal-clear Epperson Lagoon (swimming, kayaking, paddleboarding). The Shops at Wiregrass and KRATE at The Grove for dining, shopping, and entertainment. Florida Hospital Center Ice, parks, trails, and nature preserves. Top-rated schools and easy access to I-75 & SR-56 for commuting- Whether you’re looking to relax or stay active, this location offers it all. Don’t miss the opportunity to make this beautiful townhome your own. Check out the 3D Interactive Virtual Tour and schedule your private showing today!
Listing Information
Property Type: Residential, Townhouse
Status: Active
Bedrooms: 2
Bathrooms: 3
Lot Size: 0.04 Acres
Square Feet: 1,571 sq ft
Year Built: 2021
Garage: Yes
Stories: 2 Story
Construction: Stucco
Subdivision: Windermere Estates
Builder: M/I Homes
Foundation: Block
County: Pasco
School Information
Elementary: Wiregrass Elementary
Middle: John Long Middle-Po
High: Wiregrass Ranch High-Po
Room Information
Main Floor
Kitchen: 11.11x10.3
Foyer: 7.6x4.5
Living Room: 15.7x15
Bathroom 1: 7.11x3.7
Dining Room: 13.1x11.1
Upper Floor
Bedroom 1: 13.9x10.7
Utility Room: 3.6x4.7
Laundry: 5.9x3.4
Loft: 10x10.9
Primary Bathroom: 11.1x7.4
Primary Bedroom: 14.5x11.5
Bathrooms
Full Baths: 2
1/2 Baths: 1
Additonal Room Information
Laundry: Laundry Closet, Upper Level
Interior Features
Appliances: Electric Water Heater, Water Softener, Dishwasher, Disposal, Microwave, Range, Refrigerator
Flooring: Ceramic Tile,Luxury Vinyl
Additional Interior Features: Ceiling Fan(s), Upper Level Primary, High Ceilings
Utilities
Water: Public
Sewer: Public Sewer
Other Utilities: Cable Available,Electricity Available,Water Available,Water Connected
Cooling: Ceiling Fan(s), Central Air
Heating: Electric
Exterior / Lot Features
Attached Garage: Attached Garage
Garage Spaces: 1
Roof: Shingle
Pool: Community
Additional Exterior/Lot Features: Screened, Patio
Community Features
Community Features: Sidewalks, Lake, Pool, Clubhouse, Gated, Park, Community Mailbox
Security Features: Gated Community
HOA Dues Include: Pest Control, Maintenance Structure, Pool(s), Sewer, Trash, Water
Homeowners Association: Yes
HOA Dues: $289 / Monthly
Driving Directions
Head north toward Highland Oaks Blvd,Turn right onto Highland Oaks Blvd,Turn right onto FL-54 E,Continue onto FL-56 E,Turn right onto Hueland pond Blvd,Turn left onto Lancaster Crest Ct, Turn right onto Southwell Ln
Financial Considerations
Terms: Cash,Conventional,FHA,VA Loan
Tax/Property ID: 20-26-29-0050-00000-1220
Tax Amount: 4889
Tax Year: 2024
A broker reciprocity listing courtesy: 54 REALTY LLC
Based on information provided by Stellar MLS as distributed by the MLS GRID. Information from the Internet Data Exchange is provided exclusively for consumers’ personal, non-commercial use, and such information may not be used for any purpose other than to identify prospective properties consumers may be interested in purchasing. This data is deemed reliable but is not guaranteed to be accurate by Edina Realty, Inc., or by the MLS. Edina Realty, Inc., is not a multiple listing service (MLS), nor does it offer MLS access.
Copyright 2025 Stellar MLS as distributed by the MLS GRID. All Rights Reserved.
Payment Calculator
Interest rate and annual percentage rate (APR) are based on current market conditions, are for informational purposes only, are subject to change without notice and may be subject to pricing add-ons related to property type, loan amount, loan-to-value, credit score and other variables. Estimated closing costs used in the APR calculation are assumed to be paid by the borrower at closing. If the closing costs are financed, the loan, APR and payment amounts will be higher. If the down payment is less than 20%, mortgage insurance may be required and could increase the monthly payment and APR. Contact us for details. Additional loan programs may be available. Accuracy is not guaranteed, and all products may not be available in all borrower's geographical areas and are based on their individual situation. This is not a credit decision or a commitment to lend.
Sales History & Tax Summary for 29929 Southwell Lane
Sales History
| Date | Price | Change |
|---|---|---|
| Currently not available. | ||
Tax Summary
| Tax Year | Estimated Market Value | Total Tax |
|---|---|---|
| Currently not available. | ||
Data powered by ATTOM Data Solutions. Copyright© 2025. Information deemed reliable but not guaranteed.
Schools
Schools nearby 29929 Southwell Lane
| Schools in attendance boundaries | Grades | Distance | Rating |
|---|---|---|---|
| Loading... | |||
| Schools nearby | Grades | Distance | Rating |
|---|---|---|---|
| Loading... | |||
Data powered by ATTOM Data Solutions. Copyright© 2025. Information deemed reliable but not guaranteed.
The schools shown represent both the assigned schools and schools by distance based on local school and district attendance boundaries. Attendance boundaries change based on various factors and proximity does not guarantee enrollment eligibility. Please consult your real estate agent and/or the school district to confirm the schools this property is zoned to attend. Information is deemed reliable but not guaranteed.
SchoolDigger ® Rating
The SchoolDigger rating system is a 1-5 scale with 5 as the highest rating. SchoolDigger ranks schools based on test scores supplied by each state's Department of Education. They calculate an average standard score by normalizing and averaging each school's test scores across all tests and grades.
Coming soon properties will soon be on the market, but are not yet available for showings.