30 Westminster Drive Palm Coast, FL 32164
For Sale MLS# V4945354
4 beds 2 baths 2,044 sq ft Single Family
Details for 30 Westminster Drive
MLS# V4945354
Description for 30 Westminster Drive, Palm Coast, FL, 32164
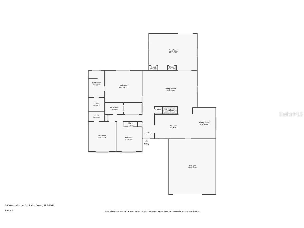
5,000 BUYER CREDIT for interest rate buy-down or closing costs! This move-in-ready Palm Coast home is steps from the Pine Lakes Golf Course, has over 2,000sf of living area and the most functional floor plan on the market! Check out the 2D floor plan - the back room can be used as a HUGE 4th bedroom, playroom, game room, office, or even just a second living room. As you walk in the front door you'll find an indoor/outdoor space that could be a super unique greenhouse/plant room! Primary suite is large and has an updated full bathroom with custom walk-in tile shower and walk-in closet. Two of the guest bedrooms are down the hall, one of which offers a large walk-in closet. Partially updated FULL second guest bathroom is down the hall. Main living room is located in the center of the home and has a gorgeous brick fireplace and hearth, vaulted ceilings, and wood beams. Off the kitchen is a separate but open dining room. The kitchen has TONS of cabinetry and counterspace, granite countertops, newer stainless-steel appliances, roll out lower cabinet drawers, and a breakfast bar that seats 3-4. Food pantry is built-in and located between the kitchen and dining rooms. Custom lighting throughout combined with tons of natural light. This almost quarter-acre lot is larger than you usually find in Palm Coast and is fully fenced with white vinyl fencing. Newer shed in the back yard. Whole home gutter system. Roof 2021, HVAC 2021, water heater 2025. Washer and dryer will convey. No flood zone. The W section is a well-established area located near the Pine Lakes golf course and is just a short walk to the walking trail. All information and room sizes in this listing are intended to be accurate but cannot be guaranteed. Buyers and agents are always encouraged to perform due diligence. Some interior photos have had had furnishings virtually removed.
Listing Information
Property Type: Residential, Single Family Residence
Status: Active
Bedrooms: 4
Bathrooms: 2
Lot Size: 0.23 Acres
Square Feet: 2,044 sq ft
Year Built: 1981
Garage: Yes
Stories: 1 Story
Construction: Vinyl Siding,Wood Frame
Construction Display: New Construction
Subdivision: Deerwood Rep Blk 20 Pine Lakes Golf Course
Foundation: Slab
County: Flagler
Construction Status: New Construction
School Information
Elementary: Rymfire Elementary
Middle: Buddy Taylor Middle
High: Flagler-Palm Coast High
Room Information
Main Floor
Bathroom 2: 8x5
Bathroom 1: 11x7
Bedroom 3: 13x12
Bedroom 2: 13x11
Bonus Room: 21x15
Living Room: 24x16
Dining Room: 13x9
Kitchen: 16x10
Primary Bedroom: 16x13
Bathrooms
Full Baths: 2
Additonal Room Information
Laundry: In Garage, Washer Hookup, Electric Dryer Hookup
Interior Features
Appliances: Washer, Microwave, Range, Refrigerator, Dishwasher, Dryer
Flooring: Carpet,Laminate
Doors/Windows: Blinds, Window Treatments
Fireplaces: Living Room, Wood Burning
Additional Interior Features: Ceiling Fan(s), Split Bedrooms, Walk-In Closet(s), Window Treatments, High Ceilings, Open Floorplan, Main Level Primary
Utilities
Water: Public
Sewer: Public Sewer
Other Utilities: Cable Available,Electricity Connected,Sewer Connected,Water Connected
Cooling: Ceiling Fan(s), Central Air
Heating: Central
Exterior / Lot Features
Attached Garage: Attached Garage
Garage Spaces: 2
Parking Description: Garage Door Opener, Garage, driveway
Roof: Shingle
Fencing: Vinyl, fenced
Additional Exterior/Lot Features: Rain Gutters, Storage, Covered, Front Porch
Out Buildings: Shed(s)
Driving Directions
From I-95: take the exit at Palm Coast Pkwy. then head West, turn L on Pine Lakes Pkwy., then L on Westminster Dr., house in on R.
Financial Considerations
Terms: Assumable,Cash,Conventional,FHA,VA Loan
Tax/Property ID: 07-11-31-7022-00230-0060
Tax Amount: 351.79
Tax Year: 2024
A broker reciprocity listing courtesy: ADAMS, CAMERON & CO., REALTORS
Based on information provided by Stellar MLS as distributed by the MLS GRID. Information from the Internet Data Exchange is provided exclusively for consumers’ personal, non-commercial use, and such information may not be used for any purpose other than to identify prospective properties consumers may be interested in purchasing. This data is deemed reliable but is not guaranteed to be accurate by Edina Realty, Inc., or by the MLS. Edina Realty, Inc., is not a multiple listing service (MLS), nor does it offer MLS access.
Copyright 2026 Stellar MLS as distributed by the MLS GRID. All Rights Reserved.
Payment Calculator
Interest rate and annual percentage rate (APR) are based on current market conditions, are for informational purposes only, are subject to change without notice and may be subject to pricing add-ons related to property type, loan amount, loan-to-value, credit score and other variables. Estimated closing costs used in the APR calculation are assumed to be paid by the borrower at closing. If the closing costs are financed, the loan, APR and payment amounts will be higher. If the down payment is less than 20%, mortgage insurance may be required and could increase the monthly payment and APR. Contact us for details. Additional loan programs may be available. Accuracy is not guaranteed, and all products may not be available in all borrower's geographical areas and are based on their individual situation. This is not a credit decision or a commitment to lend.
Sales History & Tax Summary for 30 Westminster Drive
Sales History
| Date | Price | |
|---|---|---|
| Currently not available. | ||
Tax Summary
| Tax Year | Estimated Market Value | Total Tax |
|---|---|---|
| Currently not available. | ||
Data powered by ATTOM Data Solutions. Copyright© 2026. Information deemed reliable but not guaranteed.
Schools
Schools nearby 30 Westminster Drive
| Schools in attendance boundaries | Grades | Distance | Rating |
|---|---|---|---|
| Loading... | |||
| Schools nearby | Grades | Distance | Rating |
|---|---|---|---|
| Loading... | |||
Data powered by ATTOM Data Solutions. Copyright© 2026. Information deemed reliable but not guaranteed.
The schools shown represent both the assigned schools and schools by distance based on local school and district attendance boundaries. Attendance boundaries change based on various factors and proximity does not guarantee enrollment eligibility. Please consult your real estate agent and/or the school district to confirm the schools this property is zoned to attend. Information is deemed reliable but not guaranteed.
SchoolDigger ® Rating
The SchoolDigger rating system is a 1-5 scale with 5 as the highest rating. SchoolDigger ranks schools based on test scores supplied by each state's Department of Education. They calculate an average standard score by normalizing and averaging each school's test scores across all tests and grades.
Coming soon properties will soon be on the market, but are not yet available for showings.