$825,000
300 Riverside Boulevard Saint Augustine, FL 32080
For Sale MLS# FC313258
3 beds 3 baths 2,220 sq ft Single Family
Details for 300 Riverside Boulevard
MLS# FC313258
Description for 300 Riverside Boulevard, Saint Augustine, FL, 32080
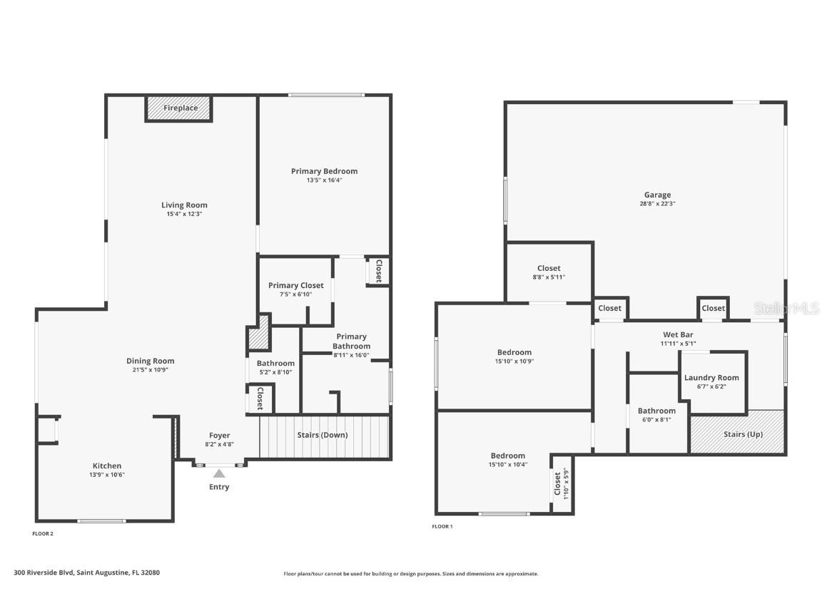
Welcome to 300 Riverside Blvd, your slice of paradise perfectly situated between the Atlantic Ocean and the Intracoastal Waterway. The property spans over 2 acres, with a portion of it being natural wetlands—offering stunning, protected views that will never go away. Enjoy the rare combination of breathtaking water views and easy beach access right at your doorstep. Inside, you’ll find a bright and open living room with soaring ceilings and abundant natural light. The kitchen features quartz countertops and luxury vinyl plank flooring throughout, offering both style and durability. The primary suite is located upstairs with a large walk-in closet and spacious en-suite bath, while the downstairs includes a wet bar, two bedrooms, and a full bath—perfect for guests, extended family, or multigenerational living. Built with ICF (Insulated Concrete Form) construction, this home provides top-tier durability, energy efficiency, and peace of mind, and has never experienced any flooding. With no rental restrictions, it offers exceptional flexibility to use as your primary residence, vacation home, or high-performing Airbnb investment. All information pertaining to the property is deemed reliable, but not guaranteed. Information to be verified by the Buyer. Be advised that cameras may exist recording audio and video inside/outside the property, such as ring doorbells. Photos are digitally enhanced and could be altered, please verify. Virtually staged photos are included.
Listing Information
Property Type: Residential, Single Family Residence
Status: Active
Bedrooms: 3
Bathrooms: 3
Lot Size: 2.60 Acres
Square Feet: 2,220 sq ft
Year Built: 1997
Garage: Yes
Stories: 2 Story
Construction: Cement Siding,Stucco
Subdivision: N/A
Foundation: Slab
County: St Johns
Room Information
Upper Floor
Primary Bedroom:
Kitchen:
Living Room:
Bathrooms
Full Baths: 2
1/2 Baths: 1
Additonal Room Information
Laundry: Inside, Laundry Chute, Laundry Room, Washer Hookup, Electric Dryer Hookup
Interior Features
Appliances: Dishwasher, Dryer, Microwave, Range, Refrigerator, Washer
Flooring: Luxury Vinyl,Tile
Doors/Windows: Rods, Drapes, Shutters
Fireplaces: Living Room
Additional Interior Features: Split Bedrooms, Wet Bar, Ceiling Fan(s), Walk-In Closet(s), Built-in Features, High Ceilings, Upper Level Primary, Open Floorplan
Utilities
Water: Public
Sewer: Septic Tank
Other Utilities: Cable Available,Electricity Connected,Sewer Connected,Water Connected
Cooling: Ceiling Fan(s), Central Air
Heating: Central
Exterior / Lot Features
Attached Garage: Attached Garage
Garage Spaces: 2
Parking Description: driveway
Roof: Shingle
Additional Exterior/Lot Features: Other, Deck, Rear Porch, Front Porch
Driving Directions
From A1A turn onto Riverside Blvd, home is the last one on the right side of the street.
Financial Considerations
Terms: Cash,Conventional,FHA,VA Loan
Tax/Property ID: 182847-0044
Tax Amount: 7298
Tax Year: 2024
A broker reciprocity listing courtesy: DJ & LINDSEY REAL ESTATE
Based on information provided by Stellar MLS as distributed by the MLS GRID. Information from the Internet Data Exchange is provided exclusively for consumers’ personal, non-commercial use, and such information may not be used for any purpose other than to identify prospective properties consumers may be interested in purchasing. This data is deemed reliable but is not guaranteed to be accurate by Edina Realty, Inc., or by the MLS. Edina Realty, Inc., is not a multiple listing service (MLS), nor does it offer MLS access.
Copyright 2025 Stellar MLS as distributed by the MLS GRID. All Rights Reserved.
Payment Calculator
Interest rate and annual percentage rate (APR) are based on current market conditions, are for informational purposes only, are subject to change without notice and may be subject to pricing add-ons related to property type, loan amount, loan-to-value, credit score and other variables. Estimated closing costs used in the APR calculation are assumed to be paid by the borrower at closing. If the closing costs are financed, the loan, APR and payment amounts will be higher. If the down payment is less than 20%, mortgage insurance may be required and could increase the monthly payment and APR. Contact us for details. Additional loan programs may be available. Accuracy is not guaranteed, and all products may not be available in all borrower's geographical areas and are based on their individual situation. This is not a credit decision or a commitment to lend.
Sales History & Tax Summary for 300 Riverside Boulevard
Sales History
| Date | Price | Change |
|---|---|---|
| Currently not available. | ||
Tax Summary
| Tax Year | Estimated Market Value | Total Tax |
|---|---|---|
| Currently not available. | ||
Data powered by ATTOM Data Solutions. Copyright© 2025. Information deemed reliable but not guaranteed.
Schools
Schools nearby 300 Riverside Boulevard
| Schools in attendance boundaries | Grades | Distance | Rating |
|---|---|---|---|
| Loading... | |||
| Schools nearby | Grades | Distance | Rating |
|---|---|---|---|
| Loading... | |||
Data powered by ATTOM Data Solutions. Copyright© 2025. Information deemed reliable but not guaranteed.
The schools shown represent both the assigned schools and schools by distance based on local school and district attendance boundaries. Attendance boundaries change based on various factors and proximity does not guarantee enrollment eligibility. Please consult your real estate agent and/or the school district to confirm the schools this property is zoned to attend. Information is deemed reliable but not guaranteed.
SchoolDigger ® Rating
The SchoolDigger rating system is a 1-5 scale with 5 as the highest rating. SchoolDigger ranks schools based on test scores supplied by each state's Department of Education. They calculate an average standard score by normalizing and averaging each school's test scores across all tests and grades.
Coming soon properties will soon be on the market, but are not yet available for showings.