3001 Juniper Lane #H Woodbury, MN 55125
For Sale MLS# 7014601
2 beds 2 baths 1,600 sq ft Townhouse/Twinhome
Details for 3001 Juniper Lane #H
MLS# 7014601
Description for 3001 Juniper Lane #H, Woodbury, MN, 55125
Welcome home to this beautifully maintained 2-bedroom, 2-bath townhome with a versatile loft, perfectly located in sought-after Woodbury, MN—just minutes from shopping, dining, parks, and easy metro access.The open-concept main level features a bright living room with a cozy gas fireplace, ideal for relaxing evenings or entertaining guests. The kitchen flows seamlessly into the dining area, creating a functional and inviting space.Upstairs, you’ll find two spacious bedrooms, including a primary suite with a walk-in closet and convenient access to the full bath. A separate upstairs laundry room adds everyday ease, while the loft area offers flexible space for a home office, workout area, or reading nook.Well-located, low-maintenance living in a thriving community—this Woodbury condo checks all the boxes for comfort, convenience, and value. Don’t miss this opportunity to own in one of the east metro’s most desirable areas. Welcome Home!
Listing Information
Property Type: Residential, Side by Side
Status: Active
Bedrooms: 2
Bathrooms: 2
Lot Size: 1.40 Acres
Square Feet: 1,600 sq ft
Year Built: 1999
Foundation: 997 sq ft
Garage: Yes
Stories: 2 Stories
Property Attached: Yes
Subdivision: Cic 120
County: Washington
Days On Market: 57
Construction Status: Previously Owned
School Information
District: 833 - South Washington County
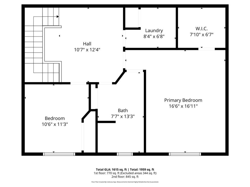
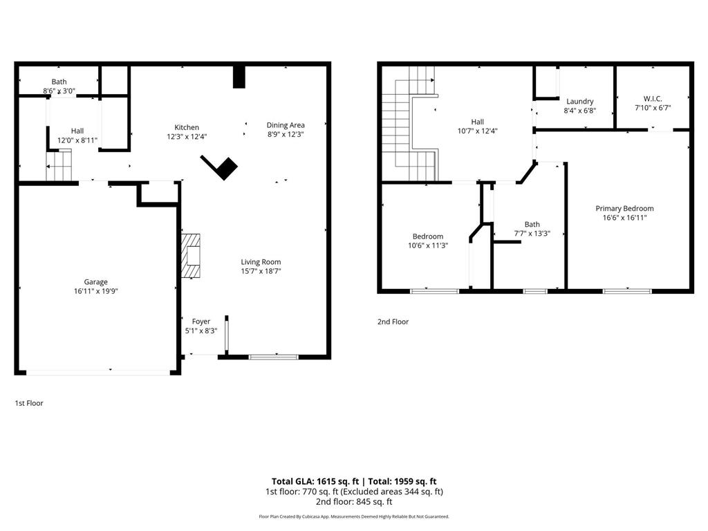
Room Information
Main Floor
Dining Room: 15x9
Kitchen: 12x11
Living Room: 15x14
Upper Floor
Bedroom 1: 17x12
Bedroom 2: 12x11
Laundry: 4x8
Loft: 9x9
Bathrooms
Full Baths: 1
1/2 Baths: 1
Additonal Room Information
Dining: Kitchen/Dining Room
Laundry: Upper Level
Bath Description: Main Floor 1/2 Bath,Upper Level Full Bath
Interior Features
Square Footage above: 1,600 sq ft
Appliances: Washer, Range, Refrigerator, Dishwasher, Dryer, Microwave
Fireplaces: 1, Gas Burning
Utilities
Water: City Water/Connected
Sewer: City Sewer/Connected
Cooling: Central
Heating: Forced Air, Natural Gas
Exterior / Lot Features
Attached Garage: Attached Garage
Garage Spaces: 2
Parking Description: Tuckunder Garage, Finished Garage, Garage Door Opener, Attached Garage, Garage Sq Ft - 360.0
Exterior: Vinyl
Roof: Asphalt Shingles, Pitched
Lot Dimensions: 180x408x319
Zoning: Residential-Multi-Family
Additional Exterior/Lot Features: No Exterior Stairs,Street-Level, Tree Coverage - Medium, Road Frontage - City
Community Features
HOA Dues Include: Hazard Insurance, Lawn Care, Sanitation, Snow Removal, Outside Maintenance, Professional Mgmt
Pets Allowed: Yes
Homeowners Association: Yes
Association Name: Cities Management
HOA Dues: $440 / Monthly
Driving Directions
Lake Rd to Torry Dr, South to Juniper, East to 3001 #H
Financial Considerations
Covenants/Deed Restrictions: Pets - Number Limit, Pets - Weight/Height Limit, Pets - Dogs Allowed, Pets - Cats Allowed
Tax/Property ID: 2102821120116
Tax Amount: 2908
Tax Year: 2025
HomeStead Description: Homesteaded
A broker reciprocity listing courtesy: RE/MAX RESULTS
The data relating to real estate for sale on this web site comes in part from the Broker Reciprocity℠ Program of the Regional Multiple Listing Service of Minnesota, Inc. Real estate listings held by brokerage firms other than Edina Realty, Inc. are marked with the Broker Reciprocity℠ logo or the Broker Reciprocity℠ thumbnail and detailed information about them includes the name of the listing brokers. Edina Realty, Inc. is not a Multiple Listing Service (MLS), nor does it offer MLS access. This website is a service of Edina Realty, Inc., a broker Participant of the Regional Multiple Listing Service of Minnesota, Inc. IDX information is provided exclusively for consumers personal, non-commercial use and may not be used for any purpose other than to identify prospective properties consumers may be interested in purchasing. Open House information is subject to change without notice. Information deemed reliable but not guaranteed.
Copyright 2026 Regional Multiple Listing Service of Minnesota, Inc. All Rights Reserved.
Payment Calculator
Interest rate and annual percentage rate (APR) are based on current market conditions, are for informational purposes only, are subject to change without notice and may be subject to pricing add-ons related to property type, loan amount, loan-to-value, credit score and other variables. Estimated closing costs used in the APR calculation are assumed to be paid by the borrower at closing. If the closing costs are financed, the loan, APR and payment amounts will be higher. If the down payment is less than 20%, mortgage insurance may be required and could increase the monthly payment and APR. Contact us for details. Additional loan programs may be available. Accuracy is not guaranteed, and all products may not be available in all borrower's geographical areas and are based on their individual situation. This is not a credit decision or a commitment to lend.
Sales History & Tax Summary for 3001 Juniper Lane #H
Sales History
| Date | Price | |
|---|---|---|
| Currently not available. | ||
Tax Summary
| Tax Year | Estimated Market Value | Total Tax |
|---|---|---|
| Currently not available. | ||
Data powered by ATTOM Data Solutions. Copyright© 2026. Information deemed reliable but not guaranteed.
Schools
Schools nearby 3001 Juniper Lane #H
| Schools in attendance boundaries | Grades | Distance | Rating |
|---|---|---|---|
| Loading... | |||
| Schools nearby | Grades | Distance | Rating |
|---|---|---|---|
| Loading... | |||
Data powered by ATTOM Data Solutions. Copyright© 2026. Information deemed reliable but not guaranteed.
The schools shown represent both the assigned schools and schools by distance based on local school and district attendance boundaries. Attendance boundaries change based on various factors and proximity does not guarantee enrollment eligibility. Please consult your real estate agent and/or the school district to confirm the schools this property is zoned to attend. Information is deemed reliable but not guaranteed.
SchoolDigger ® Rating
The SchoolDigger rating system is a 1-5 scale with 5 as the highest rating. SchoolDigger ranks schools based on test scores supplied by each state's Department of Education. They calculate an average standard score by normalizing and averaging each school's test scores across all tests and grades.
Coming soon properties will soon be on the market, but are not yet available for showings.