3008 Pinnacle Court Clermont, FL 34711
Pending MLS# O6375485
2 beds 2 baths 1,543 sq ft Single Family
Details for 3008 Pinnacle Court
MLS# O6375485
Description for 3008 Pinnacle Court, Clermont, FL, 34711
Under contract-accepting backup offers. Located on one of the best golf course lots in the highly sought-after Summit Greens community, this beautifully maintained single-story home offers expansive open views of the Clermont National Golf Course. Featuring 2 bedrooms, 2 full bathrooms, and a spacious office/den with French doors, the home boasts soaring vaulted ceilings, wood-look laminate flooring throughout the main living areas, and an open, light-filled layout ideal for everyday living and entertaining. The kitchen is well appointed with granite countertops, solid wood cabinetry, stainless steel appliances, a closet pantry, and a breakfast nook overlooking the course. Large triple sliding glass doors open to an oversized screened and covered lanai, creating seamless indoor-outdoor living with tranquil golf course and greenbelt views. A brand-new roof (2025), new washer and dryer, and attached two-car garage complete the home. Summit Greens offers guard-gated security and resort-style amenities including indoor and outdoor pools, fitness and wellness center, pro tennis courts, pickleball courts, clubhouse, and access to championship golf. Conveniently located near shopping, dining, medical facilities, and major roadways, this home offers the best of Central Florida living.
Listing Information
Property Type: Residential, Single Family Residence
Status: Pending
Bedrooms: 2
Bathrooms: 2
Lot Size: 0.15 Acres
Square Feet: 1,543 sq ft
Year Built: 2003
Garage: Yes
Stories: 1 Story
Construction: Block,Stucco
Subdivision: Summit Greens
Foundation: Slab
County: Lake
School Information
Elementary: Grassy Lake Elementary
Middle: East Ridge Middle
High: Lake Minneola High
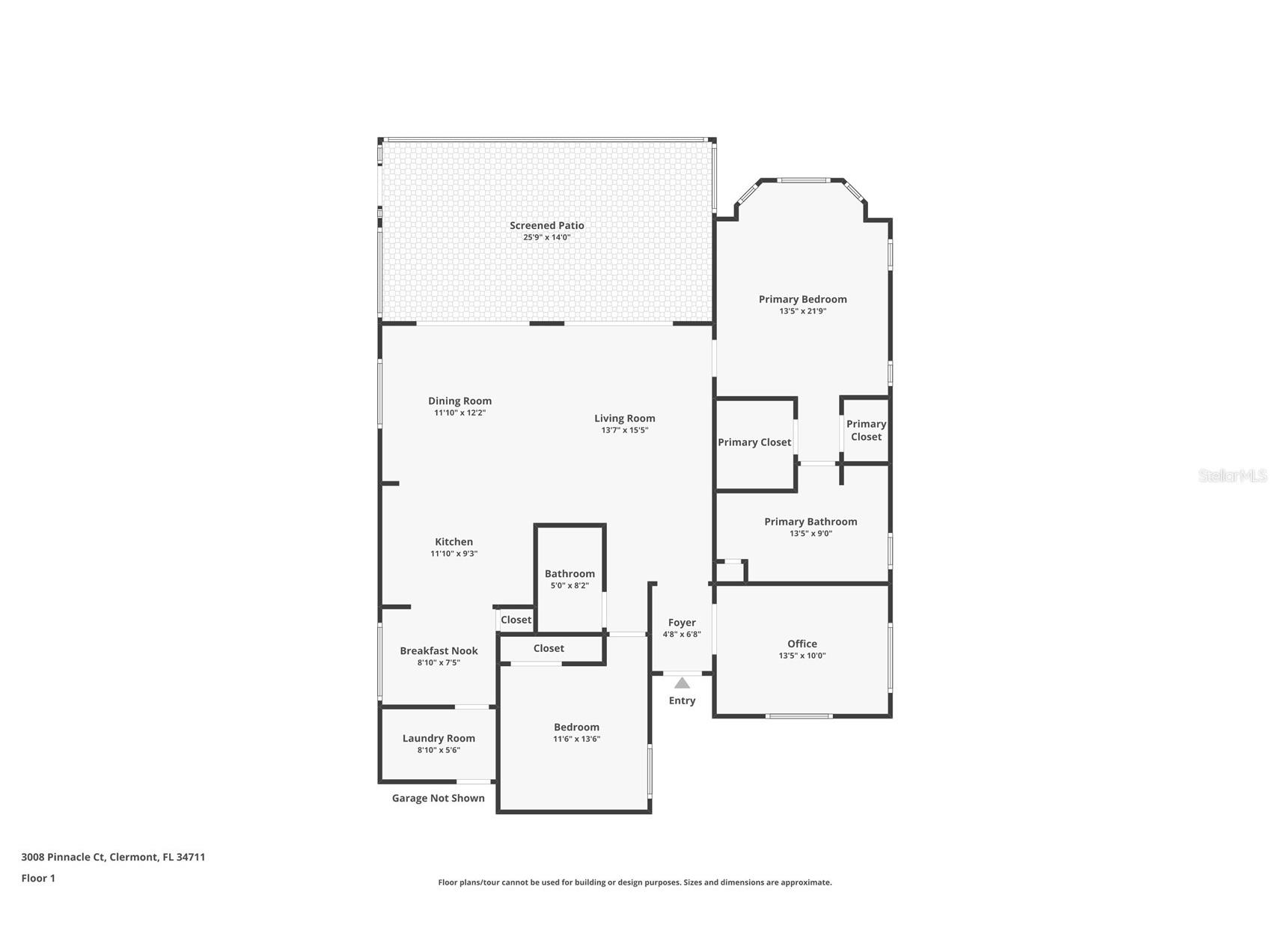
Room Information
Main Floor
Kitchen: 10x11
Dining Room: 12x11
Porch: 14x25
Living Room: 20x14
Bathroom 2: 8x5
Bedroom 2: 14x11
Office: 10x14
Primary Bathroom: 10x14
Primary Bedroom: 16x14
Bathrooms
Full Baths: 2
Additonal Room Information
Laundry: Inside, Laundry Room
Interior Features
Appliances: Exhaust Fan, Range, Refrigerator, Microwave, Dishwasher, Disposal, Dryer, Gas Water Heater, Washer
Flooring: Ceramic Tile,Laminate
Doors/Windows: Window Treatments
Accessibility: Accessible Full Bath
Additional Interior Features: Built-in Features, Window Treatments, Split Bedrooms, Walk-In Closet(s), Vaulted Ceiling(s), Stone Counters, Wood Cabinets, High Ceilings
Utilities
Water: Public
Sewer: Public Sewer
Other Utilities: Cable Available,Electricity Connected,High Speed Internet Available,Sewer Connected,Water Connected
Cooling: Central Air
Heating: Central
Exterior / Lot Features
Attached Garage: Attached Garage
Garage Spaces: 2
Parking Description: Garage Door Opener, Garage
Roof: Shingle
Pool: Community
Lot View: Golf Course,Tennis Court
Additional Exterior/Lot Features: Sprinkler/Irrigation, Rain Gutters, Rear Porch, Front Porch, Covered, Screened, Flat, Level, On Golf Course, Landscaped, Cul-de-Sac, Private Road, Oversized Lot, Buyer Approval Required
Community Features
Community Features: Fitness, Gated, Clubhouse, Golf, Street Lights, Pool, Tennis Court(s), Sidewalks
Security Features: Fire Hydrant(s), Security Gate, Key Card Entry, Gated Community, Gated with Guard
HOA Dues Include: Maintenance Grounds, Road Maintenance, Pool(s), Security, Cable TV, Recreation Facilities
Homeowners Association: Yes
HOA Dues: $413 / Monthly
Driving Directions
From Highway 50, enter the Summit Greens guard-gated entrance and continue straight to Pinnacle Court. Turn right onto Pinnacle Court and the home will be on the left side of the cul-de-sac.
Financial Considerations
Terms: Cash,Conventional,FHA,VA Loan
Tax/Property ID: 16-22-26-1900-000-05900
Tax Amount: 2019
Tax Year: 2025
A broker reciprocity listing courtesy: PRIMEFIT PROPERTIES LLC
Based on information provided by Stellar MLS as distributed by the MLS GRID. Information from the Internet Data Exchange is provided exclusively for consumers’ personal, non-commercial use, and such information may not be used for any purpose other than to identify prospective properties consumers may be interested in purchasing. This data is deemed reliable but is not guaranteed to be accurate by Edina Realty, Inc., or by the MLS. Edina Realty, Inc., is not a multiple listing service (MLS), nor does it offer MLS access.
Copyright 2026 Stellar MLS as distributed by the MLS GRID. All Rights Reserved.
Sales History & Tax Summary for 3008 Pinnacle Court
Sales History
| Date | Price | |
|---|---|---|
| Currently not available. | ||
Tax Summary
| Tax Year | Estimated Market Value | Total Tax |
|---|---|---|
| Currently not available. | ||
Data powered by ATTOM Data Solutions. Copyright© 2026. Information deemed reliable but not guaranteed.
Schools
Schools nearby 3008 Pinnacle Court
| Schools in attendance boundaries | Grades | Distance | Rating |
|---|---|---|---|
| Loading... | |||
| Schools nearby | Grades | Distance | Rating |
|---|---|---|---|
| Loading... | |||
Data powered by ATTOM Data Solutions. Copyright© 2026. Information deemed reliable but not guaranteed.
The schools shown represent both the assigned schools and schools by distance based on local school and district attendance boundaries. Attendance boundaries change based on various factors and proximity does not guarantee enrollment eligibility. Please consult your real estate agent and/or the school district to confirm the schools this property is zoned to attend. Information is deemed reliable but not guaranteed.
SchoolDigger ® Rating
The SchoolDigger rating system is a 1-5 scale with 5 as the highest rating. SchoolDigger ranks schools based on test scores supplied by each state's Department of Education. They calculate an average standard score by normalizing and averaging each school's test scores across all tests and grades.
Coming soon properties will soon be on the market, but are not yet available for showings.