301 Magnolia Way Lady Lake, FL 32159
For Sale MLS# G5108153
3 beds 2 baths 1,300 sq ft Single Family
Details for 301 Magnolia Way
MLS# G5108153
Description for 301 Magnolia Way, Lady Lake, FL, 32159
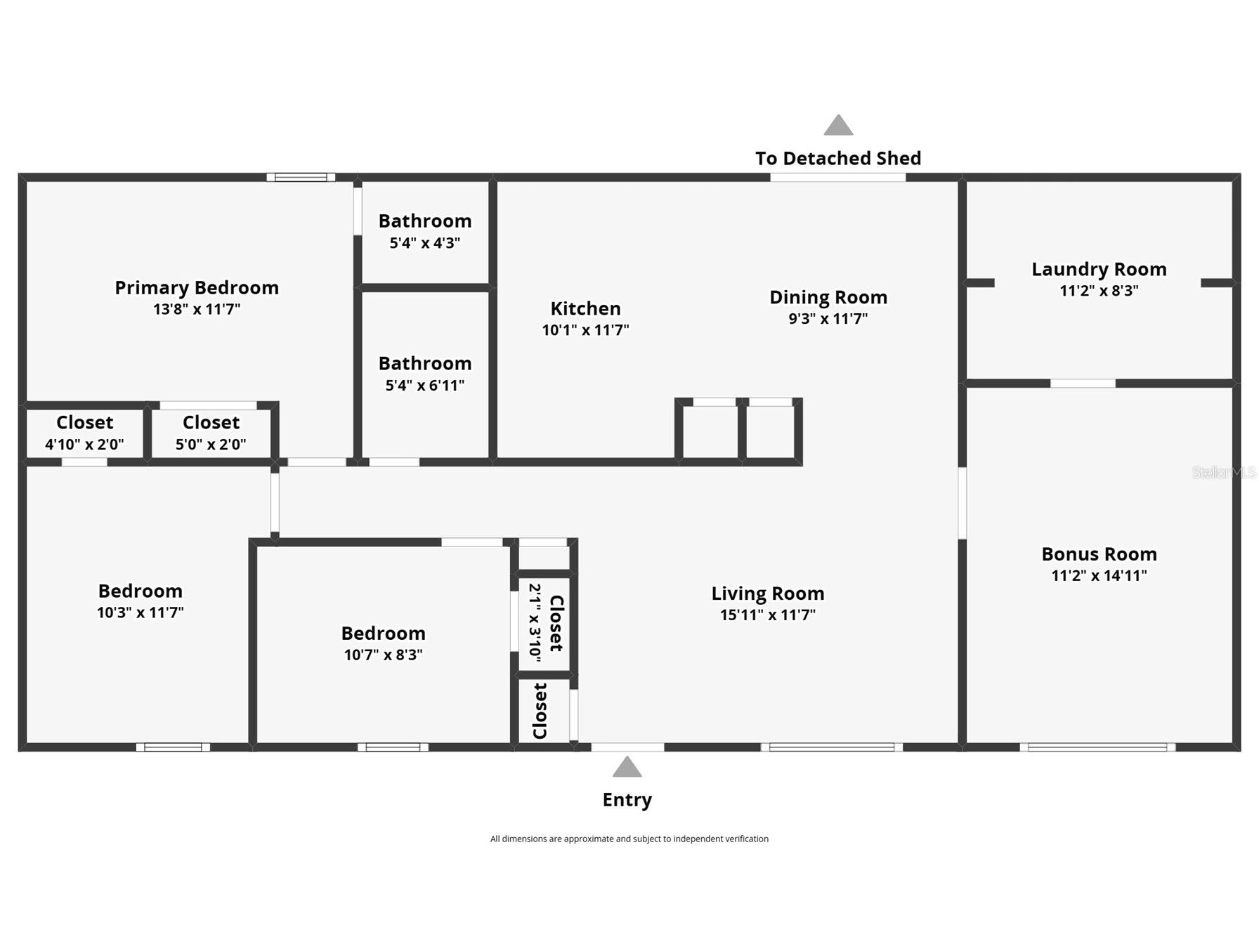
This well-kept 3-bedroom, 1.5-bathroom home in Lady Lake sits on a corner lot with a spacious fenced backyard, ready for your personal touch. Featuring a large bonus room, it's perfect for family activities or gatherings, offering endless possibilities. The entire house has new tile flooring. The kitchen is equipped with stainless steel appliances, a breakfast bar, and a pantry. The laundry room provides extra storage and includes a laundry tub. In the backyard, a sizable shed with electricity serves as storage or a workspace for projects. Conveniently located near Leesburg and all the amenities of the Villages, this home combines comfort and accessibility. This home comes with a 13 month Home Warranty. Roof replaced on the home and shed in 2023, A/C replaced in 2019, front and back doors replaced in 2021.
Listing Information
Property Type: Residential, Single Family Residence
Status: Active
Bedrooms: 3
Bathrooms: 2
Lot Size: 0.28 Acres
Square Feet: 1,300 sq ft
Year Built: 1986
Stories: 1 Story
Construction: Block,Other
Subdivision: Lady Lake April Hills
Foundation: Slab
County: Lake
School Information
Elementary: Villages Elem Of Lady Lake
Middle: Carver Middle
High: Leesburg High
Room Information
Main Floor
Laundry: 8x11
Dining Room: 11x10
Bonus Room: 15x11
Bedroom 3: 9x11
Bedroom 2: 12x10
Primary Bedroom: 12x14
Primary Bathroom: 7x5
Living Room: 12x16
Kitchen: 12x10
Bathrooms
Full Baths: 1
1/2 Baths: 1
Additonal Room Information
Laundry: Inside
Interior Features
Appliances: Electric Water Heater, Range Hood, Range, Refrigerator, Dishwasher
Flooring: Tile
Doors/Windows: Blinds
Additional Interior Features: Ceiling Fan(s), Split Bedrooms, Separate/Formal Living Room
Utilities
Water: Public
Sewer: Septic Tank
Other Utilities: Cable Available,Electricity Connected,Municipal Utilities
Cooling: Ceiling Fan(s), Central Air
Heating: Central
Exterior / Lot Features
Roof: Shingle
Lot View: Trees/Woods
Fencing: fenced, Vinyl
Additional Exterior/Lot Features: Corner Lot, Flat, Level, Landscaped, Near Public Transit, City Lot
Out Buildings: Workshop
Community Features
Community Features: Street Lights
Security Features: Smoke Detector(s)
Driving Directions
From CR 446 and HWY 27, go North on 27 to Lake Ella Rd, turn right onto Lake Ella road and follow to April Hills Blvd, turn right on April Hills Blvd and follow to Magnolia Way, turn left onto Magnolia Way, home is the last one on the right.
Financial Considerations
Terms: Cash,Conventional,FHA,USDA Loan,VA Loan
Tax/Property ID: 28-18-24-005000012900
Tax Amount: 1917.1
Tax Year: 2026
A broker reciprocity listing courtesy: ERA GRIZZARD REAL ESTATE
Based on information provided by Stellar MLS as distributed by the MLS GRID. Information from the Internet Data Exchange is provided exclusively for consumers’ personal, non-commercial use, and such information may not be used for any purpose other than to identify prospective properties consumers may be interested in purchasing. This data is deemed reliable but is not guaranteed to be accurate by Edina Realty, Inc., or by the MLS. Edina Realty, Inc., is not a multiple listing service (MLS), nor does it offer MLS access.
Copyright 2026 Stellar MLS as distributed by the MLS GRID. All Rights Reserved.
Payment Calculator
Interest rate and annual percentage rate (APR) are based on current market conditions, are for informational purposes only, are subject to change without notice and may be subject to pricing add-ons related to property type, loan amount, loan-to-value, credit score and other variables. Estimated closing costs used in the APR calculation are assumed to be paid by the borrower at closing. If the closing costs are financed, the loan, APR and payment amounts will be higher. If the down payment is less than 20%, mortgage insurance may be required and could increase the monthly payment and APR. Contact us for details. Additional loan programs may be available. Accuracy is not guaranteed, and all products may not be available in all borrower's geographical areas and are based on their individual situation. This is not a credit decision or a commitment to lend.
Sales History & Tax Summary for 301 Magnolia Way
Sales History
| Date | Price | |
|---|---|---|
| Currently not available. | ||
Tax Summary
| Tax Year | Estimated Market Value | Total Tax |
|---|---|---|
| Currently not available. | ||
Data powered by ATTOM Data Solutions. Copyright© 2026. Information deemed reliable but not guaranteed.
Schools
Schools nearby 301 Magnolia Way
| Schools in attendance boundaries | Grades | Distance | Rating |
|---|---|---|---|
| Loading... | |||
| Schools nearby | Grades | Distance | Rating |
|---|---|---|---|
| Loading... | |||
Data powered by ATTOM Data Solutions. Copyright© 2026. Information deemed reliable but not guaranteed.
The schools shown represent both the assigned schools and schools by distance based on local school and district attendance boundaries. Attendance boundaries change based on various factors and proximity does not guarantee enrollment eligibility. Please consult your real estate agent and/or the school district to confirm the schools this property is zoned to attend. Information is deemed reliable but not guaranteed.
SchoolDigger ® Rating
The SchoolDigger rating system is a 1-5 scale with 5 as the highest rating. SchoolDigger ranks schools based on test scores supplied by each state's Department of Education. They calculate an average standard score by normalizing and averaging each school's test scores across all tests and grades.
Coming soon properties will soon be on the market, but are not yet available for showings.