301 Martha Blue River, WI 53518
For Sale MLS# 1937196
2 beds 1 baths 1,284 sq ft Single Family
Details for 301 Martha
MLS# 1937196
Description for 301 Martha, Blue River, WI, 53518
This charming 2-bedroom, 1-bath stick-built ranch offers cozy comfort with a thoughtful open-concept layout on the main floor, perfect for everyday living and entertaining. The home features convenient main-floor laundry tucked into the bathroom for added functionality. Enjoy outdoor gatherings in the nicely sized yard, complete with a fire pit area for relaxing evenings. A carport and spacious 2-car garage provide plenty of parking and storage. This inviting property combines practicality and warmth, making it a wonderful place to call home.
Listing Information
Property Type: Residential, 1 Story
Status: Active
Bedrooms: 2
Bathrooms: 1
Lot Size: 0.26 Acres
Square Feet: 1,284 sq ft
Year Built: 1980
Garage: Yes
County: Grant
School Information
District: Riverdale
Elementary: Riverdale
Middle: Riverdale
High: Riverdale
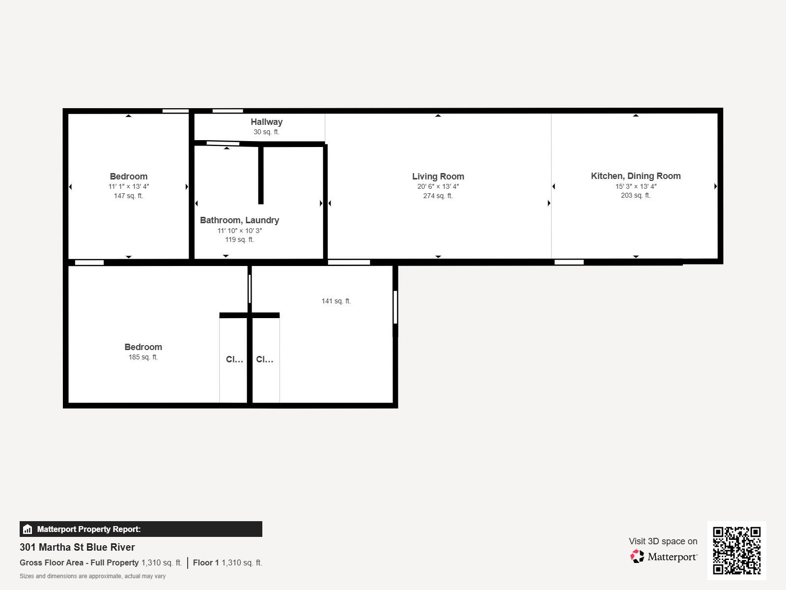
Room Information
Main Floor
Living/Great Room: 20x13
Kitchen: 15x13
Primary Bedroom: 12x12
Rec Room: 12x10
Bedroom 2: 10x13
Laundry:
Bathrooms
Full Baths: 1
Additonal Room Information
Bath Description: Shower Over Tub
Interior Features
Square Footage above: 1,284 sq ft
Appliances: Dishwasher, Dryer, Washer, Range, Refrigerator
Basement: Crawl Space
Additional Interior Features: Free Standing Stove, Kitchen Island, Walk-thru Bedroom, High Speed Internet
Utilities
Sewer: Municipal Sewer
Cooling: Forced Air
Heating: Natural Gas, Other
Exterior / Lot Features
Attached Garage: Attached Garage
Garage Spaces: 2
Parking Description: Electric Door Opener, Carport, Garage Description - Attached, Driveway - Paved
Exterior: Vinyl
Zoning: Res
Additional Exterior/Lot Features: Deck, Corner Lot
Driving Directions
From the Blue River Fire Department head W on W Exchange St towards Grant St, turn right onto Martha St, property will be on the left.
Financial Considerations
Tax Amount: 302.56
Tax Year: 2024
A broker reciprocity listing courtesy: NextHome Prime Real Estate
The data relating to real estate for sale on this web site comes in part from the Broker Reciprocity℠ Program of the Multiple Listing Service, Inc. Real estate listings held by brokerage firms other than Edina Realty, Inc. are marked with the Broker Reciprocity℠ logo or the Broker Reciprocity℠ thumbnail and detailed information about them includes the name of the listing brokers. Edina Realty, Inc. is not a Multiple Listing Service (MLS), nor does it offer MLS access. This website is a service of Edina Realty, Inc., a broker Participant of the Multiple Listing Service, Inc. IDX information is provided exclusively for consumers personal, non-commercial use and may not be used for any purpose other than to identify prospective properties consumers may be interested in purchasing. Open House information is subject to change without notice. Information deemed reliable but not guaranteed. Information is supplied by seller and other third parties and has not been verified.
Copyright 2025 Multiple Listing Service, Inc. All Rights Reserved.
Payment Calculator
Interest rate and annual percentage rate (APR) are based on current market conditions, are for informational purposes only, are subject to change without notice and may be subject to pricing add-ons related to property type, loan amount, loan-to-value, credit score and other variables. Estimated closing costs used in the APR calculation are assumed to be paid by the borrower at closing. If the closing costs are financed, the loan, APR and payment amounts will be higher. If the down payment is less than 20%, mortgage insurance may be required and could increase the monthly payment and APR. Contact us for details. Additional loan programs may be available. Accuracy is not guaranteed, and all products may not be available in all borrower's geographical areas and are based on their individual situation. This is not a credit decision or a commitment to lend.
Sales History & Tax Summary for 301 Martha
Sales History
| Date | Price | Change |
|---|---|---|
| Currently not available. | ||
Tax Summary
| Tax Year | Estimated Market Value | Total Tax |
|---|---|---|
| Currently not available. | ||
Data powered by ATTOM Data Solutions. Copyright© 2025. Information deemed reliable but not guaranteed.
Schools
Schools nearby 301 Martha
| Schools in attendance boundaries | Grades | Distance | Rating |
|---|---|---|---|
| Loading... | |||
| Schools nearby | Grades | Distance | Rating |
|---|---|---|---|
| Loading... | |||
Data powered by ATTOM Data Solutions. Copyright© 2025. Information deemed reliable but not guaranteed.
The schools shown represent both the assigned schools and schools by distance based on local school and district attendance boundaries. Attendance boundaries change based on various factors and proximity does not guarantee enrollment eligibility. Please consult your real estate agent and/or the school district to confirm the schools this property is zoned to attend. Information is deemed reliable but not guaranteed.
SchoolDigger ® Rating
The SchoolDigger rating system is a 1-5 scale with 5 as the highest rating. SchoolDigger ranks schools based on test scores supplied by each state's Department of Education. They calculate an average standard score by normalizing and averaging each school's test scores across all tests and grades.
Coming soon properties will soon be on the market, but are not yet available for showings.