301 Nottingham Court North Mankato, MN 56003
For Sale MLS# 6742191
5 beds 2 baths 2,740 sq ft Single Family
Details for 301 Nottingham Court
MLS# 6742191
Description for 301 Nottingham Court, North Mankato, MN, 56003
Welcome to this 5 bedroom, 2 bath, 2 stall rambler located in Upper North Mankato on a cul-de-sac with mature trees and perennials.The main floor features, kitchen, dining room, living room and large family room as well as three bedrooms and a bathroom. The lower level has recentlybeen finished with two additional bedrooms, office/craft-room, and living room with snack bar and refrigerator. The backyard is fenced in for privacy, witha deck and patio and beautifully landscaped with peonies, hostas and hydrangea. Close to parks and trails. Some of the updates to this beautiful homeinclude: new roof and gutters 2024, newly finished lower level which includes a large bathroom with shower and soaking tub, deck, appliances, and muchmore! Come tour this beautiful home today!
Listing Information
Property Type: Residential, Single Family
Status: Active
Bedrooms: 5
Bathrooms: 2
Lot Size: 0.24 Acres
Square Feet: 2,740 sq ft
Year Built: 1980
Foundation: 1,440 sq ft
Garage: Yes
Stories: 1 Story
Subdivision: Sunrise
County: Nicollet
Days On Market: 180
Construction Status: Previously Owned
School Information
District: 77 - Mankato
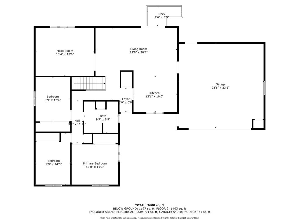
Room Information
Main Floor
Bedroom 1: 9.9x12.4
Bedroom 2: 9.9x14.6
Bedroom 3: 9.9x14.6
Kitchen: 12.1x10
Living Room: 22.8x20.3
Media Room: 16.4x13.6
Lower Floor
Bedroom 4: 12.6x11.6
Laundry: 13.5x8.6
Office: 8.5x12.10
Other: 16x7
Other: 16x3
Recreation Room: 21.6x16
Bathrooms
Full Baths: 2
Additonal Room Information
Family: 2 or More,Main Level
Dining: Kitchen/Dining Room,Living/Dining Room
Laundry: In Basement
Interior Features
Square Footage above: 1,440 sq ft
Square Footage below: 1,300 sq ft
Appliances: Gas Water Heater, Water Softener - Rented
Basement: Concrete Block
Additional Interior Features: 3 BR on One Level, Main Floor Primary
Utilities
Water: City Water/Connected
Sewer: City Sewer/Connected
Cooling: Central
Heating: Natural Gas, Forced Air
Exterior / Lot Features
Attached Garage: Attached Garage
Garage Spaces: 2
Parking Description: Attached Garage, Garage Dimensions - 24x24, Garage Sq Ft - 576.0
Exterior: Wood
Roof: Asphalt Shingles
Lot Dimensions: irregular
Zoning: Residential-Single Family
Fencing: Privacy, Wood
Additional Exterior/Lot Features: Irregular Lot, Tree Coverage - Medium, Road Frontage - City
Driving Directions
Lor Ray Drive to Nottingham Drive, right onto Nottingham Ct
Financial Considerations
Tax/Property ID: 187460070
Tax Amount: 1358
Tax Year: 2025
HomeStead Description: Homesteaded
A broker reciprocity listing courtesy: True Real Estate
The data relating to real estate for sale on this web site comes in part from the Broker Reciprocity℠ Program of the Regional Multiple Listing Service of Minnesota, Inc. Real estate listings held by brokerage firms other than Edina Realty, Inc. are marked with the Broker Reciprocity℠ logo or the Broker Reciprocity℠ thumbnail and detailed information about them includes the name of the listing brokers. Edina Realty, Inc. is not a Multiple Listing Service (MLS), nor does it offer MLS access. This website is a service of Edina Realty, Inc., a broker Participant of the Regional Multiple Listing Service of Minnesota, Inc. IDX information is provided exclusively for consumers personal, non-commercial use and may not be used for any purpose other than to identify prospective properties consumers may be interested in purchasing. Open House information is subject to change without notice. Information deemed reliable but not guaranteed.
Copyright 2025 Regional Multiple Listing Service of Minnesota, Inc. All Rights Reserved.
Payment Calculator
Interest rate and annual percentage rate (APR) are based on current market conditions, are for informational purposes only, are subject to change without notice and may be subject to pricing add-ons related to property type, loan amount, loan-to-value, credit score and other variables. Estimated closing costs used in the APR calculation are assumed to be paid by the borrower at closing. If the closing costs are financed, the loan, APR and payment amounts will be higher. If the down payment is less than 20%, mortgage insurance may be required and could increase the monthly payment and APR. Contact us for details. Additional loan programs may be available. Accuracy is not guaranteed, and all products may not be available in all borrower's geographical areas and are based on their individual situation. This is not a credit decision or a commitment to lend.
Sales History & Tax Summary for 301 Nottingham Court
Sales History
| Date | Price | Change |
|---|---|---|
| Currently not available. | ||
Tax Summary
| Tax Year | Estimated Market Value | Total Tax |
|---|---|---|
| Currently not available. | ||
Data powered by ATTOM Data Solutions. Copyright© 2025. Information deemed reliable but not guaranteed.
Schools
Schools nearby 301 Nottingham Court
| Schools in attendance boundaries | Grades | Distance | Rating |
|---|---|---|---|
| Loading... | |||
| Schools nearby | Grades | Distance | Rating |
|---|---|---|---|
| Loading... | |||
Data powered by ATTOM Data Solutions. Copyright© 2025. Information deemed reliable but not guaranteed.
The schools shown represent both the assigned schools and schools by distance based on local school and district attendance boundaries. Attendance boundaries change based on various factors and proximity does not guarantee enrollment eligibility. Please consult your real estate agent and/or the school district to confirm the schools this property is zoned to attend. Information is deemed reliable but not guaranteed.
SchoolDigger ® Rating
The SchoolDigger rating system is a 1-5 scale with 5 as the highest rating. SchoolDigger ranks schools based on test scores supplied by each state's Department of Education. They calculate an average standard score by normalizing and averaging each school's test scores across all tests and grades.
Coming soon properties will soon be on the market, but are not yet available for showings.