301 Quay Commons #1610 Sarasota, FL 34236
Pending MLS# A4647965
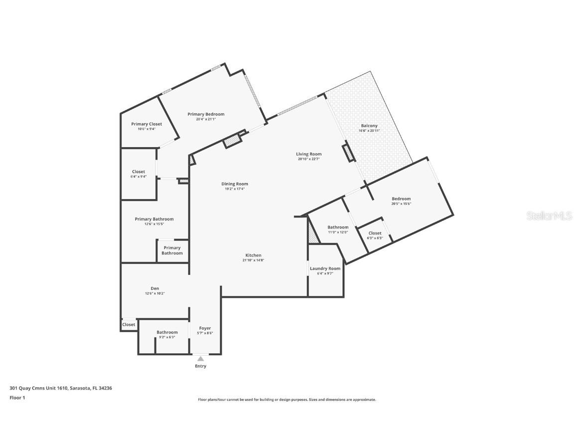
2 beds 3 baths 2,185 sq ft Condo
Details for 301 Quay Commons #1610
MLS# A4647965
Description for 301 Quay Commons #1610, Sarasota, FL, 34236
Under contract-accepting backup offers. PRICE REFINED FOR TODAY’S MARKET A TRULY EXCEPTIONAL opportunity now awaits. This expansive luxury residence stands out as one of the most captivating offerings in Sarasota’s downtown condo market. Its unique corner floor plan is enveloped in natural light and showcases a coveted west-facing orientation offering shimmering daytime bay views, glowing Gulf sunsets, and sparkling city lights after dusk. PERCHED on the 16th floor, this residence delivers an elevated sky-home experience rarely available at this price point. Two premium adjacent parking spaces add tremendous value and convenience, a sought-after benefit for discerning buyers. BEFORE this residence is quietly secured by another buyer, I invite you to explore the lifestyle it offers—both in person and through the property video linked below. A CURATED Blend of Elegance, Light & Luxury Living Step into refined coastal sophistication within this meticulously upgraded 2-bedroom + den, 3-bath home at the heart of Sarasota’s most exciting new waterfront district, The Quay. The 2,185 sq. ft. open-concept layout is framed by floor-to-ceiling windows and soaring 10-foot ceilings that bathe the home in natural light and capture sweeping views of Sarasota Bay and the Gulf of Mexico. EVERY detail has been thoughtfully elevated for immediate enjoyment: Premium porcelain tile throughout - Gourmet Italkraft kitchen with upgraded soft-close cabinetry, pantry pull-outs, and JennAir appliances including convection oven, built-in oven, induction cooktop, and Grohe fixtures - Spacious primary suite with two walk-in closets and spa-inspired bath with dual vanities, soaking tub, oversized shower, and linen closet - Ensuite guest bedroom plus full third bath - Den with closet—ideal as an office or third bedroom - Hunter Douglas motorized blinds (blackout in bedrooms), custom lighting throughout - Climate-controlled storage and two premium adjacent parking spaces - Lightly lived in—occupied only 12 months since completion. THIS is effortless luxury living in an amenity-rich, walkable waterfront enclave—steps to world-class dining, shopping, arts venues, and the Marina. A RARE OFFERING - A REFINED PRICE - A LIFESTYLE READY NOW. Homes with this combination of size, upgrades, dramatic views, and premier Quay location are limited. With the recent price refinement, this residence represents exceptional value for buyers seeking a turnkey luxury home in Sarasota’s fastest-growing waterfront district. I encourage interested buyers to experience this remarkable residence soon.
Listing Information
Property Type: Residential, Condominium
Status: Pending
Bedrooms: 2
Bathrooms: 3
Square Feet: 2,185 sq ft
Year Built: 2023
Garage: Yes
Stories: 1 Story
Construction: Block,Stucco
Construction Display: New Construction
Subdivision: Bayso Sarasota
Builder: KOLTER URBAN
Foundation: Pillar/Post/Pier,Slab
County: Sarasota
Construction Status: New Construction
School Information
Elementary: Alta Vista Elementary
Middle: Booker Middle
High: Booker High
Room Information
Main Floor
Bathroom 3: 6x9
Primary Bedroom: 12x16
Foyer: 9x6
Laundry: 10x6
Great Room: 30x19
Kitchen: 15x16
Den: 10x13
Bathroom 2: 12x11
Bedroom 2: 12x12
Primary Bathroom: 16x13
Bathrooms
Full Baths: 3
Additonal Room Information
Laundry: Laundry Room
Interior Features
Appliances: Wine Refrigerator, Built-In Oven, Convection Oven, Electric Water Heater, Range Hood, Refrigerator, Washer, Cooktop, Dishwasher, Disposal, Dryer
Flooring: Porcelain Tile
Doors/Windows: Window Treatments
Additional Interior Features: Open Floorplan, Window Treatments, High Ceilings
Utilities
Water: Public
Sewer: Public Sewer
Other Utilities: Cable Connected,Electricity Connected,Sewer Connected,Water Connected
Cooling: Central Air
Heating: Electric
Exterior / Lot Features
Attached Garage: Attached Garage
Garage Spaces: 2
Parking Description: Garage, Off Street, Garage Door Opener, Covered, Assigned
Roof: Concrete
Pool: Heated, Association, In Ground, Community, Salt Water
Lot View: City,Water
Additional Exterior/Lot Features: Outdoor Grill, Outdoor Shower, Lighting, Storage, Dog Run, Covered, Rear Porch, Private Road, City Lot, Buyer Approval Required
Community Features
Community Features: Fitness, Community Mailbox, Dog Park, Gated, Pool, Sidewalks
Security Features: Fire Sprinkler System, Security Lights, Key Card Entry, Lobby Secured, Gated Community, Gated with Guard, Secured Garage/Parking, Smoke Detector(s)
Association Amenities: Pool, Storage, Elevator(s), Fitness Center, Security, Spa/Hot Tub
HOA Dues Include: Common Areas, Pool(s), Maintenance Structure, Maintenance Grounds, Association Management, Water, Trash, Security, Sewer, Taxes
Driving Directions
Take Exit 210 (Fruitville Rd) and head west for approximately 7 miles. When reaching the roundabout take the second right by Cordelia. BAYSO is located on the left-hand side.
Financial Considerations
Terms: Cash,Conventional
Tax/Property ID: 2009163119
Tax Amount: 20655
Tax Year: 2024
A broker reciprocity listing courtesy: DOUGLAS ELLIMAN
Based on information provided by Stellar MLS as distributed by the MLS GRID. Information from the Internet Data Exchange is provided exclusively for consumers’ personal, non-commercial use, and such information may not be used for any purpose other than to identify prospective properties consumers may be interested in purchasing. This data is deemed reliable but is not guaranteed to be accurate by Edina Realty, Inc., or by the MLS. Edina Realty, Inc., is not a multiple listing service (MLS), nor does it offer MLS access.
Copyright 2026 Stellar MLS as distributed by the MLS GRID. All Rights Reserved.
Sales History & Tax Summary for 301 Quay Commons #1610
Sales History
| Date | Price | |
|---|---|---|
| Currently not available. | ||
Tax Summary
| Tax Year | Estimated Market Value | Total Tax |
|---|---|---|
| Currently not available. | ||
Data powered by ATTOM Data Solutions. Copyright© 2026. Information deemed reliable but not guaranteed.
Schools
Schools nearby 301 Quay Commons #1610
| Schools in attendance boundaries | Grades | Distance | Rating |
|---|---|---|---|
| Loading... | |||
| Schools nearby | Grades | Distance | Rating |
|---|---|---|---|
| Loading... | |||
Data powered by ATTOM Data Solutions. Copyright© 2026. Information deemed reliable but not guaranteed.
The schools shown represent both the assigned schools and schools by distance based on local school and district attendance boundaries. Attendance boundaries change based on various factors and proximity does not guarantee enrollment eligibility. Please consult your real estate agent and/or the school district to confirm the schools this property is zoned to attend. Information is deemed reliable but not guaranteed.
SchoolDigger ® Rating
The SchoolDigger rating system is a 1-5 scale with 5 as the highest rating. SchoolDigger ranks schools based on test scores supplied by each state's Department of Education. They calculate an average standard score by normalizing and averaging each school's test scores across all tests and grades.
Coming soon properties will soon be on the market, but are not yet available for showings.