$2,510,000
301 S Gulf Boulevard #11 & 12 Placida, FL 33946 - GULF OF AMERICA
For Sale MLS# D6144566
4 beds 6 baths 2,694 sq ft Single Family
Details for 301 S Gulf Boulevard #11 & 12
MLS# D6144566
Description for 301 S Gulf Boulevard #11 & 12, Placida, FL, 33946 - GULF OF AMERICA
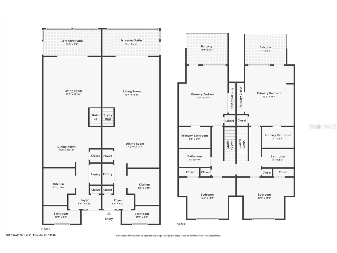
Beachfront Investment Opportunity on Don Pedro Island – Dual Renovated Units with Flexible Rental Potential! Discover a rare opportunity to own two fully renovated beachfront units in the Colony Don Pedro community—Units 11 & 12, offered as a single property. With a total of 4 bedrooms, 4 full baths, and 2 half baths, this versatile layout features an interior connecting door, allowing the property to function as: One large family retreat, Two separate 2BR/2.5BA vacation rentals OR A personal getaway + income-producing unit. Each unit features private screened and open lanais, plus shaded lounging areas below—perfect for outdoor entertaining or relaxing after a day on the beach. Every detail has been thoughtfully updated: newer roof, modern kitchens & baths, upgraded flooring, electric, plumbing, and HVAC systems. The seller is offering a $5,000 appliance credit per unit, allowing the buyer to select their preferred appliances. Enjoy miles of pristine sandy beaches just steps away—perfect for shelling, shark tooth hunting, and peaceful strolls. With breathtaking Gulf sunsets, world-class fishing, and the laid-back lifestyle of golf carts, bicycles, and boats, this island gem offers the true essence of “Old Florida” living. Community amenities include: Heated pool, Tennis court, Dockage with access to the Intracoastal and Gulf via just two bridges. Whether you’re looking for an income-generating rental, a family compound, or a flexible island escape, this property delivers unmatched potential and coastal charm. Don Pedro Island is accessible via a short car ferry ride, keeping it quiet, private, and unspoiled. Live, rent, or retreat—this is island life, your way.
Listing Information
Property Type: Residential, Single Family Residence
Status: Active
Bedrooms: 4
Bathrooms: 6
Lot Size: 0.22 Acres
Square Feet: 2,694 sq ft
Year Built: 1982
Stories: 2 Story
Construction: HardiPlank Type,Wood Frame
Construction Display: New Construction
Subdivision: Palm Island Estates Un 4
Foundation: Pillar/Post/Pier
County: Charlotte
Construction Status: New Construction
Room Information
Main Floor
Porch: 16x8
Living Room: 16x15
Kitchen: 9x10
Upper Floor
Bedroom 4: 10x9
Bedroom 3: 10x9
Primary Bedroom: 11x15
Primary Bedroom: 11x15
Bathrooms
Full Baths: 4
1/2 Baths: 2
Additonal Room Information
Laundry: Laundry Closet
Interior Features
Appliances: Electric Water Heater
Flooring: Carpet,Luxury Vinyl
Doors/Windows: Storm Window(s)
Additional Interior Features: Split Bedrooms, Living/Dining Room, Eat-In Kitchen, Open Floorplan
Utilities
Water: Private
Sewer: Septic Tank
Other Utilities: Cable Available,Electricity Connected,Water Connected
Cooling: Central Air
Heating: Central, Electric
Exterior / Lot Features
Parking Description: Golf Cart Garage, Covered
Roof: Shingle
Lot View: Bay,Beach,Lagoon,Ocean,Pool,Water
Additional Exterior/Lot Features: Tennis Court(s), Lighting, Screened, Covered, Rear Porch, Flood Zone, Outside City Limits
Waterfront Details
Standard Water Body: GULF OF AMERICA
Water Front Features: Beach Access, Gulf Access
Community Features
Homeowners Association: Yes
HOA Dues: $1,750 / Semi-Annually
Driving Directions
From 776 and Placida Rd., travel south on Placida Rd. to Panama Blvd. Car ferry to island (agent will assist with island access). Once on island, take N. Gulf Blvd. to left on S. Gulf Blvd. to address. Building located near community pool.
Financial Considerations
Terms: Cash,Conventional
Tax/Property ID: 412033726011
Tax Amount: 11687.43
Tax Year: 2024
A broker reciprocity listing courtesy: PARADISE EXCLUSIVE INC
Based on information provided by Stellar MLS as distributed by the MLS GRID. Information from the Internet Data Exchange is provided exclusively for consumers’ personal, non-commercial use, and such information may not be used for any purpose other than to identify prospective properties consumers may be interested in purchasing. This data is deemed reliable but is not guaranteed to be accurate by Edina Realty, Inc., or by the MLS. Edina Realty, Inc., is not a multiple listing service (MLS), nor does it offer MLS access.
Copyright 2025 Stellar MLS as distributed by the MLS GRID. All Rights Reserved.
Payment Calculator
Interest rate and annual percentage rate (APR) are based on current market conditions, are for informational purposes only, are subject to change without notice and may be subject to pricing add-ons related to property type, loan amount, loan-to-value, credit score and other variables. Estimated closing costs used in the APR calculation are assumed to be paid by the borrower at closing. If the closing costs are financed, the loan, APR and payment amounts will be higher. If the down payment is less than 20%, mortgage insurance may be required and could increase the monthly payment and APR. Contact us for details. Additional loan programs may be available. Accuracy is not guaranteed, and all products may not be available in all borrower's geographical areas and are based on their individual situation. This is not a credit decision or a commitment to lend.
Sales History & Tax Summary for 301 S Gulf Boulevard #11 & 12
Sales History
| Date | Price | Change |
|---|---|---|
| Currently not available. | ||
Tax Summary
| Tax Year | Estimated Market Value | Total Tax |
|---|---|---|
| Currently not available. | ||
Data powered by ATTOM Data Solutions. Copyright© 2025. Information deemed reliable but not guaranteed.
Schools
Schools nearby 301 S Gulf Boulevard #11 & 12
| Schools in attendance boundaries | Grades | Distance | Rating |
|---|---|---|---|
| Loading... | |||
| Schools nearby | Grades | Distance | Rating |
|---|---|---|---|
| Loading... | |||
Data powered by ATTOM Data Solutions. Copyright© 2025. Information deemed reliable but not guaranteed.
The schools shown represent both the assigned schools and schools by distance based on local school and district attendance boundaries. Attendance boundaries change based on various factors and proximity does not guarantee enrollment eligibility. Please consult your real estate agent and/or the school district to confirm the schools this property is zoned to attend. Information is deemed reliable but not guaranteed.
SchoolDigger ® Rating
The SchoolDigger rating system is a 1-5 scale with 5 as the highest rating. SchoolDigger ranks schools based on test scores supplied by each state's Department of Education. They calculate an average standard score by normalizing and averaging each school's test scores across all tests and grades.
Coming soon properties will soon be on the market, but are not yet available for showings.