$2,599,000
3020 Kensington Trace Tarpon Springs, FL 34688
For Sale MLS# TB8438110
5 beds 6 baths 6,565 sq ft Single Family
Details for 3020 Kensington Trace
MLS# TB8438110
Description for 3020 Kensington Trace, Tarpon Springs, FL, 34688
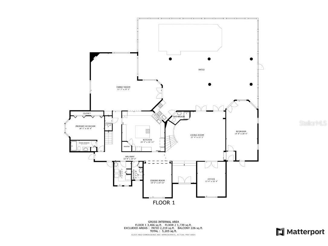
Welcome to this an exquisite one of a kind custom-built brick estate that embodies refined luxury and sophistication. This house is perfectly situated on a double lot of 1.5 acres in one of Tarpon Springs’ most sought-after luxurious neighborhoods. This magnificent home offers both privacy & grandeur, minutes from Gulf beaches, charming downtown shops, and top-rated schools. All with Brand New Roof & 3 newer HVAC systems. As you drive up the circular paved driveway & enter through the double entry doors, you’re greeted by a breathtaking two-story foyer that opens to a formal living room with a circular staircase, soaring ceilings and sweeping views of the estate grounds. Stunning gold-plated crystal chandeliers and a custom-made bookcase, serve as the centerpieces of the formal living room adding a touch of timeless elegance. On the right, an executive office/ library with exquisite built in cabinetry overlooks the front yard, offers a peaceful retreat or quiet place to work. Every detail of this home reflects exceptional craftsmanship—from the rich millwork & triple crown moldings to the hand-finished cabinetry & architectural detailing throughout. The chef’s kitchen is a masterpiece, featuring a large crystallite granite island, custom wood cabinetry, and premium stainless-steel appliances. A walk in pantry for storage. Across from kitchen, there is a stately formal dining room framed with Roman columns sets the stage for elegant dinner parties. The home’s interior showcases marble, tile and rich hardwood flooring, complemented by arched doorways, art niches, and designer lighting. The two-story family room impresses with a built-in entertainment center, a fireplace and grand windows that fill the space with natural light. Each bedroom suite is generous in size including a walk-in closet, offering comfort and privacy for family and guests. Two bedrooms with ensuite bathrooms are located on the first floor, one on each side of the house. There is also a guest half bathroom on the first floor. The master primary suite is on the second floor, featuring its own fireplace, a spa-like marble bathroom, column surrounded garden tub, a walk in granite shower, and two walk in closets. The split plan offers two more bedrooms and a full bathroom on the other side of the second floor. A second staircase, a small loft and a huge balcony overlooking the backyard allow for enjoyable views. Step outside to your private backyard oasis—complete with a sparkling pool and spa, paved travertine deck, surrounded by lush landscaping and calm pond, perfect for entertaining or unwinding in style. Pool has a separate full bathroom that was recently remodeled. A three-car side-entry garage and large side driveway, and side fenced yards for pets complete this extraordinary property. This residence is part of a large gated community with security guards. Community features a clubhouse, golf course, and a private restaurant. Location is key as it is a short drive to many florida beaches, Tarpon Springs sponge dock, many marinas, and about 30 minutes away from Tampa Internation Airport and St. Petersburg airport. The community is surrounded by many shopping centers, county parks and close to major roads and highways which makes it the perfect location in the midst of everything. Experience the perfect blend of elegance, comfort, and timeless design in this remarkable Tarpon Springs estate.
Listing Information
Property Type: Residential, Single Family Residence
Status: Active
Bedrooms: 5
Bathrooms: 6
Lot Size: 1.49 Acres
Square Feet: 6,565 sq ft
Year Built: 1998
Garage: Yes
Stories: 2 Story
Construction: Brick,Block
Construction Display: New Construction
Subdivision: Wentworth
Foundation: Slab
County: Pinellas
Construction Status: New Construction
School Information
Elementary: Brooker Creek Elementary-Pn
Middle: Tarpon Springs Middle-Pn
High: East Lake High-Pn
Room Information
Main Floor
Kitchen:
Bedroom 2:
Bedroom 1:
Living Room:
Upper Floor
Bedroom 4:
Bedroom 3:
Primary Bathroom:
Primary Bedroom:
Bathrooms
Full Baths: 5
1/2 Baths: 1
Additonal Room Information
Laundry: Inside, Laundry Room
Interior Features
Appliances: Built-In Oven, Electric Water Heater, Refrigerator, Washer, Cooktop, Dishwasher, Dryer, Microwave
Flooring: Engineered Hardwood,Tile,Wood
Doors/Windows: Display Window(s)
Fireplaces: Gas, Decorative
Additional Interior Features: High Ceilings, Cathedral Ceiling(s), Built-in Features, Loft, Walk-In Closet(s), Separate/Formal Living Room, Solid Surface Counters, Wood Cabinets, Separate/Formal Dining Room, Upper Level Primary, Crown Molding
Utilities
Water: Public
Sewer: Public Sewer
Other Utilities: Cable Available,Electricity Available,Municipal Utilities,Sewer Available,Water Available
Cooling: Central Air
Heating: Central
Exterior / Lot Features
Attached Garage: Attached Garage
Garage Spaces: 3
Parking Description: driveway, Circular Driveway, Oversized, Parking Pad
Roof: Shingle
Pool: Other, In Ground, Outside Bath Access, Screen Enclosure, Gunite
Lot View: Pond,Trees/Woods,Water
Lot Dimensions: 233x148
Fencing: fenced
Additional Exterior/Lot Features: French Patio Doors, Sprinkler/Irrigation, Balcony, Balcony, Private Road, City Lot, Oversized Lot, Outside City Limits
Waterfront Details
Water Front Features: Pond
Community Features
Community Features: Sidewalks
Homeowners Association: Yes
HOA Dues: $570 / Monthly
Driving Directions
East Lake Rd, to Kensington Trace. West on Kensington Trce, past Gate guard, House is on the left.
Financial Considerations
Tax/Property ID: 15-27-16-96008-000-0980
Tax Amount: 15476.51
Tax Year: 2024
A broker reciprocity listing courtesy: CHARLES RUTENBERG REALTY INC
Based on information provided by Stellar MLS as distributed by the MLS GRID. Information from the Internet Data Exchange is provided exclusively for consumers’ personal, non-commercial use, and such information may not be used for any purpose other than to identify prospective properties consumers may be interested in purchasing. This data is deemed reliable but is not guaranteed to be accurate by Edina Realty, Inc., or by the MLS. Edina Realty, Inc., is not a multiple listing service (MLS), nor does it offer MLS access.
Copyright 2025 Stellar MLS as distributed by the MLS GRID. All Rights Reserved.
Payment Calculator
Interest rate and annual percentage rate (APR) are based on current market conditions, are for informational purposes only, are subject to change without notice and may be subject to pricing add-ons related to property type, loan amount, loan-to-value, credit score and other variables. Estimated closing costs used in the APR calculation are assumed to be paid by the borrower at closing. If the closing costs are financed, the loan, APR and payment amounts will be higher. If the down payment is less than 20%, mortgage insurance may be required and could increase the monthly payment and APR. Contact us for details. Additional loan programs may be available. Accuracy is not guaranteed, and all products may not be available in all borrower's geographical areas and are based on their individual situation. This is not a credit decision or a commitment to lend.
Sales History & Tax Summary for 3020 Kensington Trace
Sales History
| Date | Price | Change |
|---|---|---|
| Currently not available. | ||
Tax Summary
| Tax Year | Estimated Market Value | Total Tax |
|---|---|---|
| Currently not available. | ||
Data powered by ATTOM Data Solutions. Copyright© 2025. Information deemed reliable but not guaranteed.
Schools
Schools nearby 3020 Kensington Trace
| Schools in attendance boundaries | Grades | Distance | Rating |
|---|---|---|---|
| Loading... | |||
| Schools nearby | Grades | Distance | Rating |
|---|---|---|---|
| Loading... | |||
Data powered by ATTOM Data Solutions. Copyright© 2025. Information deemed reliable but not guaranteed.
The schools shown represent both the assigned schools and schools by distance based on local school and district attendance boundaries. Attendance boundaries change based on various factors and proximity does not guarantee enrollment eligibility. Please consult your real estate agent and/or the school district to confirm the schools this property is zoned to attend. Information is deemed reliable but not guaranteed.
SchoolDigger ® Rating
The SchoolDigger rating system is a 1-5 scale with 5 as the highest rating. SchoolDigger ranks schools based on test scores supplied by each state's Department of Education. They calculate an average standard score by normalizing and averaging each school's test scores across all tests and grades.
Coming soon properties will soon be on the market, but are not yet available for showings.