3021 Isola Bella Boulevard Mount Dora, FL 32757
For Sale MLS# NS1086762
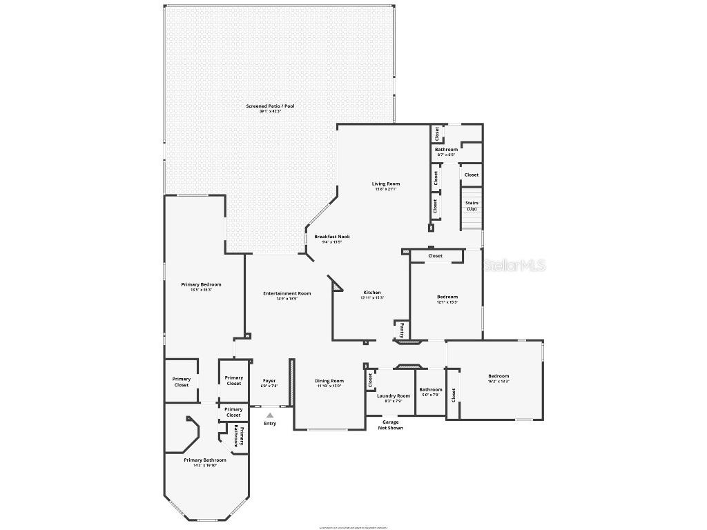
5 beds 4 baths 3,322 sq ft Single Family
Details for 3021 Isola Bella Boulevard
MLS# NS1086762
Description for 3021 Isola Bella Boulevard, Mount Dora, FL, 32757
Waterfront Pool Home in Loch Leven – Mount Dora’s Premier Gated Community! This spacious 5-bedroom, 4-bath home is an incredible value in one of Mount Dora’s most desirable gated communities. The property includes a three-car side-entry garage with a Tesla charger, a gourmet kitchen with granite countertops, stainless steel appliances, double ovens, and upgraded cabinetry, plus an executive bar area perfect for entertaining. The downstairs master suite features a sitting area, tub, granite counters, and a large walk-in shower. Upstairs has been redesigned to include two bedrooms and a living room for added flexibility. All carpets have recently been cleaned! Recent updates include a new water heater (2024), a new dishwasher (2025), a new salt cell and pool pump, a newer A/C unit upstairs (2023) and downstairs (2018), and a 200-gallon leased propane tank. The home also boasts a whole-house water filtration system with an additional drinking water filtration system. Enjoy outdoor living with a self-cleaning pool, a spa, a child safety fence around the pool, and a lanai wired for surround sound. The massive, fenced backyard includes a playground, making it ideal for family fun. Additional highlights include a tile roof, granite in all baths, a security system, dual-zone A/C, and cabinets in the laundry room. No flood insurance required for this home! Loch Leven offers a prime location just minutes from downtown Mount Dora and an easy commute to Orlando. Schedule your private showing today!
Listing Information
Property Type: Residential, Single Family Residence
Status: Active
Bedrooms: 5
Bathrooms: 4
Lot Size: 0.45 Acres
Square Feet: 3,322 sq ft
Year Built: 2008
Garage: Yes
Stories: 2 Story
Construction: Block
Subdivision: Mount Dora Loch Leven Ph 05
Foundation: Block
County: Lake
School Information
Elementary: Round Lake Elem
Middle: Eustis Middle
High: Eustis High School
Room Information
Main Floor
Living Room:
Kitchen:
Bathroom 1:
Primary Bedroom:
Bathrooms
Full Baths: 4
Additonal Room Information
Laundry: Inside, Laundry Room
Interior Features
Appliances: Electric Water Heater, Built-In Oven, Range Hood, Cooktop, Dishwasher, Disposal, Dryer, Microwave, Refrigerator, Washer
Flooring: Carpet,Engineered Hardwood,Tile
Doors/Windows: Window Treatments
Additional Interior Features: Split Bedrooms, Window Treatments, Tray Ceiling(s), Vaulted Ceiling(s), High Ceilings, Main Level Primary, Dry Bar, Stone Counters
Utilities
Water: Public
Sewer: Public Sewer
Other Utilities: Cable Connected,Electricity Connected,Municipal Utilities,Sewer Connected,Underground Utilities,Water Connected
Cooling: Central Air
Heating: Electric
Exterior / Lot Features
Attached Garage: Attached Garage
Garage Spaces: 3
Roof: Tile
Pool: In Ground, Salt Water, Screen Enclosure, Other
Lot View: Canal,Water
Fencing: Other, fenced
Additional Exterior/Lot Features: Private Yard, Sprinkler/Irrigation, Playground, Enclosed, Screened, Covered, Landscaped
Waterfront Details
Water Front Features: Lake Privileges, Canal Access
Community Features
Community Features: Sidewalks, Playground, Street Lights, Boat Facilities, Gated, Recreation Area
Security Features: Gated Community
Association Amenities: Tennis Court(s), Other, Playground, Gated
Homeowners Association: Yes
HOA Dues: $1,995 / Annually
Driving Directions
Located off of SR- 44B in between 441 and SR-44. Turn into Loch Leven entrance (gate code will be provided at acceptance of Showingtime request). Go through gate, make a left on Juliette Boulevard to the roundabout by the playground and tennis courts. Make a right and proceed down Isola Bella Boulevard and home will be on the left side of the street.
Financial Considerations
Terms: Cash,Conventional,FHA
Tax/Property ID: 17-19-27-1221-000-12600
Tax Amount: 10543.7
Tax Year: 2025
A broker reciprocity listing courtesy: COLLADO REAL ESTATE
Based on information provided by Stellar MLS as distributed by the MLS GRID. Information from the Internet Data Exchange is provided exclusively for consumers’ personal, non-commercial use, and such information may not be used for any purpose other than to identify prospective properties consumers may be interested in purchasing. This data is deemed reliable but is not guaranteed to be accurate by Edina Realty, Inc., or by the MLS. Edina Realty, Inc., is not a multiple listing service (MLS), nor does it offer MLS access.
Copyright 2026 Stellar MLS as distributed by the MLS GRID. All Rights Reserved.
Payment Calculator
Interest rate and annual percentage rate (APR) are based on current market conditions, are for informational purposes only, are subject to change without notice and may be subject to pricing add-ons related to property type, loan amount, loan-to-value, credit score and other variables. Estimated closing costs used in the APR calculation are assumed to be paid by the borrower at closing. If the closing costs are financed, the loan, APR and payment amounts will be higher. If the down payment is less than 20%, mortgage insurance may be required and could increase the monthly payment and APR. Contact us for details. Additional loan programs may be available. Accuracy is not guaranteed, and all products may not be available in all borrower's geographical areas and are based on their individual situation. This is not a credit decision or a commitment to lend.
Sales History & Tax Summary for 3021 Isola Bella Boulevard
Sales History
| Date | Price | |
|---|---|---|
| Currently not available. | ||
Tax Summary
| Tax Year | Estimated Market Value | Total Tax |
|---|---|---|
| Currently not available. | ||
Data powered by ATTOM Data Solutions. Copyright© 2026. Information deemed reliable but not guaranteed.
Schools
Schools nearby 3021 Isola Bella Boulevard
| Schools in attendance boundaries | Grades | Distance | Rating |
|---|---|---|---|
| Loading... | |||
| Schools nearby | Grades | Distance | Rating |
|---|---|---|---|
| Loading... | |||
Data powered by ATTOM Data Solutions. Copyright© 2026. Information deemed reliable but not guaranteed.
The schools shown represent both the assigned schools and schools by distance based on local school and district attendance boundaries. Attendance boundaries change based on various factors and proximity does not guarantee enrollment eligibility. Please consult your real estate agent and/or the school district to confirm the schools this property is zoned to attend. Information is deemed reliable but not guaranteed.
SchoolDigger ® Rating
The SchoolDigger rating system is a 1-5 scale with 5 as the highest rating. SchoolDigger ranks schools based on test scores supplied by each state's Department of Education. They calculate an average standard score by normalizing and averaging each school's test scores across all tests and grades.
Coming soon properties will soon be on the market, but are not yet available for showings.