$199,000
3021 Matecumbe Key Road #UNIT 4 Punta Gorda, FL 33955
For Sale MLS# C7516524
2 beds 3 baths 1,418 sq ft Condo
Details for 3021 Matecumbe Key Road #UNIT 4
MLS# C7516524
Description for 3021 Matecumbe Key Road #UNIT 4, Punta Gorda, FL, 33955
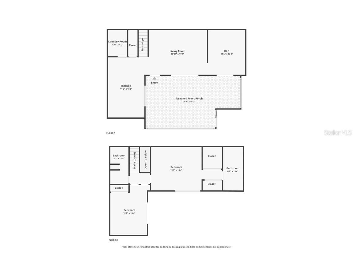
Fantastic TURNKEY Condo in Burnt Store Marina – Resort-Style Living! NEW ROOF. Welcome to your piece of paradise in the highly sought-after Burnt Store Marina community! Step from your living room straight to your spacious patio made for relaxing and entertaining—no hallways, no elevators, just easy coastal living surrounded by green space. This bright 2-bedroom, 2.5-bath condo with a den boasts hardwood floors, coastal furnishings, and an abundance of natural light. Five sliding doors open to a balcony and screened patio, providing seamless indoor-outdoor living. Offered turnkey and ready to enjoy, this home is surrounded by open green space right outside the door. The community's private pool is steps away for more relaxation and to soak up the Florida sun. Just a short walk to The North Basin of the Marina, Prosperity Point, the Harbor Master, Freedom Boat Club, the popular Cass Cay waterfront restaurant, and a local deli, you'll love the convenience of having dining, boating, and recreation right at your doorstep. Cable and internet are included, keeping ownership simple. Burnt Store Marina offers golf, tennis, pickleball, fitness facilities, walking paths, waterfront dining, a full-service marina, rental golf carts, and more. Burnt Store Marina is a vibrant waterfront community offering. Whether you're a boating enthusiast, golfer, or simply looking for a relaxing lifestyle in a vibrant community, this condo is the perfect fit. Don’t miss your chance to own a slice of paradise! Call for a showing today!
Listing Information
Property Type: Residential, Condominium
Status: Active
Bedrooms: 2
Bathrooms: 3
Square Feet: 1,418 sq ft
Year Built: 1988
Stories: 2 Story
Construction: Other
Subdivision: Admiralty Village Condo
Foundation: Slab
County: Lee
Room Information
Main Floor
Porch: 13x18
Kitchen: 8x11
Living Room: 13x17
Upper Floor
Primary Bedroom: 16x13
Bathrooms
Full Baths: 2
1/2 Baths: 1
Additonal Room Information
Laundry: Inside
Interior Features
Appliances: Range, Refrigerator, Washer, Dishwasher, Disposal, Dryer
Flooring: Carpet,Tile
Additional Interior Features: Ceiling Fan(s), Walk-In Closet(s)
Utilities
Water: Public
Sewer: Public Sewer
Other Utilities: Cable Connected,Electricity Connected,Sewer Connected,Water Connected
Cooling: Central Air, Ceiling Fan(s)
Heating: Central
Exterior / Lot Features
Roof: Other
Pool: Community
Additional Exterior/Lot Features: Balcony, Balcony
Community Features
Community Features: Pool, Tennis Court(s), Golf, Gated, Fitness, Golf Carts OK, Restaurant, Dog Park
Security Features: Gated Community, Gated with Guard
HOA Dues Include: Reserve Fund, Common Areas, Association Management, Security, Sewer, Insurance, Maintenance Grounds, Pest Control, Maintenance Structure, Pool(s), Internet, Trash, Taxes
Driving Directions
From Burnt store road enter the main gate for Burnt Store Marina. Take Islamorada and turn left on Cape Cole, right on Matecumbe Key Rd. Destination will be on the right.
Financial Considerations
Tax/Property ID: 06-43-23-07-00000.0240
Tax Amount: 2473.65
Tax Year: 2025
A broker reciprocity listing courtesy: CALENDA REAL ESTATE GROUP,INC.
Based on information provided by Stellar MLS as distributed by the MLS GRID. Information from the Internet Data Exchange is provided exclusively for consumers’ personal, non-commercial use, and such information may not be used for any purpose other than to identify prospective properties consumers may be interested in purchasing. This data is deemed reliable but is not guaranteed to be accurate by Edina Realty, Inc., or by the MLS. Edina Realty, Inc., is not a multiple listing service (MLS), nor does it offer MLS access.
Copyright 2026 Stellar MLS as distributed by the MLS GRID. All Rights Reserved.
Payment Calculator
Interest rate and annual percentage rate (APR) are based on current market conditions, are for informational purposes only, are subject to change without notice and may be subject to pricing add-ons related to property type, loan amount, loan-to-value, credit score and other variables. Estimated closing costs used in the APR calculation are assumed to be paid by the borrower at closing. If the closing costs are financed, the loan, APR and payment amounts will be higher. If the down payment is less than 20%, mortgage insurance may be required and could increase the monthly payment and APR. Contact us for details. Additional loan programs may be available. Accuracy is not guaranteed, and all products may not be available in all borrower's geographical areas and are based on their individual situation. This is not a credit decision or a commitment to lend.
Sales History & Tax Summary for 3021 Matecumbe Key Road #UNIT 4
Sales History
| Date | Price | |
|---|---|---|
| Currently not available. | ||
Tax Summary
| Tax Year | Estimated Market Value | Total Tax |
|---|---|---|
| Currently not available. | ||
Data powered by ATTOM Data Solutions. Copyright© 2026. Information deemed reliable but not guaranteed.
Schools
Schools nearby 3021 Matecumbe Key Road #UNIT 4
| Schools in attendance boundaries | Grades | Distance | Rating |
|---|---|---|---|
| Loading... | |||
| Schools nearby | Grades | Distance | Rating |
|---|---|---|---|
| Loading... | |||
Data powered by ATTOM Data Solutions. Copyright© 2026. Information deemed reliable but not guaranteed.
The schools shown represent both the assigned schools and schools by distance based on local school and district attendance boundaries. Attendance boundaries change based on various factors and proximity does not guarantee enrollment eligibility. Please consult your real estate agent and/or the school district to confirm the schools this property is zoned to attend. Information is deemed reliable but not guaranteed.
SchoolDigger ® Rating
The SchoolDigger rating system is a 1-5 scale with 5 as the highest rating. SchoolDigger ranks schools based on test scores supplied by each state's Department of Education. They calculate an average standard score by normalizing and averaging each school's test scores across all tests and grades.
Coming soon properties will soon be on the market, but are not yet available for showings.