$339,900
30230 Double Drive Wesley Chapel, FL 33545
For Sale MLS# O6363140
4 beds 3 baths 1,944 sq ft Single Family
Details for 30230 Double Drive
MLS# O6363140
Description for 30230 Double Drive, Wesley Chapel, FL, 33545
One or more photo(s) has been virtually staged. Roof to be replaced prior to any agreed to close date (may be pending HOA approval). HVAC replaced 11/2025. Water heater sticker shows 2023 mfr date. Welcoming 2-story home featuring 4 bedrooms and 2.5 bathrooms with a spacious 2-car garage. The kitchen offers an island, a convenient kitchen bar, and an open view into the living room, creating a great flow for everyday living. Enjoy a bright breakfast area and plenty of space throughout for comfortable living and entertaining. Input seller name on contract as "American Homes 4 Rent Properties Five, LLC (as successor-by-merger to AMH Portfolio A, LLC, fka Beazer Pre-Owned Homes, LLC)"
Listing Information
Property Type: Residential, Single Family Residence
Status: Active
Bedrooms: 4
Bathrooms: 3
Lot Size: 0.09 Acres
Square Feet: 1,944 sq ft
Year Built: 2002
Garage: Yes
Stories: 2 Story
Construction: Stucco
Subdivision: Pine Ridge
Foundation: Slab
County: Pasco
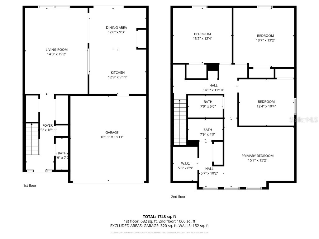
Room Information
Main Floor
Dining Room:
Living Room:
Kitchen:
Upper Floor
Bedroom 4:
Bedroom 3:
Bedroom 2:
Primary Bedroom:
Bathrooms
Full Baths: 2
1/2 Baths: 1
Additonal Room Information
Laundry: Inside
Interior Features
Appliances: Range, Refrigerator, Dishwasher, Microwave
Flooring: Vinyl
Additional Interior Features: Ceiling Fan(s), Walk-In Closet(s), Open Floorplan
Utilities
Water: Public
Sewer: Public Sewer
Other Utilities: Electricity Available,Sewer Available,Water Available
Cooling: Ceiling Fan(s), Central Air
Heating: Central
Exterior / Lot Features
Attached Garage: Attached Garage
Garage Spaces: 2
Roof: Shingle
Additional Exterior/Lot Features: Other
Community Features
Community Features: Sidewalks
Homeowners Association: Yes
HOA Dues: $475 / Annually
Driving Directions
From I-75, take Exit 279 for State Road 54 / SR-56 toward Wesley Chapel. Continue east on SR-54 until you reach the community. Turn right onto Double Dr and follow to 30230 Double Dr on your left.
Financial Considerations
Terms: Cash,Conventional,FHA,VA Loan
Tax/Property ID: 20-26-09-006.0-003.00-008.0
Tax Amount: 5427
Tax Year: 2024
A broker reciprocity listing courtesy: MAINSTAY BROKERAGE LLC
Based on information provided by Stellar MLS as distributed by the MLS GRID. Information from the Internet Data Exchange is provided exclusively for consumers’ personal, non-commercial use, and such information may not be used for any purpose other than to identify prospective properties consumers may be interested in purchasing. This data is deemed reliable but is not guaranteed to be accurate by Edina Realty, Inc., or by the MLS. Edina Realty, Inc., is not a multiple listing service (MLS), nor does it offer MLS access.
Copyright 2025 Stellar MLS as distributed by the MLS GRID. All Rights Reserved.
Payment Calculator
Interest rate and annual percentage rate (APR) are based on current market conditions, are for informational purposes only, are subject to change without notice and may be subject to pricing add-ons related to property type, loan amount, loan-to-value, credit score and other variables. Estimated closing costs used in the APR calculation are assumed to be paid by the borrower at closing. If the closing costs are financed, the loan, APR and payment amounts will be higher. If the down payment is less than 20%, mortgage insurance may be required and could increase the monthly payment and APR. Contact us for details. Additional loan programs may be available. Accuracy is not guaranteed, and all products may not be available in all borrower's geographical areas and are based on their individual situation. This is not a credit decision or a commitment to lend.
Sales History & Tax Summary for 30230 Double Drive
Sales History
| Date | Price | Change |
|---|---|---|
| Currently not available. | ||
Tax Summary
| Tax Year | Estimated Market Value | Total Tax |
|---|---|---|
| Currently not available. | ||
Data powered by ATTOM Data Solutions. Copyright© 2025. Information deemed reliable but not guaranteed.
Schools
Schools nearby 30230 Double Drive
| Schools in attendance boundaries | Grades | Distance | Rating |
|---|---|---|---|
| Loading... | |||
| Schools nearby | Grades | Distance | Rating |
|---|---|---|---|
| Loading... | |||
Data powered by ATTOM Data Solutions. Copyright© 2025. Information deemed reliable but not guaranteed.
The schools shown represent both the assigned schools and schools by distance based on local school and district attendance boundaries. Attendance boundaries change based on various factors and proximity does not guarantee enrollment eligibility. Please consult your real estate agent and/or the school district to confirm the schools this property is zoned to attend. Information is deemed reliable but not guaranteed.
SchoolDigger ® Rating
The SchoolDigger rating system is a 1-5 scale with 5 as the highest rating. SchoolDigger ranks schools based on test scores supplied by each state's Department of Education. They calculate an average standard score by normalizing and averaging each school's test scores across all tests and grades.
Coming soon properties will soon be on the market, but are not yet available for showings.