303 NE 290th Avenue Old Town, FL 32680
For Sale MLS# GC532292
3 beds 2 baths 1,741 sq ft Single Family
Details for 303 NE 290th Avenue
MLS# GC532292
Description for 303 NE 290th Avenue, Old Town, FL, 32680
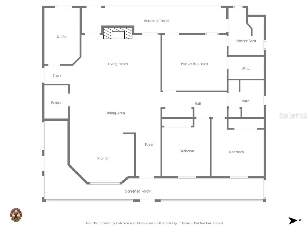
OLD TOWN, FLORIDA ~ 8.87 ACRES WITH POND, Picture your family farm here, horses and donkeys in the pasture, ducks in the pond, chickens and fresh eggs, goats, sheep, a HUGE garden with fresh produce. Extraordinary home is 2009 custom built 3/2 with cathedral ceilings, and the open floor plan with brick wood-burning fireplace is perfect for family get togethers and entertaining. Tile floors throughout, large walk-in shower in master bath with huge bench, walk-in closet, linen closets both baths. Huge kitchen includes all stainless steel appliances, slide-out drawer shelving in all wood kitchen cabinets, tons of counter space for food preparation, and large walk-in kitchen pantry. Other features include on-demand gas water heater, large laundry room with plenty of hanging storage and deep sink, marble window sills, and screened porch front entry. Screened porch in rear is accessed from master bedroom, master bath and living room providing the perfect cozy spot to enjoy your beverage while enjoying the beauty of nature. There is a chain-link fenced area off of back porch for your furry friends or children. Front gate keypad entry, asphalt paved driveway, 2-car detached carport with concrete floor, 2-car detached garage with circular drive has additional drive-thru carport (perfect for your tractor or side-by-side) with an attached air-conditioned office area The garage has plenty of room for your workshop and hay barn with lots of loft area storage. Most recent additions include new 4-inch submersible well with water treatment system, new air handler, and wi-fiber internet which makes working from home and streaming movies a breeze. The pasture areas contain several barns/sheds, lawn mower shed, and water has been piped to all areas of property. Multiple outbuildings, way too much to list. There is also a hanging feeder and shooting range with mounded berm for safety. The entire perimeter of is lined with trees and fenced with field fence so there are no visible neighbors for the utmost in privacy and seclusion. The pond is an added feature for you or your feathered friends or livestock and it is fenced off separately. Don't miss your opportunity to own this gorgeous and private property, would make an awesome mini-farm or private retreat!
Listing Information
Property Type: Residential, Single Family Residence
Status: Active
Bedrooms: 3
Bathrooms: 2
Lot Size: 11.87 Acres
Square Feet: 1,741 sq ft
Year Built: 2009
Garage: Yes
Stories: 1 Story
Construction: HardiPlank Type,Concrete
Construction Display: New Construction
Subdivision: Indian Oaks Lots 41 Thru 43
Foundation: Slab
County: Dixie
Construction Status: New Construction
Room Information
Main Floor
Laundry: 13x8
Primary Bathroom: 11x8
Primary Bedroom: 13x15
Kitchen: 12x15
Dining Room: 10x21
Living Room: 15x21
Bathrooms
Full Baths: 2
Additonal Room Information
Laundry: Inside, Washer Hookup, Laundry Room, Electric Dryer Hookup
Interior Features
Appliances: Tankless Water Heater, Cooktop, Dishwasher, Dryer, Microwave, Freezer, Range, Refrigerator, Washer, Water Softener
Flooring: Tile
Doors/Windows: Double Pane Windows
Fireplaces: Masonry, Wood Burning
Additional Interior Features: Walk-In Closet(s), Ceiling Fan(s), Open Floorplan, Wood Cabinets, Built-in Features, Cathedral Ceiling(s), High Ceilings
Utilities
Water: Well
Sewer: Septic Tank
Other Utilities: Electricity Connected,Fiber Optic Available,Propane
Cooling: Ceiling Fan(s), Central Air
Heating: Central, Heat Pump, Electric
Exterior / Lot Features
Garage Spaces: 2
Parking Description: Circular Driveway, RV Access/Parking, Workshop in Garage, Parking Pad
Roof: Metal
Lot View: Pond,Trees/Woods,Water
Fencing: Cross Fenced, fenced, Wire, Chain Link
Additional Exterior/Lot Features: Rain Gutters, Storage, Porch, Covered, Deck, Patio, Rear Porch, Front Porch, Enclosed, Screened, Corner Lot, Irregular Lot, Landscaped, Cleared, Farm, Pasture, Oversized Lot, Outside City Limits
Out Buildings: Guest House, Workshop, Storage, Barn(s)
Waterfront Details
Water Front Features: Pond
Community Features
Security Features: Smoke Detector(s)
Driving Directions
Go north on Hwy 349 in Old Town and turn left on NE 206 Ave, turn right onto NE 592 St, turn left on NE 209 Ave, which turns into NE 543 St, turn right on NE 544 St, turn left on NE 305 Ave, turn left on NE 290 Ave and look for Drummond Realty signs. Easiest just to program address into GPS: 303 NE 290 Ave.
Financial Considerations
Terms: Cash,Conventional,FHA,USDA Loan,VA Loan
Tax/Property ID: 32-09-13-4492-0002-0410
Tax Amount: 4151.5
Tax Year: 2025
A broker reciprocity listing courtesy: DRUMMOND REALTY, INC.
Based on information provided by Stellar MLS as distributed by the MLS GRID. Information from the Internet Data Exchange is provided exclusively for consumers’ personal, non-commercial use, and such information may not be used for any purpose other than to identify prospective properties consumers may be interested in purchasing. This data is deemed reliable but is not guaranteed to be accurate by Edina Realty, Inc., or by the MLS. Edina Realty, Inc., is not a multiple listing service (MLS), nor does it offer MLS access.
Copyright 2026 Stellar MLS as distributed by the MLS GRID. All Rights Reserved.
Payment Calculator
Interest rate and annual percentage rate (APR) are based on current market conditions, are for informational purposes only, are subject to change without notice and may be subject to pricing add-ons related to property type, loan amount, loan-to-value, credit score and other variables. Estimated closing costs used in the APR calculation are assumed to be paid by the borrower at closing. If the closing costs are financed, the loan, APR and payment amounts will be higher. If the down payment is less than 20%, mortgage insurance may be required and could increase the monthly payment and APR. Contact us for details. Additional loan programs may be available. Accuracy is not guaranteed, and all products may not be available in all borrower's geographical areas and are based on their individual situation. This is not a credit decision or a commitment to lend.
Sales History & Tax Summary for 303 NE 290th Avenue
Sales History
| Date | Price | Change |
|---|---|---|
| Currently not available. | ||
Tax Summary
| Tax Year | Estimated Market Value | Total Tax |
|---|---|---|
| Currently not available. | ||
Data powered by ATTOM Data Solutions. Copyright© 2026. Information deemed reliable but not guaranteed.
Schools
Schools nearby 303 NE 290th Avenue
| Schools in attendance boundaries | Grades | Distance | Rating |
|---|---|---|---|
| Loading... | |||
| Schools nearby | Grades | Distance | Rating |
|---|---|---|---|
| Loading... | |||
Data powered by ATTOM Data Solutions. Copyright© 2026. Information deemed reliable but not guaranteed.
The schools shown represent both the assigned schools and schools by distance based on local school and district attendance boundaries. Attendance boundaries change based on various factors and proximity does not guarantee enrollment eligibility. Please consult your real estate agent and/or the school district to confirm the schools this property is zoned to attend. Information is deemed reliable but not guaranteed.
SchoolDigger ® Rating
The SchoolDigger rating system is a 1-5 scale with 5 as the highest rating. SchoolDigger ranks schools based on test scores supplied by each state's Department of Education. They calculate an average standard score by normalizing and averaging each school's test scores across all tests and grades.
Coming soon properties will soon be on the market, but are not yet available for showings.