3038 Ashland Lane S Kissimmee, FL 34741
For Sale MLS# O6335009
3 beds 3 baths 2,086 sq ft Townhouse/Twinhome
Details for 3038 Ashland Lane S
MLS# O6335009
Description for 3038 Ashland Lane S, Kissimmee, FL, 34741
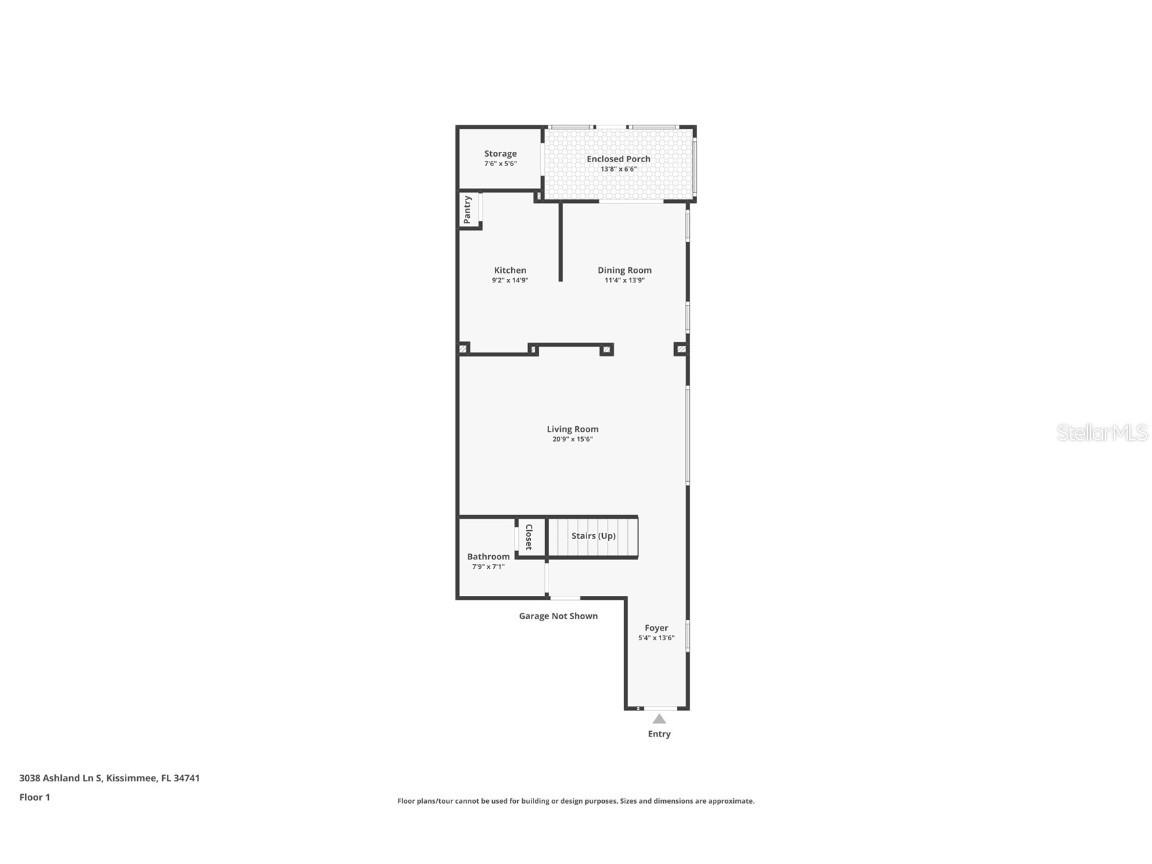
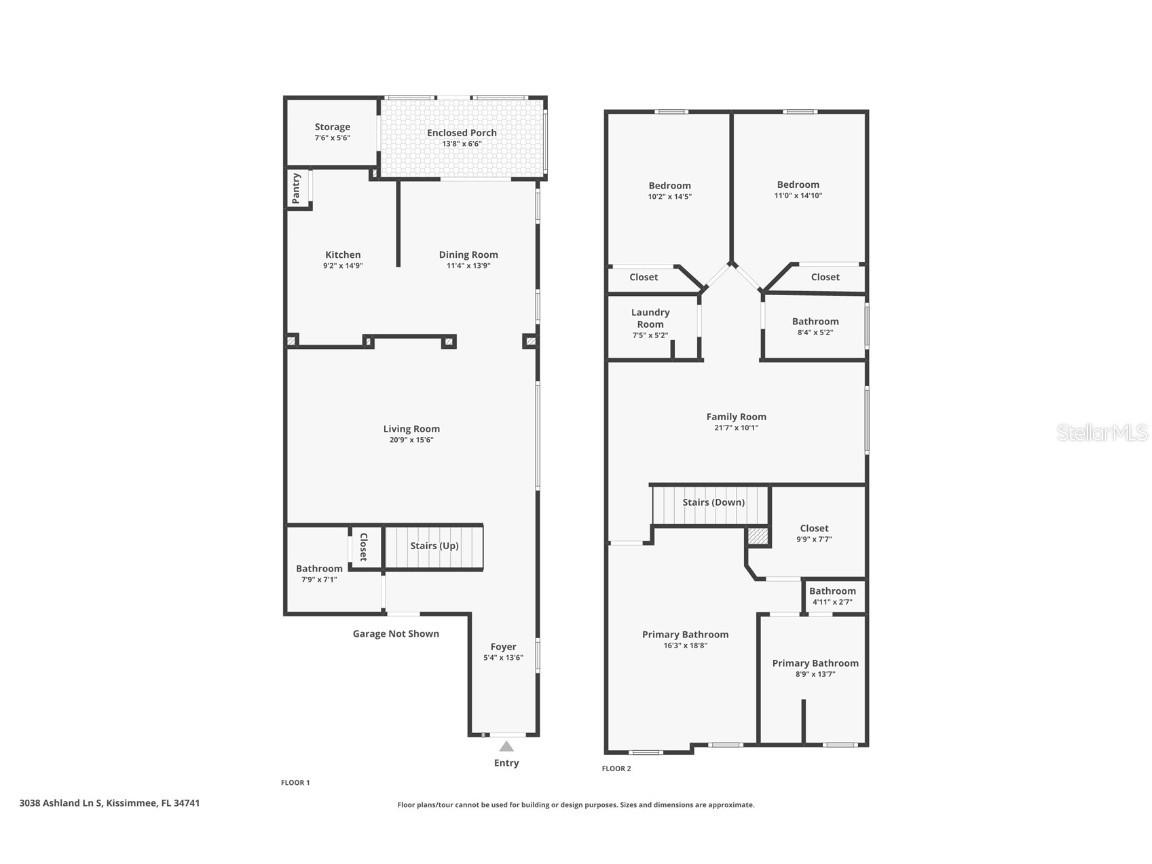
Welcome to this spacious corner-unit townhome, one of the largest floor plans in the community! Featuring 3 bedrooms, 2.5 bathrooms, and a 1-car garage, this home has been well maintained and is move-in ready. The first floor offers an extra-large living room, a bright eat-in kitchen, and a convenient half bath—perfect for entertaining. Upstairs, you’ll find all bedrooms, including a massive primary suite with a walk-in closet and ensuite bath, as well as two additional bedrooms, a second full bath, a large loft/office area, and a laundry room. Enjoy the outdoors in the screened-in lanai, which backs up to the community wall for added privacy, and take advantage of the oversized storage closet. The Townhomes of Flora Ridge is a well-kept gated community that offers a very LOW HOA fee that includes ALL of the exterior maintenance. It is within walking distance to The Loop Shopping Plaza, Publix, dining, and more, with easy access to major highways, the airport, the theme parks, and endless shopping and entertainment options. Call for additional information and to schedule your showing today!
Listing Information
Property Type: Residential, Townhouse
Status: Active
Bedrooms: 3
Bathrooms: 3
Lot Size: 0.04 Acres
Square Feet: 2,086 sq ft
Year Built: 2005
Garage: Yes
Stories: 2 Story
Construction: Block,Stucco
Subdivision: Townhomes Of Flora Ridge Ph 2
Foundation: Slab
County: Osceola
Room Information
Main Floor
Kitchen: 11x14
Living Room: 16x21
Upper Floor
Primary Bedroom: 12x18
Bathrooms
Full Baths: 2
1/2 Baths: 1
Additonal Room Information
Laundry: Laundry Room
Interior Features
Appliances: Washer, Range, Refrigerator, Dishwasher, Dryer
Flooring: Carpet,Tile
Additional Interior Features: Ceiling Fan(s), Walk-In Closet(s), Eat-In Kitchen, Upper Level Primary
Utilities
Water: Public
Sewer: Public Sewer
Other Utilities: Electricity Connected,Municipal Utilities,Water Connected
Cooling: Central Air, Ceiling Fan(s)
Heating: Central
Exterior / Lot Features
Attached Garage: Attached Garage
Garage Spaces: 1
Roof: Tile
Pool: Community
Lot Dimensions: 23x67
Additional Exterior/Lot Features: Lighting, Other
Community Features
Community Features: Sidewalks, Pool, Tennis Court(s), Playground, Gated
Security Features: Gated Community
HOA Dues Include: Maintenance Grounds, Maintenance Structure, Pool(s)
Homeowners Association: Yes
HOA Dues: $233 / Monthly
Driving Directions
From W Osceola Pkwy, turn left onto Dyer Blvd. Turn right onto Flora Blvd. Turn right onto Thornton Dr. Turn right at the 1st cross street onto Ashland Ln S. The house will be on the RIGHT.
Financial Considerations
Terms: Cash,Conventional,FHA,VA Loan
Tax/Property ID: 05-25-29-2241-0021-0060
Tax Amount: 4811.85
Tax Year: 2024
A broker reciprocity listing courtesy: BUSTAMANTE REAL ESTATE INC
Based on information provided by Stellar MLS as distributed by the MLS GRID. Information from the Internet Data Exchange is provided exclusively for consumers’ personal, non-commercial use, and such information may not be used for any purpose other than to identify prospective properties consumers may be interested in purchasing. This data is deemed reliable but is not guaranteed to be accurate by Edina Realty, Inc., or by the MLS. Edina Realty, Inc., is not a multiple listing service (MLS), nor does it offer MLS access.
Copyright 2026 Stellar MLS as distributed by the MLS GRID. All Rights Reserved.
Payment Calculator
Interest rate and annual percentage rate (APR) are based on current market conditions, are for informational purposes only, are subject to change without notice and may be subject to pricing add-ons related to property type, loan amount, loan-to-value, credit score and other variables. Estimated closing costs used in the APR calculation are assumed to be paid by the borrower at closing. If the closing costs are financed, the loan, APR and payment amounts will be higher. If the down payment is less than 20%, mortgage insurance may be required and could increase the monthly payment and APR. Contact us for details. Additional loan programs may be available. Accuracy is not guaranteed, and all products may not be available in all borrower's geographical areas and are based on their individual situation. This is not a credit decision or a commitment to lend.
Sales History & Tax Summary for 3038 Ashland Lane S
Sales History
| Date | Price | |
|---|---|---|
| Currently not available. | ||
Tax Summary
| Tax Year | Estimated Market Value | Total Tax |
|---|---|---|
| Currently not available. | ||
Data powered by ATTOM Data Solutions. Copyright© 2026. Information deemed reliable but not guaranteed.
Schools
Schools nearby 3038 Ashland Lane S
| Schools in attendance boundaries | Grades | Distance | Rating |
|---|---|---|---|
| Loading... | |||
| Schools nearby | Grades | Distance | Rating |
|---|---|---|---|
| Loading... | |||
Data powered by ATTOM Data Solutions. Copyright© 2026. Information deemed reliable but not guaranteed.
The schools shown represent both the assigned schools and schools by distance based on local school and district attendance boundaries. Attendance boundaries change based on various factors and proximity does not guarantee enrollment eligibility. Please consult your real estate agent and/or the school district to confirm the schools this property is zoned to attend. Information is deemed reliable but not guaranteed.
SchoolDigger ® Rating
The SchoolDigger rating system is a 1-5 scale with 5 as the highest rating. SchoolDigger ranks schools based on test scores supplied by each state's Department of Education. They calculate an average standard score by normalizing and averaging each school's test scores across all tests and grades.
Coming soon properties will soon be on the market, but are not yet available for showings.