3042 Wild Pepper Avenue Deltona, FL 32725
For Sale MLS# O6354908
3 beds 2 baths 1,282 sq ft Single Family
Details for 3042 Wild Pepper Avenue
MLS# O6354908
Description for 3042 Wild Pepper Avenue, Deltona, FL, 32725
Welcome to 3042 Wild Pepper Ave – Your Peaceful Retreat in Deltona, FL! NEW ROOF before closing!! Nestled beneath a large, gorgeous shade tree in a quiet neighborhood, this charming single-story ranch-style home offers 3 cozy bedrooms and 2 bathrooms, ideal for comfortable living. The spacious primary suite features a walk-in closet and an en-suite bath complete with dual sinks, a relaxing soaking tub, and a separate shower. Step inside to a warm and welcoming atmosphere, with large windows that flood the space with natural light and offer tranquil views of the lush greenery outside. Enjoy versatile living areas including a separate formal dining room, a casual dinette, and a spacious living room—perfect for everyday living or entertaining guests. The kitchen is a chef’s delight, featuring 42-inch wood cabinets with crown molding and ample counter space. Additional highlights include an inside laundry room, a two-car garage, and a partially fenced backyard offering privacy and room to enjoy the outdoors. Don’t miss this opportunity to own a lovely home filled with timeless charm, modern comfort, and the beauty of a grand tree that welcomes you home.
Listing Information
Property Type: Residential, Single Family Residence
Status: Active
Bedrooms: 3
Bathrooms: 2
Lot Size: 0.16 Acres
Square Feet: 1,282 sq ft
Year Built: 2005
Garage: Yes
Stories: 1 Story
Construction: Stucco
Subdivision: Arbor Ridge Unit 03
Foundation: Slab
County: Volusia
School Information
Elementary: Timbercrest Elem
Middle: Galaxy Middle
High: Deltona High
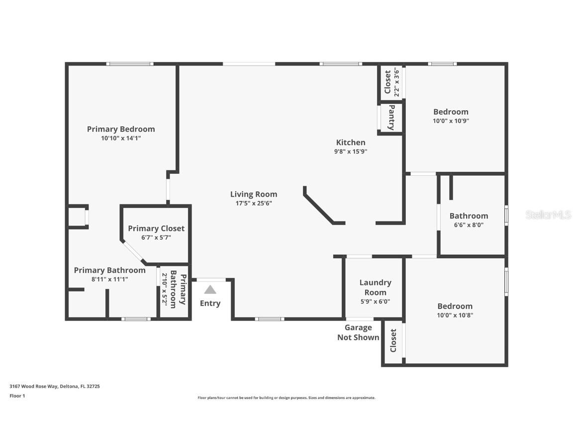
Room Information
Main Floor
Laundry: 6x5.9
Bathroom 2: 8x6.6
Bedroom 3: 10.8x10.1
Bedroom 2: 10.9x10.1
Primary Bathroom: x8.11
Primary Bedroom: 14.1x10.1
Kitchen: 15.9x9.8
Dining Room:
Living Room: 25.6x17.5
Bathrooms
Full Baths: 2
Additonal Room Information
Laundry: Laundry Room
Interior Features
Appliances: Dishwasher, Microwave, Range, Refrigerator
Flooring: Carpet,Tile
Doors/Windows: Blinds, Window Treatments
Additional Interior Features: Split Bedrooms, Open Floorplan, Main Level Primary
Utilities
Water: Public
Sewer: Public Sewer
Other Utilities: Electricity Connected
Cooling: Central Air
Heating: Central
Exterior / Lot Features
Attached Garage: Attached Garage
Garage Spaces: 2
Roof: Shingle
Pool: Association, Community
Additional Exterior/Lot Features: Rear Porch, Landscaped
Community Features
Community Features: Pool, Sidewalks, Tennis Court(s), Playground
Association Amenities: Pool, Playground, Tennis Court(s)
Homeowners Association: Yes
HOA Dues: $185 / Semi-Annually
Driving Directions
Start in downtown Orlando and head north-east to get onto I-4 East toward Daytona/Deltona. Stay on I-4 East for about 20-25 miles until you reach the Deltona area. Take the exit for Deltona/Howland Blvd (or the appropriate exit toward the 32725 ZIP area). From the exit, follow local roads toward the Arbor Ridge subdivision. Turn as needed to reach Wild Pepper Ave. Arrive at 3042 Wild Pepper Ave in the Arbor Ridge subdivision of Deltona.
Financial Considerations
Terms: Cash,Conventional,FHA,VA Loan
Tax/Property ID: 8105-23-00-2130
Tax Amount: 4846
Tax Year: 2024
A broker reciprocity listing courtesy: REAL BROKER, LLC
Based on information provided by Stellar MLS as distributed by the MLS GRID. Information from the Internet Data Exchange is provided exclusively for consumers’ personal, non-commercial use, and such information may not be used for any purpose other than to identify prospective properties consumers may be interested in purchasing. This data is deemed reliable but is not guaranteed to be accurate by Edina Realty, Inc., or by the MLS. Edina Realty, Inc., is not a multiple listing service (MLS), nor does it offer MLS access.
Copyright 2026 Stellar MLS as distributed by the MLS GRID. All Rights Reserved.
Payment Calculator
Interest rate and annual percentage rate (APR) are based on current market conditions, are for informational purposes only, are subject to change without notice and may be subject to pricing add-ons related to property type, loan amount, loan-to-value, credit score and other variables. Estimated closing costs used in the APR calculation are assumed to be paid by the borrower at closing. If the closing costs are financed, the loan, APR and payment amounts will be higher. If the down payment is less than 20%, mortgage insurance may be required and could increase the monthly payment and APR. Contact us for details. Additional loan programs may be available. Accuracy is not guaranteed, and all products may not be available in all borrower's geographical areas and are based on their individual situation. This is not a credit decision or a commitment to lend.
Sales History & Tax Summary for 3042 Wild Pepper Avenue
Sales History
| Date | Price | |
|---|---|---|
| Currently not available. | ||
Tax Summary
| Tax Year | Estimated Market Value | Total Tax |
|---|---|---|
| Currently not available. | ||
Data powered by ATTOM Data Solutions. Copyright© 2026. Information deemed reliable but not guaranteed.
Schools
Schools nearby 3042 Wild Pepper Avenue
| Schools in attendance boundaries | Grades | Distance | Rating |
|---|---|---|---|
| Loading... | |||
| Schools nearby | Grades | Distance | Rating |
|---|---|---|---|
| Loading... | |||
Data powered by ATTOM Data Solutions. Copyright© 2026. Information deemed reliable but not guaranteed.
The schools shown represent both the assigned schools and schools by distance based on local school and district attendance boundaries. Attendance boundaries change based on various factors and proximity does not guarantee enrollment eligibility. Please consult your real estate agent and/or the school district to confirm the schools this property is zoned to attend. Information is deemed reliable but not guaranteed.
SchoolDigger ® Rating
The SchoolDigger rating system is a 1-5 scale with 5 as the highest rating. SchoolDigger ranks schools based on test scores supplied by each state's Department of Education. They calculate an average standard score by normalizing and averaging each school's test scores across all tests and grades.
Coming soon properties will soon be on the market, but are not yet available for showings.