3049 Caribbean Soul Drive Kissimmee, FL 34747
For Sale MLS# S5132614
4 beds 3 baths 1,719 sq ft Townhouse/Twinhome
Details for 3049 Caribbean Soul Drive
MLS# S5132614
Description for 3049 Caribbean Soul Drive, Kissimmee, FL, 34747
Welcome to your ultimate getaway at 3049 Caribbean Soul Drive! This fully furnished, professionally decorated 4-bedroom, 3-bathroom townhome is the epitome of island living. As an end unit, you'll enjoy extra privacy and an abundance of natural light. Step outside and take in the serene water views, or simply walk a few steps to one of the community's beautiful pools. This property is perfect as a vacation home or an investment property, with its vibrant, Key West-style architecture and turnkey setup, complete with all the furniture, art, and decor you need to start enjoying the laid-back lifestyle immediately. Situated within the Margaritaville Orlando Resort, this townhome offers a lifestyle of luxury and convenience. Residents and guests have access to an impressive array of amenities, including multiple resort-style pools with a lazy river and water slide, the St. Somewhere Spa, a 24-hour fitness center, and a variety of on-site restaurants and bars like Euphoria Fish House and the Salty Rim Bar & Grill. The resort also features the Promenade at Sunset Walk, a vibrant destination for shopping, dining, and entertainment, and provides a complimentary shuttle service to Walt Disney World theme parks. This prime location places you close to Central Florida's world-famous attractions, premier dining, and top-tier shopping, making it a perfect retreat for both relaxation and adventure.
Listing Information
Property Type: Residential, Townhouse
Status: Active
Bedrooms: 4
Bathrooms: 3
Lot Size: 0.03 Acres
Square Feet: 1,719 sq ft
Year Built: 2022
Stories: 2 Story
Construction: Block,Concrete,Stucco
Subdivision: Margaritaville, Rolling Oaks
Foundation: Slab
County: Osceola
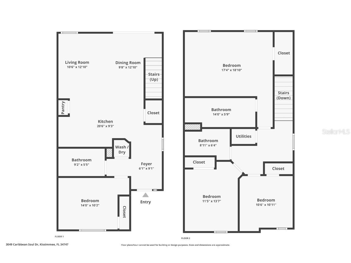
Room Information
Main Floor
Bedroom 4: 10x14
Dining Room: 12x9
Living Room: 12x10
Kitchen: 9x20
Upper Floor
Bedroom 3: 10x10
Bedroom 2: 13x11
Primary Bedroom: 18x17
Bathrooms
Full Baths: 3
Additonal Room Information
Laundry: Laundry Closet
Interior Features
Appliances: Washer, Range, Refrigerator, Dishwasher, Dryer, Microwave
Flooring: Tile
Additional Interior Features: Ceiling Fan(s)
Utilities
Water: Public
Sewer: Public Sewer
Other Utilities: Cable Available,Electricity Available,High Speed Internet Available,Municipal Utilities,Phone Available,Water Available
Cooling: Ceiling Fan(s), Central Air
Heating: Electric, Central
Exterior / Lot Features
Parking Description: Open
Roof: Shingle
Pool: Community
Lot View: Water
Community Features
Community Features: Sidewalks, Pool, Restaurant, Fitness
HOA Dues Include: Other, Internet, Cable TV, Trash, Security, Pool(s), Maintenance Grounds, Pest Control
Homeowners Association: Yes
HOA Dues: $600 / Monthly
Driving Directions
Take FL 429 North to Exit 192. Head east on 192 take a right onto Inspiration Drive.
Financial Considerations
Terms: Cash,Conventional,FHA,VA Loan
Tax/Property ID: 04-25-27-5016-0001-0630
Tax Amount: 9368.68
Tax Year: 2024
A broker reciprocity listing courtesy: TEAM DONOVAN
Based on information provided by Stellar MLS as distributed by the MLS GRID. Information from the Internet Data Exchange is provided exclusively for consumers’ personal, non-commercial use, and such information may not be used for any purpose other than to identify prospective properties consumers may be interested in purchasing. This data is deemed reliable but is not guaranteed to be accurate by Edina Realty, Inc., or by the MLS. Edina Realty, Inc., is not a multiple listing service (MLS), nor does it offer MLS access.
Copyright 2025 Stellar MLS as distributed by the MLS GRID. All Rights Reserved.
Payment Calculator
Interest rate and annual percentage rate (APR) are based on current market conditions, are for informational purposes only, are subject to change without notice and may be subject to pricing add-ons related to property type, loan amount, loan-to-value, credit score and other variables. Estimated closing costs used in the APR calculation are assumed to be paid by the borrower at closing. If the closing costs are financed, the loan, APR and payment amounts will be higher. If the down payment is less than 20%, mortgage insurance may be required and could increase the monthly payment and APR. Contact us for details. Additional loan programs may be available. Accuracy is not guaranteed, and all products may not be available in all borrower's geographical areas and are based on their individual situation. This is not a credit decision or a commitment to lend.
Sales History & Tax Summary for 3049 Caribbean Soul Drive
Sales History
| Date | Price | Change |
|---|---|---|
| Currently not available. | ||
Tax Summary
| Tax Year | Estimated Market Value | Total Tax |
|---|---|---|
| Currently not available. | ||
Data powered by ATTOM Data Solutions. Copyright© 2025. Information deemed reliable but not guaranteed.
Schools
Schools nearby 3049 Caribbean Soul Drive
| Schools in attendance boundaries | Grades | Distance | Rating |
|---|---|---|---|
| Loading... | |||
| Schools nearby | Grades | Distance | Rating |
|---|---|---|---|
| Loading... | |||
Data powered by ATTOM Data Solutions. Copyright© 2025. Information deemed reliable but not guaranteed.
The schools shown represent both the assigned schools and schools by distance based on local school and district attendance boundaries. Attendance boundaries change based on various factors and proximity does not guarantee enrollment eligibility. Please consult your real estate agent and/or the school district to confirm the schools this property is zoned to attend. Information is deemed reliable but not guaranteed.
SchoolDigger ® Rating
The SchoolDigger rating system is a 1-5 scale with 5 as the highest rating. SchoolDigger ranks schools based on test scores supplied by each state's Department of Education. They calculate an average standard score by normalizing and averaging each school's test scores across all tests and grades.
Coming soon properties will soon be on the market, but are not yet available for showings.