305 Brigadoon Circle Leesburg, FL 34788
For Sale MLS# G5104886
2 beds 2 baths 1,270 sq ft Single Family
Details for 305 Brigadoon Circle
MLS# G5104886
Description for 305 Brigadoon Circle, Leesburg, FL, 34788
BACK ON THE MARKET NO FAULT OF PROPERTY. Don’t miss your chance to own the perfect Florida retreat in one of the area’s most sought-after 55+ communities. This beautifully cared-for 2-bedroom, 2-bath home with a roomy 2-car garage sits proudly on a hill, giving you a sense of privacy and elevation you won’t find in most neighborhoods — and with no rear neighbors, it feels like your own peaceful sanctuary. Step inside and immediately feel the comfort of a home that’s been truly loved, complete with a new roof, new HVAC, and new hot water tank — all the big-ticket items already done for you. Just move in and relax. And the lifestyle? It’s unbeatable. Enjoy indoor and outdoor pools for year-round swimming, tennis and pickleball courts, a lively clubhouse, and endless opportunities to stay active, social, and connected. Located perfectly between two major hospitals, close to shopping, dining, and major roadways, you’ll have convenience at your fingertips while coming home to peaceful, resort-style living. Homes like this don’t come along often — and when they do, they go fast. You’re going to want to make this one???????????????????????????????????????? yours.
Listing Information
Property Type: Residential, Single Family Residence
Status: Active
Bedrooms: 2
Bathrooms: 2
Lot Size: 0.16 Acres
Square Feet: 1,270 sq ft
Year Built: 1987
Garage: Yes
Stories: 1 Story
Construction: Vinyl Siding,Wood Frame
Subdivision: Scottish Highlands Condo Ph C
Foundation: Slab
County: Lake
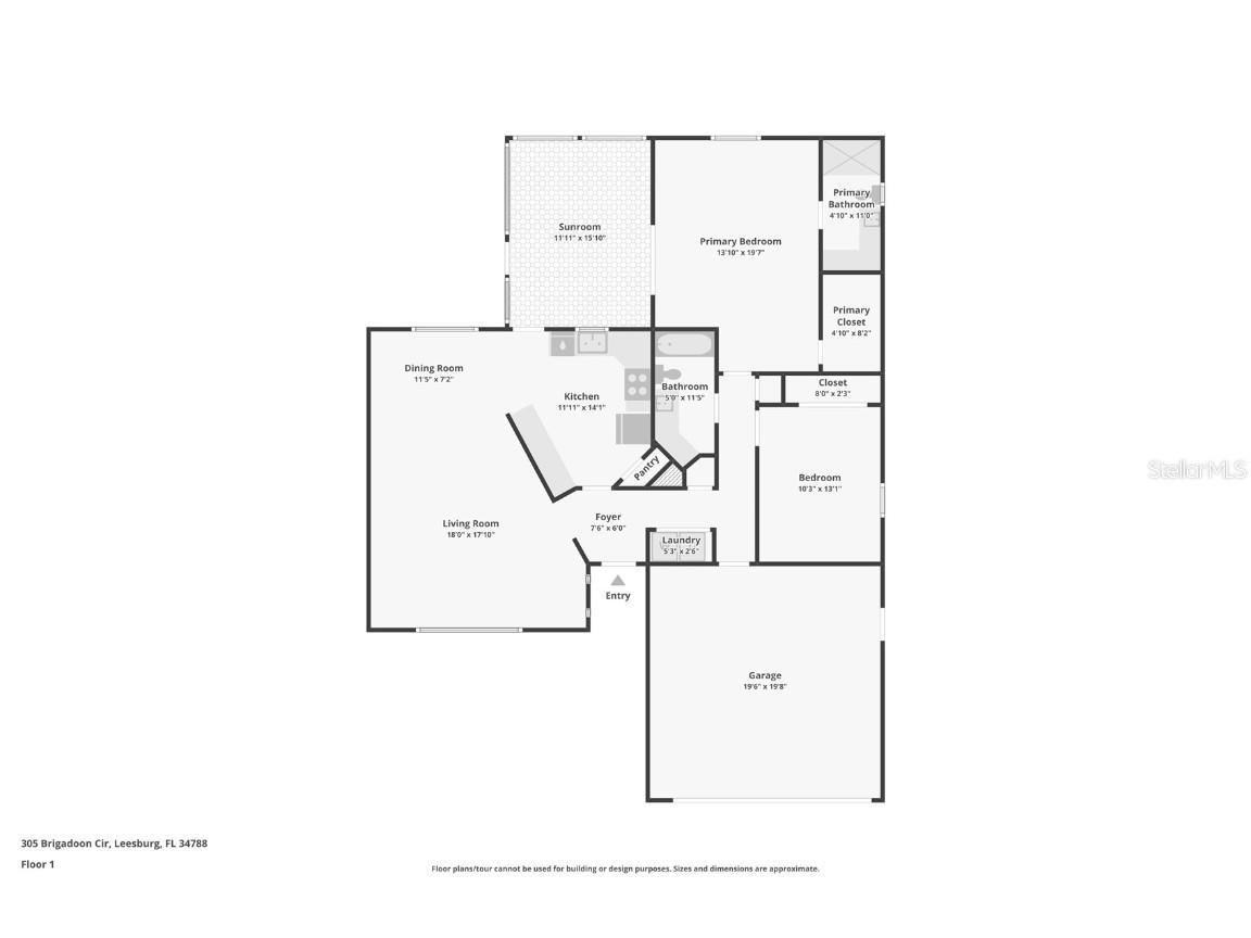
Room Information
Main Floor
Porch: 15.1x11.11
Bedroom 2: 13.1x10.3
Primary Bathroom: 11x4.1
Primary Bedroom: 19.7x13.1
Laundry: 2.6x5.3
Foyer: 6x7.6
Living Room: 17.1x18
Dining Room: 7.2x111.5
Kitchen: 14.1x11.11
Bathrooms
Full Baths: 2
Additonal Room Information
Laundry: Inside
Interior Features
Appliances: Microwave, Range, Refrigerator, Dishwasher, Disposal, Dryer, Washer, Gas Water Heater
Flooring: Carpet,Ceramic Tile
Doors/Windows: Window Treatments
Additional Interior Features: Ceiling Fan(s), Vaulted Ceiling(s), Window Treatments, Walk-In Closet(s)
Utilities
Water: Public
Sewer: Private Sewer
Other Utilities: Cable Connected,Electricity Connected,Natural Gas Connected,High Speed Internet Available,Sewer Connected,Underground Utilities,Water Connected
Cooling: Ceiling Fan(s), Central Air
Heating: Central, Gas
Exterior / Lot Features
Attached Garage: Attached Garage
Garage Spaces: 2
Roof: Shingle
Pool: Association, Community
Additional Exterior/Lot Features: French Patio Doors, Sprinkler/Irrigation, Buyer Approval Required
Community Features
Community Features: Fitness, Golf Carts OK, Recreation Area, Pool, Tennis Court(s), Clubhouse
Security Features: Key Card Entry, Lobby Secured
Association Amenities: Pickleball, Tennis Court(s), Pool, Recreation Facilities, Storage
HOA Dues Include: Maintenance Grounds, Reserve Fund, Road Maintenance, Recreation Facilities, Sewer, Cable TV, Internet, Association Management, Maintenance Structure
Homeowners Association: Yes
HOA Dues: $215 / Monthly
Driving Directions
From Tavares on 441 N turn right onto CR473 turn left onto Scottish Highlands Blvd. turn right onto Brigadoon, stay straight, home will be on the right
Financial Considerations
Terms: Cash,Conventional
Tax/Property ID: 11-19-25-0061-000-005C0
Tax Amount: 1417.42
Tax Year: 2025
A broker reciprocity listing courtesy: COLDWELL BANKER VANGUARD EDGE
Based on information provided by Stellar MLS as distributed by the MLS GRID. Information from the Internet Data Exchange is provided exclusively for consumers’ personal, non-commercial use, and such information may not be used for any purpose other than to identify prospective properties consumers may be interested in purchasing. This data is deemed reliable but is not guaranteed to be accurate by Edina Realty, Inc., or by the MLS. Edina Realty, Inc., is not a multiple listing service (MLS), nor does it offer MLS access.
Copyright 2026 Stellar MLS as distributed by the MLS GRID. All Rights Reserved.
Payment Calculator
Interest rate and annual percentage rate (APR) are based on current market conditions, are for informational purposes only, are subject to change without notice and may be subject to pricing add-ons related to property type, loan amount, loan-to-value, credit score and other variables. Estimated closing costs used in the APR calculation are assumed to be paid by the borrower at closing. If the closing costs are financed, the loan, APR and payment amounts will be higher. If the down payment is less than 20%, mortgage insurance may be required and could increase the monthly payment and APR. Contact us for details. Additional loan programs may be available. Accuracy is not guaranteed, and all products may not be available in all borrower's geographical areas and are based on their individual situation. This is not a credit decision or a commitment to lend.
Sales History & Tax Summary for 305 Brigadoon Circle
Sales History
| Date | Price | |
|---|---|---|
| Currently not available. | ||
Tax Summary
| Tax Year | Estimated Market Value | Total Tax |
|---|---|---|
| Currently not available. | ||
Data powered by ATTOM Data Solutions. Copyright© 2026. Information deemed reliable but not guaranteed.
Schools
Schools nearby 305 Brigadoon Circle
| Schools in attendance boundaries | Grades | Distance | Rating |
|---|---|---|---|
| Loading... | |||
| Schools nearby | Grades | Distance | Rating |
|---|---|---|---|
| Loading... | |||
Data powered by ATTOM Data Solutions. Copyright© 2026. Information deemed reliable but not guaranteed.
The schools shown represent both the assigned schools and schools by distance based on local school and district attendance boundaries. Attendance boundaries change based on various factors and proximity does not guarantee enrollment eligibility. Please consult your real estate agent and/or the school district to confirm the schools this property is zoned to attend. Information is deemed reliable but not guaranteed.
SchoolDigger ® Rating
The SchoolDigger rating system is a 1-5 scale with 5 as the highest rating. SchoolDigger ranks schools based on test scores supplied by each state's Department of Education. They calculate an average standard score by normalizing and averaging each school's test scores across all tests and grades.
Coming soon properties will soon be on the market, but are not yet available for showings.