$360,000
3082 NE Top Terrace Arcadia, FL 34266
For Sale MLS# C7522628
3 beds 2 baths 1,388 sq ft Single Family
Details for 3082 NE Top Terrace
MLS# C7522628
Description for 3082 NE Top Terrace, Arcadia, FL, 34266
Under Construction. This is your chance to snag a home while it’s still in its “hard hat and tool belt” era… and watch it transform into something incredible. Sitting on over an acre, this three-bedroom, two-bathroom beauty gives you that sweet spot we all want: room to breathe, space to spread out, and still close enough to everything that matters. Concrete block construction. Durable metal roof. Built solid from the ground up so you can sleep easy when those Florida storms roll through. Step inside and you’ll find an open-concept layout that was designed for real life. The kitchen will feature a spacious pantry and overlooks the main living area, so whether you’re hosting friends, helping with homework at the island, or just enjoying a quiet night in, you’re always part of the action. The split floor plan keeps the primary suite tucked away as your own private retreat, while the two additional bedrooms sit on the opposite side of the home, perfect for guests, kids, or even a home office setup. And yes, there’s a full laundry room. Because convenience matters. Out back, you’ll have a patio just waiting for rocking chairs, weekend barbecues, and those “let’s sit outside a little longer” kind of evenings. A full parking pad and sidewalk leading to the front door make everyday life practical and welcoming from the moment you pull in. And let’s talk about the builder. This home is being crafted by one of our area’s most trusted local builders, known for quality work, solid reputation, and a real commitment to this community. That matters. When it’s complete, you’ll have everything new. New roof. New systems. New finishes. Lower insurance. Lower maintenance. Zero honey-do list waiting on you. If you’ve been thinking about new construction, this is your sign. Lock it in now and enjoy the best part… watching your future home come to life before your eyes. (Photos in pictures are of another build that is similar in finishes and outside appearance but on a different property.)
Listing Information
Property Type: Residential, Single Family Residence
Status: Active
Bedrooms: 3
Bathrooms: 2
Lot Size: 1.09 Acres
Square Feet: 1,388 sq ft
Year Built: 2026
Stories: 1 Story
Construction: Block
Construction Display: New Construction
Subdivision: N/A
Builder: Jewel Contracting
Foundation: Concrete Perimeter
County: Desoto
Construction Status: Under Construction
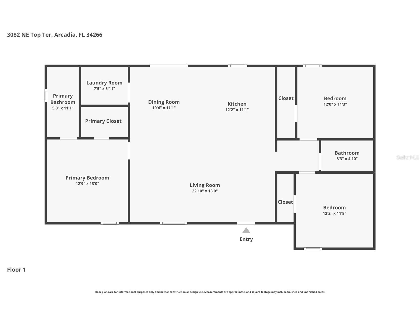
Room Information
Main Floor
Bedroom 3:
Bedroom 2:
Primary Bedroom:
Living Room:
Dining Room:
Kitchen:
Bathrooms
Full Baths: 2
Additonal Room Information
Laundry: Laundry Room, Inside
Interior Features
Appliances: Microwave, Range, Refrigerator
Flooring: Luxury Vinyl
Additional Interior Features: Eat-In Kitchen, Walk-In Closet(s), Ceiling Fan(s), Vaulted Ceiling(s), Open Floorplan, Solid Surface Counters, Stone Counters, Main Level Primary
Utilities
Water: Well
Sewer: Septic Tank
Other Utilities: Electricity Connected
Cooling: Ceiling Fan(s), Central Air
Heating: Central
Exterior / Lot Features
Roof: Metal
Lot View: Trees/Woods
Additional Exterior/Lot Features: Lighting, Patio, Outside City Limits
Driving Directions
Take HWY 17 N, Turn Right onto McIntyre St, Turn Left onto Moore Ave, Turn Right onto Edward Dr, Turn Left onto Top Terr, Property will be on Right.
Financial Considerations
Terms: Cash,Conventional,FHA,USDA Loan,VA Loan
Tax/Property ID: 04-37-25-0000-0075-0030
Tax Amount: 322.94
Tax Year: 2025
A broker reciprocity listing courtesy: EXP REALTY LLC
Based on information provided by Stellar MLS as distributed by the MLS GRID. Information from the Internet Data Exchange is provided exclusively for consumers’ personal, non-commercial use, and such information may not be used for any purpose other than to identify prospective properties consumers may be interested in purchasing. This data is deemed reliable but is not guaranteed to be accurate by Edina Realty, Inc., or by the MLS. Edina Realty, Inc., is not a multiple listing service (MLS), nor does it offer MLS access.
Copyright 2026 Stellar MLS as distributed by the MLS GRID. All Rights Reserved.
Payment Calculator
Interest rate and annual percentage rate (APR) are based on current market conditions, are for informational purposes only, are subject to change without notice and may be subject to pricing add-ons related to property type, loan amount, loan-to-value, credit score and other variables. Estimated closing costs used in the APR calculation are assumed to be paid by the borrower at closing. If the closing costs are financed, the loan, APR and payment amounts will be higher. If the down payment is less than 20%, mortgage insurance may be required and could increase the monthly payment and APR. Contact us for details. Additional loan programs may be available. Accuracy is not guaranteed, and all products may not be available in all borrower's geographical areas and are based on their individual situation. This is not a credit decision or a commitment to lend.
Sales History & Tax Summary for 3082 NE Top Terrace
Sales History
| Date | Price | |
|---|---|---|
| Currently not available. | ||
Tax Summary
| Tax Year | Estimated Market Value | Total Tax |
|---|---|---|
| Currently not available. | ||
Data powered by ATTOM Data Solutions. Copyright© 2026. Information deemed reliable but not guaranteed.
Schools
Schools nearby 3082 NE Top Terrace
| Schools in attendance boundaries | Grades | Distance | Rating |
|---|---|---|---|
| Loading... | |||
| Schools nearby | Grades | Distance | Rating |
|---|---|---|---|
| Loading... | |||
Data powered by ATTOM Data Solutions. Copyright© 2026. Information deemed reliable but not guaranteed.
The schools shown represent both the assigned schools and schools by distance based on local school and district attendance boundaries. Attendance boundaries change based on various factors and proximity does not guarantee enrollment eligibility. Please consult your real estate agent and/or the school district to confirm the schools this property is zoned to attend. Information is deemed reliable but not guaranteed.
SchoolDigger ® Rating
The SchoolDigger rating system is a 1-5 scale with 5 as the highest rating. SchoolDigger ranks schools based on test scores supplied by each state's Department of Education. They calculate an average standard score by normalizing and averaging each school's test scores across all tests and grades.
Coming soon properties will soon be on the market, but are not yet available for showings.