$699,900
Off-Market Date: 11/11/202530850 Firewatch Way Pequot Lakes, MN 56472
Pending MLS# 6812280
5 beds 3 baths 3,277 sq ft Single Family
Details for 30850 Firewatch Way
MLS# 6812280
Description for 30850 Firewatch Way, Pequot Lakes, MN, 56472
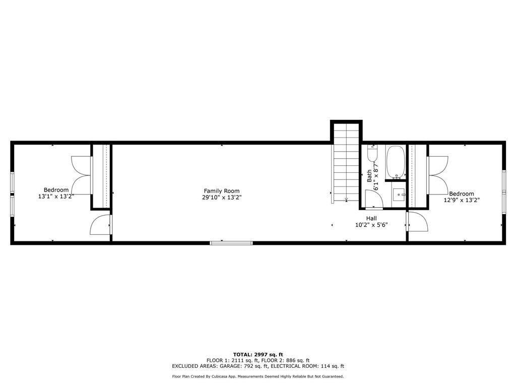
To be built. The foundation has been poured for this new construction home and is currently on the calendar to be built next. 5 bedroom 3 bathrooms with in-floor heat throughout the home and garage. Also offers natural gas forced air and central air. This is a prime lot surrounded by trees and wildlife at the end of the cul-de-sac. This is the Aspen model, and the attached photos are of the first Aspen in the development that has sold. This gorgeous two-story home is designed for flow and functionality with the open concept, 9-foot ceilings, butler's pantry, main floor primary ensuite, and gorgeous finishes. This development offers a mountain modern design; a natural blend of rustic, nature-inspired elements with clean lines, minimalist yet luxury features. Prime location nestled between Pequot Lakes and Breezy Point.Contact agent for further questions. Minor Modifications open for discussion. Buyers will choose color palette for cabinets, walls, flooring, lighting and tile. Choice of appliance brands and or allowance towards preference. Reach out with any questions! Approximate build time +/- 6 months
Listing Information
Property Type: Residential, Single Family
Status: Pending
Bedrooms: 5
Bathrooms: 3
Lot Size: 1 Acres
Square Feet: 3,277 sq ft
Year Built: 2025
Foundation: 2,263 sq ft
Garage: Yes
Stories: Modified Two Story
Construction Display: New Construction
Completion date: 2025-07-31T05:00:00Z
County: Crow Wing
Days On Market: 10
Construction Status: Under Construc/Spec Homes
School Information
District: 186 - Pequot Lakes
Room Information
Main Floor
Bedroom 1:
Bedroom 2:
Bedroom 3:
Dining Room:
Kitchen:
Living Room:
Office:
Upper Floor
Bedroom 4:
Bedroom 5:
Family Room:
Bathrooms
Full Baths: 2
3/4 Baths: 1
Additonal Room Information
Family: 2 or More,Family Room,Main Level
Dining: Informal Dining Room,Kitchen/Dining Room
Laundry: Main Level
Bath Description: 3/4 Primary,Main Floor Full Bath,Private Primary,Upper Level Full Bath
Interior Features
Square Footage above: 3,277 sq ft
Appliances: Wall Oven, Washer, Stainless Steel Appliances, Air-To-Air Exchanger, Dishwasher, Exhaust Fan/Hood, Dryer, Microwave, Range, Refrigerator
Basement: Other
Fireplaces: 1, Living Room, Gas Burning
Additional Interior Features: Ceiling Fan(s), Walk-In Closet, Main Floor Primary, Primary Bdr Suite, Kitchen Center Island, Paneled Doors, Tile Floors, Main Floor Laundry, Main Floor Bedroom
Utilities
Water: Private, Drilled
Sewer: Private, Tank with Drainage Field, Septic System Compliant - Yes
Cooling: Central
Heating: In-Floor Heating, Fireplace, Forced Air, Natural Gas
Exterior / Lot Features
Attached Garage: Attached Garage
Garage Spaces: 3
Parking Description: Insulated Garage, Attached Garage, Garage Dimensions - 32x24, Garage Sq Ft - 809.0
Exterior: Engineered Wood
Roof: Age 8 Years or Less, Asphalt Shingles, Pitched
Lot Dimensions: 330x137x190x120
Zoning: Residential-Single Family
Additional Exterior/Lot Features: Patio, Road Frontage - Cul De Sac, Private, Paved Streets, No Outlet/Dead End
Driving Directions
From Pequot Lakes head east on County Road 11 to the new development on your right. Turn right on Firewatch Way to the end of the cul-de-sac and #30850
Financial Considerations
Tax/Property ID: 29140625
Tax Amount: 66
Tax Year: 2024
HomeStead Description: Non-Homesteaded
A broker reciprocity listing courtesy: Northland Sotheby's International Realty
The data relating to real estate for sale on this web site comes in part from the Broker Reciprocity℠ Program of the Regional Multiple Listing Service of Minnesota, Inc. Real estate listings held by brokerage firms other than Edina Realty, Inc. are marked with the Broker Reciprocity℠ logo or the Broker Reciprocity℠ thumbnail and detailed information about them includes the name of the listing brokers. Edina Realty, Inc. is not a Multiple Listing Service (MLS), nor does it offer MLS access. This website is a service of Edina Realty, Inc., a broker Participant of the Regional Multiple Listing Service of Minnesota, Inc. IDX information is provided exclusively for consumers personal, non-commercial use and may not be used for any purpose other than to identify prospective properties consumers may be interested in purchasing. Open House information is subject to change without notice. Information deemed reliable but not guaranteed.
Copyright 2026 Regional Multiple Listing Service of Minnesota, Inc. All Rights Reserved.
Sales History & Tax Summary for 30850 Firewatch Way
Sales History
| Date | Price | |
|---|---|---|
| Currently not available. | ||
Tax Summary
| Tax Year | Estimated Market Value | Total Tax |
|---|---|---|
| Currently not available. | ||
Data powered by ATTOM Data Solutions. Copyright© 2026. Information deemed reliable but not guaranteed.
Schools
Schools nearby 30850 Firewatch Way
| Schools in attendance boundaries | Grades | Distance | Rating |
|---|---|---|---|
| Loading... | |||
| Schools nearby | Grades | Distance | Rating |
|---|---|---|---|
| Loading... | |||
Data powered by ATTOM Data Solutions. Copyright© 2026. Information deemed reliable but not guaranteed.
The schools shown represent both the assigned schools and schools by distance based on local school and district attendance boundaries. Attendance boundaries change based on various factors and proximity does not guarantee enrollment eligibility. Please consult your real estate agent and/or the school district to confirm the schools this property is zoned to attend. Information is deemed reliable but not guaranteed.
SchoolDigger ® Rating
The SchoolDigger rating system is a 1-5 scale with 5 as the highest rating. SchoolDigger ranks schools based on test scores supplied by each state's Department of Education. They calculate an average standard score by normalizing and averaging each school's test scores across all tests and grades.
Coming soon properties will soon be on the market, but are not yet available for showings.