$449,900
30892 376th Avenue Aitkin, MN 56431 - Elm Island
For Sale MLS# 7017721
3 beds 2 baths 862 sq ft Single Family
Details for 30892 376th Avenue
MLS# 7017721
Description for 30892 376th Avenue, Aitkin, MN, 56431 - Elm Island
Enjoy stunning lake views and a move-in ready lifestyle with this fully renovated 3-bedroom, 2-bath home on nearly a third of an acre along beautiful Elm Island Lake. The vaulted living room welcomes you with striking trapezoid windows framing serene water views, a floor-to-ceiling stone fireplace, and warm natural light that fills the space. The modern kitchen features granite countertops, new blackstainless-steel appliances, and a breakfast bar—perfect for casual dining and entertaining. Step outside to a spacious wraparound deck ideal for relaxing or gathering with friends, and take advantage of the level yard that offers an easy, gradual slope to the shoreline. With all new Anderson windows, LVP flooring, roof, furnace, on-demand water heater, and air exchange system, this four-season home combines comfort with efficiency. Complete with spray foam insulation and a 100-ft aluminum dock, this lakefront retreat is ready for you to move in and start enjoying lakeside living.
Listing Information
Property Type: Residential, Single Family, Cabin
Status: Active
Bedrooms: 3
Bathrooms: 2
Lot Size: 0.30 Acres
Square Feet: 862 sq ft
Year Built: 1960
Foundation: 772 sq ft
Stories: 1 Story
Subdivision: Leehaven
County: Aitkin
Days On Market: 43
Construction Status: Previously Owned
School Information
District: 8001 - Aitkin
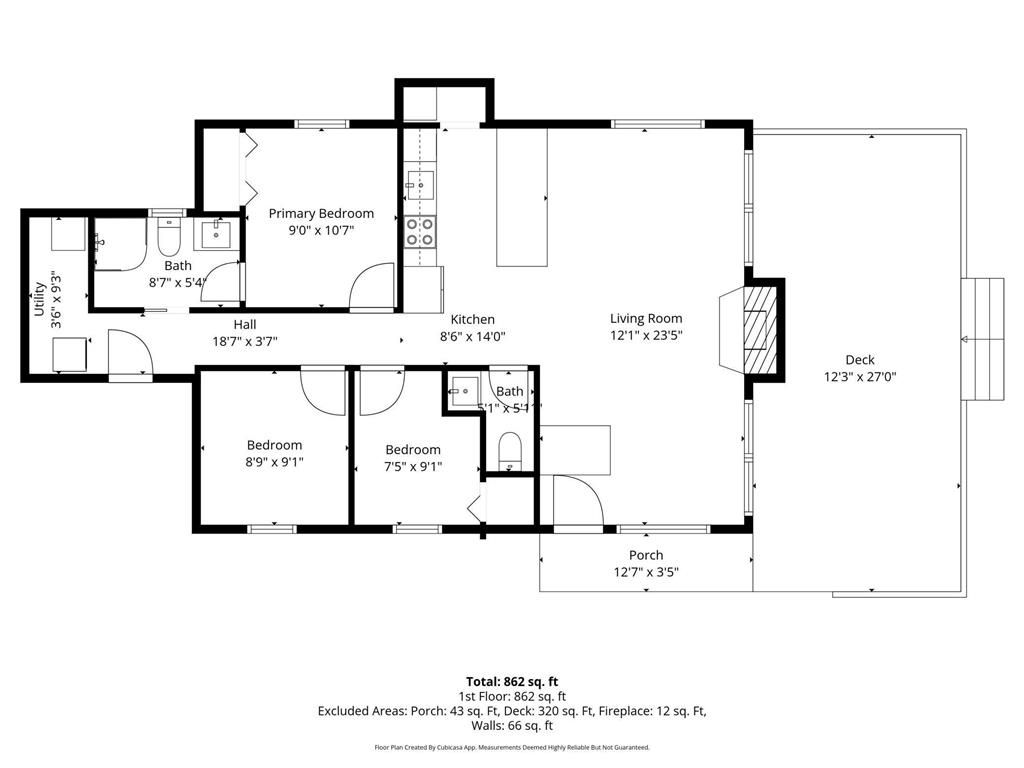
Room Information
Main Floor
Bathroom: 5'1" x 5'11"
Bedroom 1: 9'0" x 10'7"
Bedroom 2: 8'9" x 9'1"
Bedroom 3: 7'5" x 9'1"
Deck: 12'3" x 27'0"
Kitchen: 8'6" x 14'0"
Living Room: 12'1" x 23'5"
Porch: 12'7" x 3'5"
Primary Bath: 8'7" x 5'4"
Utility Room: 3'6" x 9'3"
Bathrooms
3/4 Baths: 1
1/2 Baths: 1
Additonal Room Information
Laundry: Main Level
Interior Features
Square Footage above: 862 sq ft
Appliances: Stainless Steel Appliances, Air-To-Air Exchanger
Fireplaces: 1, Living Room
Additional Interior Features: Natural Woodwork, 3 BR on One Level, All Living Facilities on One Level, Main Floor Bedroom, Renovated, Main Floor Primary
Utilities
Water: Well
Sewer: Septic System Compliant - Yes
Cooling: Central
Heating: Natural Gas, Forced Air
Exterior / Lot Features
Parking Description: gravel lot
Exterior: Fiber Board, Brick/Stone
Roof: Age 8 Years or Less
Lot View: East
Lot Dimensions: 65x201x50x203
Zoning: Residential-Single Family,Shoreline
Additional Exterior/Lot Features: Panoramic View, Deck, Balcony, Accessible Shoreline
Waterfront Details
Standard Water Body: Elm Island
DNR Lake ID: 01012300
Water Front Features: Lake Front
Water Frontage Length: 50 Ft.
Lake Acres: 656
Lake Depth: 25 Ft.
Lake Bottom: Reeds,Sand,Soft,Weeds
Waterfront Slope: Gradual
Driving Directions
From stoplight in Aitkin go South on Hwy 169 to East on Hwy 47 approximately 1 mile to Right on County Rd12 (Deer St) follow approximately 5.5 miles to Left on 309th Place, stay Right on 376th to property on left.
Financial Considerations
Tax/Property ID: 241076500
Tax Amount: 1286
Tax Year: 2025
HomeStead Description: Non-Homesteaded
A broker reciprocity listing courtesy: Real Broker, LLC
The data relating to real estate for sale on this web site comes in part from the Broker Reciprocity℠ Program of the Regional Multiple Listing Service of Minnesota, Inc. Real estate listings held by brokerage firms other than Edina Realty, Inc. are marked with the Broker Reciprocity℠ logo or the Broker Reciprocity℠ thumbnail and detailed information about them includes the name of the listing brokers. Edina Realty, Inc. is not a Multiple Listing Service (MLS), nor does it offer MLS access. This website is a service of Edina Realty, Inc., a broker Participant of the Regional Multiple Listing Service of Minnesota, Inc. IDX information is provided exclusively for consumers personal, non-commercial use and may not be used for any purpose other than to identify prospective properties consumers may be interested in purchasing. Open House information is subject to change without notice. Information deemed reliable but not guaranteed.
Copyright 2026 Regional Multiple Listing Service of Minnesota, Inc. All Rights Reserved.
Payment Calculator
Interest rate and annual percentage rate (APR) are based on current market conditions, are for informational purposes only, are subject to change without notice and may be subject to pricing add-ons related to property type, loan amount, loan-to-value, credit score and other variables. Estimated closing costs used in the APR calculation are assumed to be paid by the borrower at closing. If the closing costs are financed, the loan, APR and payment amounts will be higher. If the down payment is less than 20%, mortgage insurance may be required and could increase the monthly payment and APR. Contact us for details. Additional loan programs may be available. Accuracy is not guaranteed, and all products may not be available in all borrower's geographical areas and are based on their individual situation. This is not a credit decision or a commitment to lend.
Sales History & Tax Summary for 30892 376th Avenue
Sales History
| Date | Price | |
|---|---|---|
| Currently not available. | ||
Tax Summary
| Tax Year | Estimated Market Value | Total Tax |
|---|---|---|
| Currently not available. | ||
Data powered by ATTOM Data Solutions. Copyright© 2026. Information deemed reliable but not guaranteed.
Schools
Schools nearby 30892 376th Avenue
| Schools in attendance boundaries | Grades | Distance | Rating |
|---|---|---|---|
| Loading... | |||
| Schools nearby | Grades | Distance | Rating |
|---|---|---|---|
| Loading... | |||
Data powered by ATTOM Data Solutions. Copyright© 2026. Information deemed reliable but not guaranteed.
The schools shown represent both the assigned schools and schools by distance based on local school and district attendance boundaries. Attendance boundaries change based on various factors and proximity does not guarantee enrollment eligibility. Please consult your real estate agent and/or the school district to confirm the schools this property is zoned to attend. Information is deemed reliable but not guaranteed.
SchoolDigger ® Rating
The SchoolDigger rating system is a 1-5 scale with 5 as the highest rating. SchoolDigger ranks schools based on test scores supplied by each state's Department of Education. They calculate an average standard score by normalizing and averaging each school's test scores across all tests and grades.
Coming soon properties will soon be on the market, but are not yet available for showings.