$999,900
310 Coral Creek Drive Placida, FL 33946 - CORAL CREEK
For Sale MLS# D6144958
3 beds 2 baths 2,452 sq ft Single Family
Details for 310 Coral Creek Drive
MLS# D6144958
Description for 310 Coral Creek Drive, Placida, FL, 33946 - CORAL CREEK
JUST - WOW! What a spectacular panoramic view of Coral Creek, as soon as you enter! Coral Creek is one of the most pristine and natural bodies of water in this entire area! And it's not just about the view - This stunning spacious home is being sold FURNISHED (with just a couple of exceptions) so no need to spend $1000's more on furniture! The open floor plan features a formal living and dining room, with sliding glass doors opening onto the lanai. The kitchen is a cook's delight, with plenty of cabinetry, granite countertops, and stunning backsplash. Appliances include: BRAND NEW French door refrigerator, microwave, smooth top stove, and dishwasher (all GE) There's a pass through to the lanai, making entertaining a breeze! The butler's pantry provides all the storage you might need for your food items or your pots/pans/small appliances! The built in desk area w/tumbled marble backsplash is a great place to set up your laptop and printer, and perhaps a cookbook or two! Dinette/breakfast nook is handily located in between the kitchen and family room with sliding glass doors opening on to the lanai. Speaking of the family room, this is where you are sure to gather and watch a football game or movie! There's an electric fireplace for some extra ambiance, tray ceiling and a decorative bar! The primary bedroom features easy care laminate flooring, tray ceiling and ceiling fan, two walk in closets and another set of sliding glass doors to the lanai, providing a GREAT WATER VIEW, The Primary Bath has updated plank tiled flooring, updated vanity w/granite countertop and double basins, new mirrors, and COMPLETELY UPDATED ROMAN SHOWER. Guest bedrooms both have ample room so your guests won't feel crowded, plus ceiling fans and wall closets. Guest Bath has a combo tub/shower for those who enjoy a nice soak! Inside laundry houses the Samsung washer and dryer, Two car garage has pull down stairs, with access to the attic, and an automatic garage door opener. The lanai and pool area are the HIGHLIGHT of this home, with pavered decking and wrap around seating area. The beautiful solar HEATED pool has a sparkling pebbletec finish (done in about 2020) and the HUGE POOL CAGE WAS REPLACED IN 2023 - built strong to withstand wind! Tile Roof new in 2020, overhead garage door in 2020, and AC in 2018. BEST OF ALL, THERE'S A PHOTOVOTAIC SOLAR SYSTEM FOR WHOLE HOUSE, saving you thousands on your electric bill. (Last month the seller's electric bill was less than $30!) IMPACT WINDOWS provide peace of mind, and the StormSmart screens protect the lanai. CORAL CREEK is perfect for kayaking, paddle boarding and shallow draft boating access on out to Lemon Bay and pristine beaches. Cape Haze Windward is a deed restricted subdivision, with an 18 hole golf course in its midst. Shopping is close by, and famous Boca Grande, known for it's tarpon fishing, white sandy beaches, and celebrity visitors are just minutes down the road and over the causeway. There are numerous airports that provide fast and easy access, depending on where you are travelling from: Punta Gorda Airport (PGD), Sarasota International (SRQ), Fort Myers (RSW), and Tampa International Airport (TPA) are all within a reasonable drive. Homes with this natural scenic view don't come on the market very often, So don't delay!
Listing Information
Property Type: Residential, Single Family Residence
Status: Active
Bedrooms: 3
Bathrooms: 2
Lot Size: 0.32 Acres
Square Feet: 2,452 sq ft
Year Built: 1995
Garage: Yes
Stories: 1 Story
Construction: Block,Concrete,Stucco
Subdivision: Cape Haze Windward
Builder: J&J Homes
Foundation: Stem Wall
County: Charlotte
School Information
Elementary: Vineland Elementary
Middle: L.A. Ainger Middle
High: Lemon Bay High
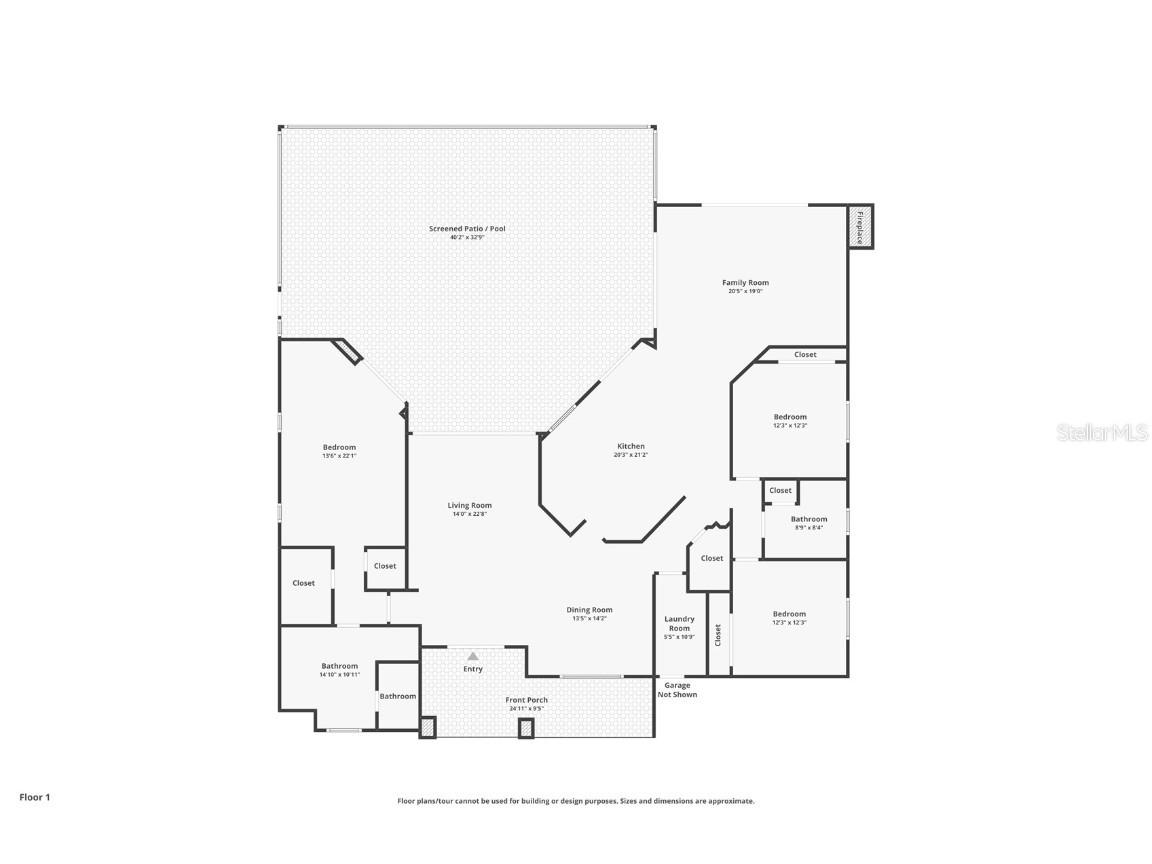
Room Information
Main Floor
Laundry: 5x9
Kitchen: 15x15
Dining Room: 11x13
Living Room: 14x16
Porch: 8x32
Bathroom 2: 8x9
Bedroom 3: 12x12
Bedroom 2: 12x12
Primary Bathroom: 11x15
Primary Bedroom: 13x21
Dinette: 12x15
Family Room: 20x18
Bathrooms
Full Baths: 2
Additonal Room Information
Laundry: Inside
Interior Features
Appliances: Washer, Electric Water Heater, Range, Refrigerator, Microwave, Dishwasher, Disposal, Dryer
Flooring: Carpet,Ceramic Tile,Laminate,Wood
Doors/Windows: Window Treatments
Fireplaces: Electric, Family Room
Additional Interior Features: Kitchen/Family Room Combo, Solid Surface Counters, Stone Counters, Tray Ceiling(s), Attic, Built-in Features, High Ceilings, Living/Dining Room, Open Floorplan, Eat-In Kitchen, Window Treatments, Walk-In Closet(s), Split Bedrooms, Ceiling Fan(s), Central Vacuum
Utilities
Water: Public
Sewer: Public Sewer
Other Utilities: Cable Connected,Electricity Connected,High Speed Internet Available,Municipal Utilities,Phone Available,Sewer Connected,Water Connected
Cooling: Ceiling Fan(s), Central Air, Humidity Control
Heating: Electric, Central
Exterior / Lot Features
Attached Garage: Attached Garage
Garage Spaces: 2
Parking Description: Garage Door Opener, Garage
Roof: Tile
Pool: Heated, Gunite, Screen Enclosure, In Ground
Lot View: Creek/Stream,Water
Lot Dimensions: 105x132
Additional Exterior/Lot Features: Lighting, Rain Gutters, Sprinkler/Irrigation, Storm/Security Shutters, Front Porch, Rear Porch, Enclosed, Screened, Deck, Patio, Porch, Level, Flat, Landscaped, Cleared, Near Golf Course, Outside City Limits
Waterfront Details
Standard Water Body: CORAL CREEK
Water Front Features: Gulf Access, Creek
Community Features
Community Features: Golf
Security Features: Security System Owned, Smoke Detector(s)
HOA Dues Include: Association Management
Homeowners Association: Yes
HOA Dues: $275 / Annually
Driving Directions
775 (Placida Road) south to left on Cape Haze Drive, then right on Arlington Drive, then left on Amberjack Lane which dead ends into Coral Creek Drive, house will be on your right
Financial Considerations
Terms: Cash,Conventional
Tax/Property ID: 422002128011
Tax Amount: 8347
Tax Year: 2025
A broker reciprocity listing courtesy: RE/MAX ALLIANCE GROUP
Based on information provided by Stellar MLS as distributed by the MLS GRID. Information from the Internet Data Exchange is provided exclusively for consumers’ personal, non-commercial use, and such information may not be used for any purpose other than to identify prospective properties consumers may be interested in purchasing. This data is deemed reliable but is not guaranteed to be accurate by Edina Realty, Inc., or by the MLS. Edina Realty, Inc., is not a multiple listing service (MLS), nor does it offer MLS access.
Copyright 2025 Stellar MLS as distributed by the MLS GRID. All Rights Reserved.
Payment Calculator
Interest rate and annual percentage rate (APR) are based on current market conditions, are for informational purposes only, are subject to change without notice and may be subject to pricing add-ons related to property type, loan amount, loan-to-value, credit score and other variables. Estimated closing costs used in the APR calculation are assumed to be paid by the borrower at closing. If the closing costs are financed, the loan, APR and payment amounts will be higher. If the down payment is less than 20%, mortgage insurance may be required and could increase the monthly payment and APR. Contact us for details. Additional loan programs may be available. Accuracy is not guaranteed, and all products may not be available in all borrower's geographical areas and are based on their individual situation. This is not a credit decision or a commitment to lend.
Sales History & Tax Summary for 310 Coral Creek Drive
Sales History
| Date | Price | Change |
|---|---|---|
| Currently not available. | ||
Tax Summary
| Tax Year | Estimated Market Value | Total Tax |
|---|---|---|
| Currently not available. | ||
Data powered by ATTOM Data Solutions. Copyright© 2025. Information deemed reliable but not guaranteed.
Schools
Schools nearby 310 Coral Creek Drive
| Schools in attendance boundaries | Grades | Distance | Rating |
|---|---|---|---|
| Loading... | |||
| Schools nearby | Grades | Distance | Rating |
|---|---|---|---|
| Loading... | |||
Data powered by ATTOM Data Solutions. Copyright© 2025. Information deemed reliable but not guaranteed.
The schools shown represent both the assigned schools and schools by distance based on local school and district attendance boundaries. Attendance boundaries change based on various factors and proximity does not guarantee enrollment eligibility. Please consult your real estate agent and/or the school district to confirm the schools this property is zoned to attend. Information is deemed reliable but not guaranteed.
SchoolDigger ® Rating
The SchoolDigger rating system is a 1-5 scale with 5 as the highest rating. SchoolDigger ranks schools based on test scores supplied by each state's Department of Education. They calculate an average standard score by normalizing and averaging each school's test scores across all tests and grades.
Coming soon properties will soon be on the market, but are not yet available for showings.