$350,000
3101 Independence Avenue N New Hope, MN 55427
For Sale MLS# 6817556
4 beds 2 baths 1,896 sq ft Single Family
Details for 3101 Independence Avenue N
MLS# 6817556
Description for 3101 Independence Avenue N, New Hope, MN, 55427
Nice 4-bedroom, 2 bath with several recent updated including: new garage floor and front door area, new flooring throughout, new appliances, added the bedroom and 3/4 bathroom in lower level. All new windows except two. Near schools, worship, grocery shopping, not far from Hwy 100 and 169.
Listing Information
Property Type: Residential, Single Family
Status: Active
Bedrooms: 4
Bathrooms: 2
Lot Size: 0.23 Acres
Square Feet: 1,896 sq ft
Year Built: 1972
Foundation: 1,056 sq ft
Garage: Yes
Stories: 1 Story
Subdivision: West Winnetka Park 3rd Add
County: Hennepin
Days On Market: 32
Construction Status: Previously Owned
School Information
District: 281 - Robbinsdale
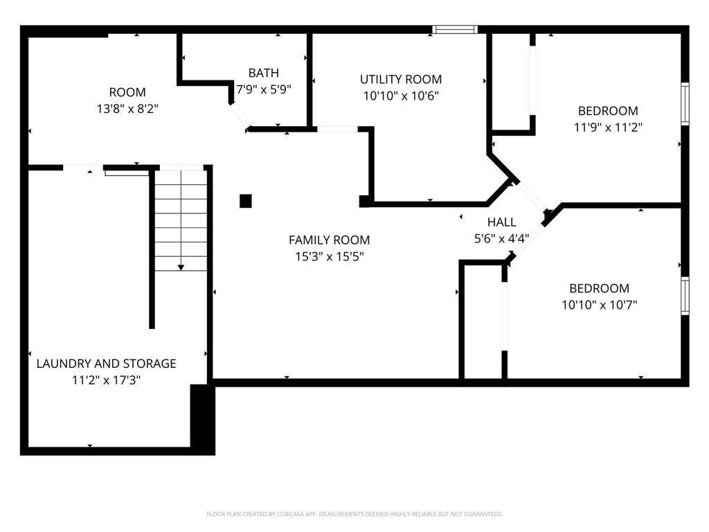
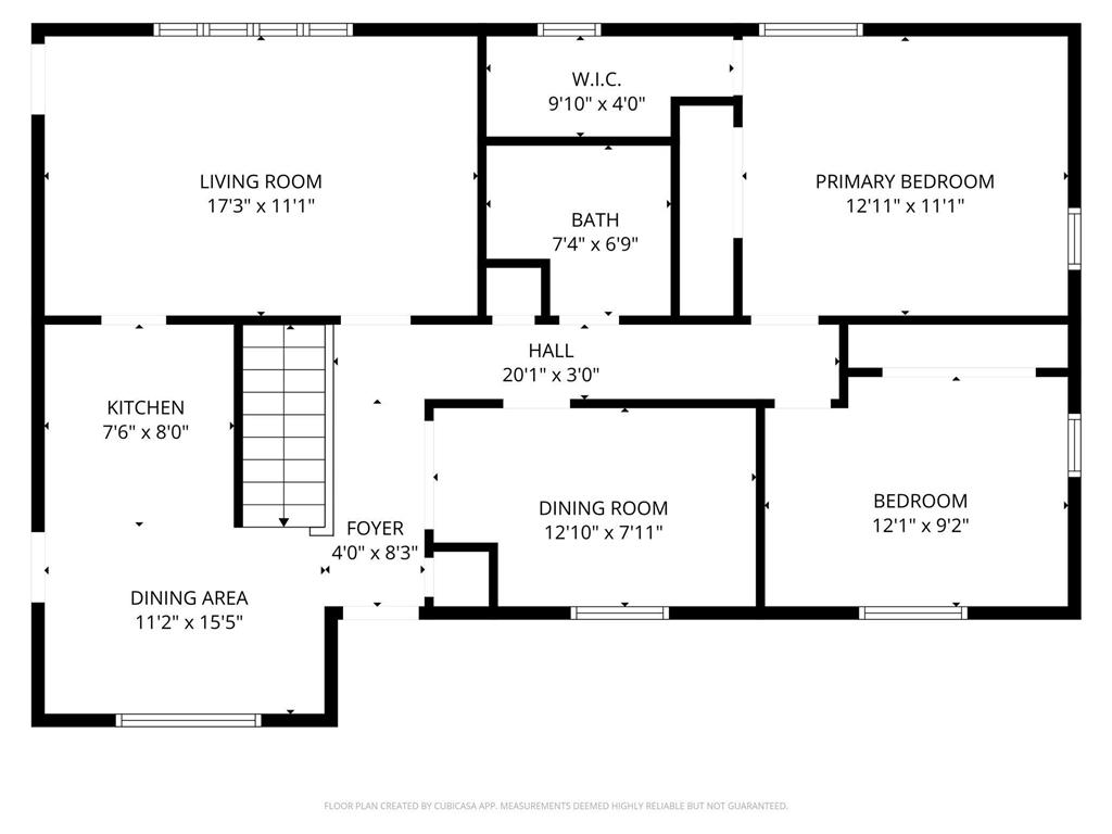
Room Information
Main Floor
Bedroom 1: 11x14
Bedroom 2: 8x12
Deck: 20x28
Dining Room: 9x10
Kitchen: 9x15
Living Room: 11x17
Lower Floor
Bedroom 3: 12x10
Bedroom 4: 11x10
Den: 11x8
Family Room: 11x15
Bathrooms
Full Baths: 1
3/4 Baths: 1
Additonal Room Information
Family: Family Room,Lower Level
Dining: Eat In Kitchen,Informal Dining Room
Laundry: In Basement
Bath Description: 1/2 Primary,3/4 Basement,Main Floor Full Bath
Interior Features
Square Footage above: 1,056 sq ft
Square Footage below: 840 sq ft
Appliances: Washer, Water Softener - Owned, Range, Refrigerator, Dishwasher, Dryer, Microwave
Basement: Concrete Block, Full
Additional Interior Features: Main Floor Primary
Utilities
Water: City Water/Connected
Sewer: City Sewer/Connected
Cooling: Central
Heating: Natural Gas, Forced Air
Exterior / Lot Features
Attached Garage: Attached Garage
Garage Spaces: 2
Parking Description: Driveway - Asphalt, Attached Garage, Garage Sq Ft - 400.0
Exterior: Metal, Stucco, Vinyl
Roof: Age Over 8 Years
Lot Dimensions: 75x135
Zoning: Residential-Single Family
Additional Exterior/Lot Features: Deck, Tree Coverage - Light, Road Frontage - City
Driving Directions
Hwy 169, East on Medicine Lake Rd, North on Hillsboro, West on 30th Ave, North on Independence.
Financial Considerations
Tax/Property ID: 1911821320008
Tax Amount: 4876
Tax Year: 2025
HomeStead Description: Homesteaded
A broker reciprocity listing courtesy: Counselor Realty, Inc
The data relating to real estate for sale on this web site comes in part from the Broker Reciprocity℠ Program of the Regional Multiple Listing Service of Minnesota, Inc. Real estate listings held by brokerage firms other than Edina Realty, Inc. are marked with the Broker Reciprocity℠ logo or the Broker Reciprocity℠ thumbnail and detailed information about them includes the name of the listing brokers. Edina Realty, Inc. is not a Multiple Listing Service (MLS), nor does it offer MLS access. This website is a service of Edina Realty, Inc., a broker Participant of the Regional Multiple Listing Service of Minnesota, Inc. IDX information is provided exclusively for consumers personal, non-commercial use and may not be used for any purpose other than to identify prospective properties consumers may be interested in purchasing. Open House information is subject to change without notice. Information deemed reliable but not guaranteed.
Copyright 2025 Regional Multiple Listing Service of Minnesota, Inc. All Rights Reserved.
Payment Calculator
Interest rate and annual percentage rate (APR) are based on current market conditions, are for informational purposes only, are subject to change without notice and may be subject to pricing add-ons related to property type, loan amount, loan-to-value, credit score and other variables. Estimated closing costs used in the APR calculation are assumed to be paid by the borrower at closing. If the closing costs are financed, the loan, APR and payment amounts will be higher. If the down payment is less than 20%, mortgage insurance may be required and could increase the monthly payment and APR. Contact us for details. Additional loan programs may be available. Accuracy is not guaranteed, and all products may not be available in all borrower's geographical areas and are based on their individual situation. This is not a credit decision or a commitment to lend.
Sales History & Tax Summary for 3101 Independence Avenue N
Sales History
| Date | Price | Change |
|---|---|---|
| Currently not available. | ||
Tax Summary
| Tax Year | Estimated Market Value | Total Tax |
|---|---|---|
| Currently not available. | ||
Data powered by ATTOM Data Solutions. Copyright© 2025. Information deemed reliable but not guaranteed.
Schools
Schools nearby 3101 Independence Avenue N
| Schools in attendance boundaries | Grades | Distance | Rating |
|---|---|---|---|
| Loading... | |||
| Schools nearby | Grades | Distance | Rating |
|---|---|---|---|
| Loading... | |||
Data powered by ATTOM Data Solutions. Copyright© 2025. Information deemed reliable but not guaranteed.
The schools shown represent both the assigned schools and schools by distance based on local school and district attendance boundaries. Attendance boundaries change based on various factors and proximity does not guarantee enrollment eligibility. Please consult your real estate agent and/or the school district to confirm the schools this property is zoned to attend. Information is deemed reliable but not guaranteed.
SchoolDigger ® Rating
The SchoolDigger rating system is a 1-5 scale with 5 as the highest rating. SchoolDigger ranks schools based on test scores supplied by each state's Department of Education. They calculate an average standard score by normalizing and averaging each school's test scores across all tests and grades.
Coming soon properties will soon be on the market, but are not yet available for showings.