$225,000
3106 S Semoran Boulevard #P-2 Orlando, FL 32822
For Sale MLS# O6302896
2 beds 2 baths 1,054 sq ft Condo
Details for 3106 S Semoran Boulevard #P-2
MLS# O6302896
Description for 3106 S Semoran Boulevard #P-2, Orlando, FL, 32822
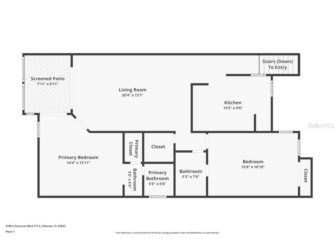
This 2 bedroom, 2 bathroom, second story condo is located in the Club Villas at Wimbledon Park. The living room is spacious with beautiful, vaulted ceilings, skylights, and wood laminate flooring. The sliding glass doors lead to a window covered, enclosed lanai - wonderful for lounging and a great mood-booster with the natural sunlight! The kitchen and laundry are side by side, perfect for multitasking. Both bedrooms feature en-suit bathrooms. The master bathroom has a private toilet closet with shower. The master bedroom also showcases a luxurious walk-in closet. The community has a fitness center, pool, tennis courts, and clubhouse. Come view this gem! It could be your next home.
Listing Information
Property Type: Residential, Condominium
Status: Active
Bedrooms: 2
Bathrooms: 2
Lot Size: 3.77 Acres
Square Feet: 1,054 sq ft
Year Built: 1985
Stories: 1 Story
Construction: Block,Stucco
Property Attached: Yes
Construction Display: New Construction
Subdivision: Club Villas At Wimbledon Park Condo
Builder: Wimbledon Development Corporation
Foundation: Slab
County: Orange
Construction Status: New Construction
School Information
Elementary: Lake George Elem
Middle: Conway Middle
High: Boone High
Room Information
Upper Floor
Bedroom 2: 11x16
Bathroom 2: 8x5
Primary Bathroom: 6x8
Primary Bedroom: 14x14
Porch: 9x8
Living Room: 13x20
Kitchen: 10x13
Bathrooms
Full Baths: 2
Additonal Room Information
Laundry: In Kitchen
Interior Features
Appliances: Washer, Range, Refrigerator, Dishwasher, Dryer
Flooring: Carpet,Ceramic Tile,Laminate,Marble,Other,Tile
Doors/Windows: Skylight(s)
Accessibility: Accessible Entrance
Additional Interior Features: Ceiling Fan(s), Vaulted Ceiling(s), Upper Level Primary, High Ceilings, Living/Dining Room, Skylights, Walk-In Closet(s), Open Floorplan, Kitchen/Family Room Combo
Utilities
Water: Public
Sewer: Public Sewer
Other Utilities: Cable Available,Electricity Available,Electricity Connected,High Speed Internet Available,Municipal Utilities,Phone Available,Sewer Available,Sewer Connected,Water Available,Water Connected
Cooling: Ceiling Fan(s), Central Air
Heating: Central
Exterior / Lot Features
Parking Description: Assigned
Roof: Other, Shingle
Pool: Other, Association, In Ground, Community
Lot View: Trees/Woods
Lot Dimensions: 269x610
Additional Exterior/Lot Features: Balcony, Lighting, Tennis Court(s), Storage, Balcony, Covered, Patio, Porch, Rear Porch, Enclosed, Screened, Landscaped, Cleared, City Lot, Buyer Approval Required
Community Features
Community Features: Street Lights, Gated, Clubhouse, Pool, Tennis Court(s), Sidewalks
Security Features: Fire Alarm, Gated Community, Smoke Detector(s), Security Lights
Association Amenities: Clubhouse, Pool, Recreation Facilities, Tennis Court(s), Maintenance Grounds
HOA Dues Include: Maintenance Grounds, Pool(s), Common Areas, Maintenance Structure, Water, Taxes, Trash
Driving Directions
From FL-436/S Semoran Blvd, turn left onto FL-436/S Semoran Blvd, turn right, turn left, turn left. Home will be on the right.
Financial Considerations
Terms: Cash,Conventional,FHA,VA Loan
Tax/Property ID: 04-23-30-1445-16-020
Tax Amount: 445.57
Tax Year: 2024
A broker reciprocity listing courtesy: BEAR TEAM REAL ESTATE
Based on information provided by Stellar MLS as distributed by the MLS GRID. Information from the Internet Data Exchange is provided exclusively for consumers’ personal, non-commercial use, and such information may not be used for any purpose other than to identify prospective properties consumers may be interested in purchasing. This data is deemed reliable but is not guaranteed to be accurate by Edina Realty, Inc., or by the MLS. Edina Realty, Inc., is not a multiple listing service (MLS), nor does it offer MLS access.
Copyright 2025 Stellar MLS as distributed by the MLS GRID. All Rights Reserved.
Payment Calculator
Interest rate and annual percentage rate (APR) are based on current market conditions, are for informational purposes only, are subject to change without notice and may be subject to pricing add-ons related to property type, loan amount, loan-to-value, credit score and other variables. Estimated closing costs used in the APR calculation are assumed to be paid by the borrower at closing. If the closing costs are financed, the loan, APR and payment amounts will be higher. If the down payment is less than 20%, mortgage insurance may be required and could increase the monthly payment and APR. Contact us for details. Additional loan programs may be available. Accuracy is not guaranteed, and all products may not be available in all borrower's geographical areas and are based on their individual situation. This is not a credit decision or a commitment to lend.
Sales History & Tax Summary for 3106 S Semoran Boulevard #P-2
Sales History
| Date | Price | Change |
|---|---|---|
| Currently not available. | ||
Tax Summary
| Tax Year | Estimated Market Value | Total Tax |
|---|---|---|
| Currently not available. | ||
Data powered by ATTOM Data Solutions. Copyright© 2025. Information deemed reliable but not guaranteed.
Schools
Schools nearby 3106 S Semoran Boulevard #P-2
| Schools in attendance boundaries | Grades | Distance | Rating |
|---|---|---|---|
| Loading... | |||
| Schools nearby | Grades | Distance | Rating |
|---|---|---|---|
| Loading... | |||
Data powered by ATTOM Data Solutions. Copyright© 2025. Information deemed reliable but not guaranteed.
The schools shown represent both the assigned schools and schools by distance based on local school and district attendance boundaries. Attendance boundaries change based on various factors and proximity does not guarantee enrollment eligibility. Please consult your real estate agent and/or the school district to confirm the schools this property is zoned to attend. Information is deemed reliable but not guaranteed.
SchoolDigger ® Rating
The SchoolDigger rating system is a 1-5 scale with 5 as the highest rating. SchoolDigger ranks schools based on test scores supplied by each state's Department of Education. They calculate an average standard score by normalizing and averaging each school's test scores across all tests and grades.
Coming soon properties will soon be on the market, but are not yet available for showings.