3107 Easy Street Port Charlotte, FL 33952
For Sale MLS# C7496256
2 beds 1 baths 874 sq ft Single Family
Details for 3107 Easy Street
MLS# C7496256
Description for 3107 Easy Street, Port Charlotte, FL, 33952
Attention investors! This 2-bedroom, 1-bath property in Port Charlotte offers strong upside potential in a high demand Southwest Florida market. Conveniently located just minutes from US-41, shopping, dining, medical facilities, and major commuter routes, this home sits in a prime area for resale or rental repositioning. The property features a NEW A/C (2025), granite countertops, a functional layout ready for improvements, serene water views, a spacious patio with room to enhance outdoor living, and a backyard storage shed for additional utility. Its proximity to Port Charlotte Beach Park and the growing Sunseeker Resort at Charlotte Harbor supports long-term appreciation and rental demand. Property is being sold strictly AS-IS and is ideal for investors seeking a value-add opportunity. Buyers to conduct their own due diligence. Schedule your private showing today—this one won’t last!
Listing Information
Property Type: Residential, Single Family Residence
Status: Active
Bedrooms: 2
Bathrooms: 1
Lot Size: 0.24 Acres
Square Feet: 874 sq ft
Year Built: 1961
Stories: 1 Story
Construction: Block,Concrete
Subdivision: Port Charlotte Sec 011
Foundation: Other,Slab
County: Charlotte
School Information
Elementary: Peace River Elementary
Middle: Port Charlotte Middle
High: Charlotte High
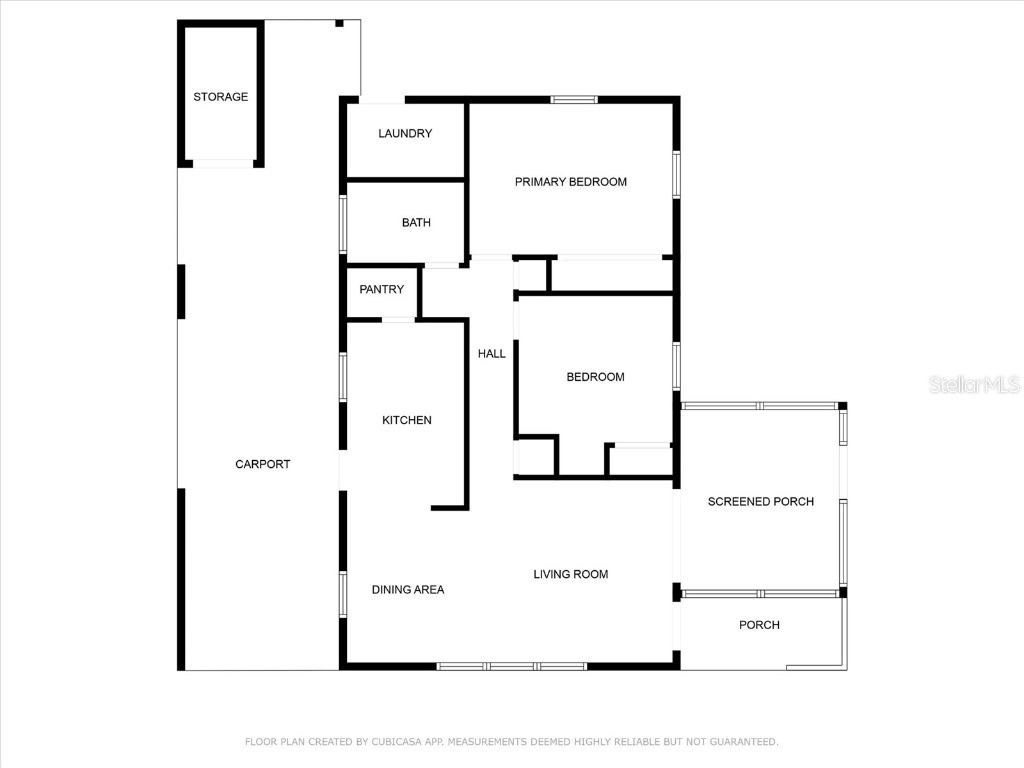
Room Information
Main Floor
Porch:
Living Room: 10x8
Dining Room: 12x13
Bathroom 1: 9x12
Kitchen: 10x8
Bedroom 2: 10x11
Primary Bedroom: 11x7
Bathrooms
Full Baths: 1
Additonal Room Information
Laundry: Laundry Room
Interior Features
Appliances: Cooktop, Dishwasher, Dryer, Microwave, Washer, Convection Oven
Flooring: Ceramic Tile
Additional Interior Features: Living/Dining Room, Ceiling Fan(s), Stone Counters
Utilities
Water: Public
Sewer: Public Sewer
Other Utilities: Cable Available,Electricity Available,Water Connected
Cooling: Ceiling Fan(s), Central Air
Heating: Electric
Exterior / Lot Features
Roof: Built-Up
Lot View: Canal,Water
Lot Dimensions: 88x120
Additional Exterior/Lot Features: Other, Storage
Waterfront Details
Water Front Features: Canal Front
Driving Directions
Use the left 2 lanes to turn left onto US-41 N/N Tamiami Trl, Turn right onto Easy St Destination will be on the left
Financial Considerations
Terms: Cash
Tax/Property ID: 402222226014
Tax Amount: 2436.65
Tax Year: 2023
A broker reciprocity listing courtesy: RE/MAX REALTY TEAM
Based on information provided by Stellar MLS as distributed by the MLS GRID. Information from the Internet Data Exchange is provided exclusively for consumers’ personal, non-commercial use, and such information may not be used for any purpose other than to identify prospective properties consumers may be interested in purchasing. This data is deemed reliable but is not guaranteed to be accurate by Edina Realty, Inc., or by the MLS. Edina Realty, Inc., is not a multiple listing service (MLS), nor does it offer MLS access.
Copyright 2026 Stellar MLS as distributed by the MLS GRID. All Rights Reserved.
Payment Calculator
Interest rate and annual percentage rate (APR) are based on current market conditions, are for informational purposes only, are subject to change without notice and may be subject to pricing add-ons related to property type, loan amount, loan-to-value, credit score and other variables. Estimated closing costs used in the APR calculation are assumed to be paid by the borrower at closing. If the closing costs are financed, the loan, APR and payment amounts will be higher. If the down payment is less than 20%, mortgage insurance may be required and could increase the monthly payment and APR. Contact us for details. Additional loan programs may be available. Accuracy is not guaranteed, and all products may not be available in all borrower's geographical areas and are based on their individual situation. This is not a credit decision or a commitment to lend.
Sales History & Tax Summary for 3107 Easy Street
Sales History
| Date | Price | |
|---|---|---|
| Currently not available. | ||
Tax Summary
| Tax Year | Estimated Market Value | Total Tax |
|---|---|---|
| Currently not available. | ||
Data powered by ATTOM Data Solutions. Copyright© 2026. Information deemed reliable but not guaranteed.
Schools
Schools nearby 3107 Easy Street
| Schools in attendance boundaries | Grades | Distance | Rating |
|---|---|---|---|
| Loading... | |||
| Schools nearby | Grades | Distance | Rating |
|---|---|---|---|
| Loading... | |||
Data powered by ATTOM Data Solutions. Copyright© 2026. Information deemed reliable but not guaranteed.
The schools shown represent both the assigned schools and schools by distance based on local school and district attendance boundaries. Attendance boundaries change based on various factors and proximity does not guarantee enrollment eligibility. Please consult your real estate agent and/or the school district to confirm the schools this property is zoned to attend. Information is deemed reliable but not guaranteed.
SchoolDigger ® Rating
The SchoolDigger rating system is a 1-5 scale with 5 as the highest rating. SchoolDigger ranks schools based on test scores supplied by each state's Department of Education. They calculate an average standard score by normalizing and averaging each school's test scores across all tests and grades.
Coming soon properties will soon be on the market, but are not yet available for showings.