3110 11th Ave N Saint Petersburg, FL 33713
For Sale MLS# TB8439933
2 beds 2 baths 908 sq ft Single Family
Details for 3110 11th Ave N
MLS# TB8439933
Description for 3110 11th Ave N, Saint Petersburg, FL, 33713
Motivated Seller Opportunity 5k for closing costs! Bring your Offers!Move-in ready and waiting for you to get the keys! This charming home is located in one of the best neighborhoods in St. Petersburg. It features 2 bedrooms and 1.5 bathrooms, enjoy brand new kitchen cabinets, brand new appliances, brand new countertops, brand-new flooring, and fresh interior/exterior paint throughout. The open-concept design between the kitchen and living area offers a bright and spacious feel, enhanced by large windows that fill the home with natural light and provide a beautiful garden view. Enjoy a one-car garage. The large backyard is ready for your creative ideas—perfect for entertaining or relaxing outdoors. Located in a non-flood zone and with no HOA, this home combines freedom, comfort, and convenience, just 10 minutes from Downtown St. Petersburg and close to shopping centers and restaurants. A true gem ready to be your new home!
Listing Information
Property Type: Residential, Single Family Residence
Status: Active
Bedrooms: 2
Bathrooms: 2
Lot Size: 0.15 Acres
Square Feet: 908 sq ft
Year Built: 1987
Garage: Yes
Stories: 1 Story
Construction: Wood Frame
Construction Display: New Construction
Subdivision: Floral Villa Estates Rep
Foundation: Slab
County: Pinellas
Construction Status: New Construction
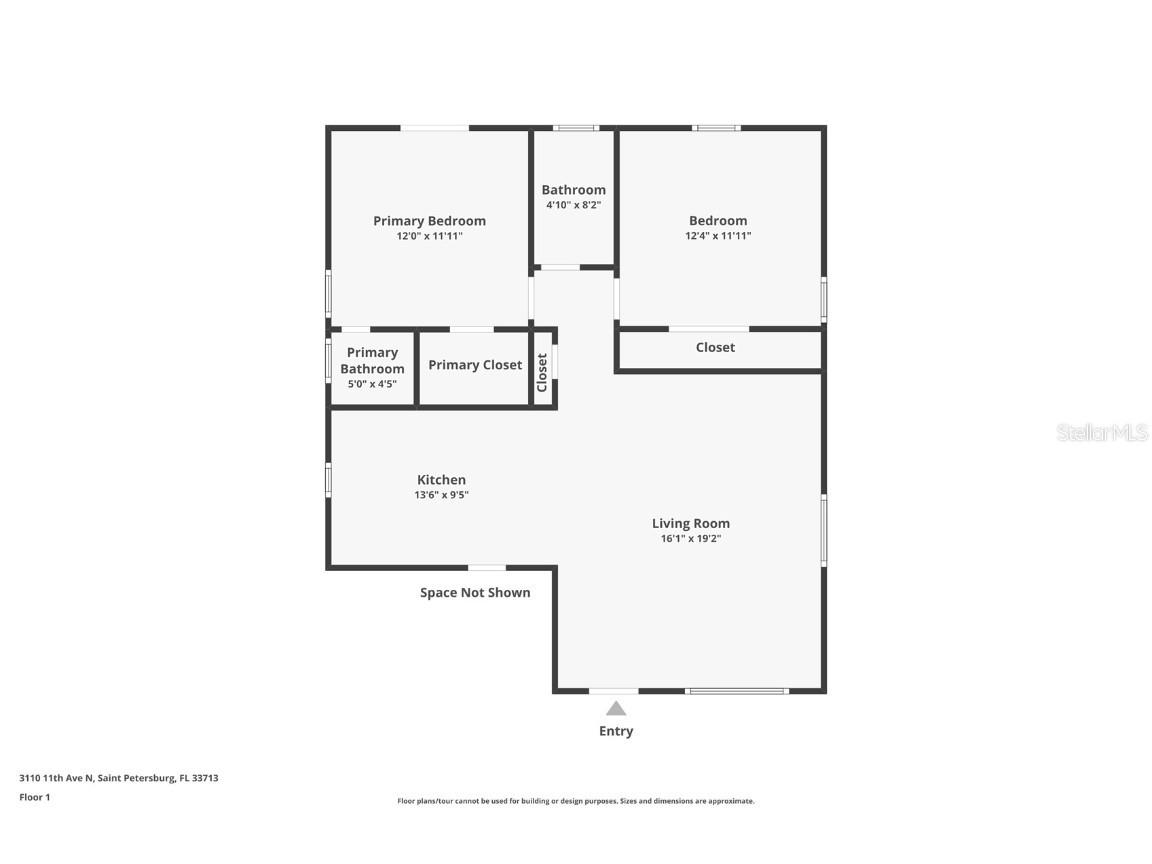
Room Information
Main Floor
Kitchen: 11x10
Living Room: 12x14
Bedroom 2: 12x10
Primary Bedroom: 15x10
Bathrooms
Full Baths: 1
1/2 Baths: 1
Additonal Room Information
Laundry: In Garage
Interior Features
Appliances: Electric Water Heater, Convection Oven, Exhaust Fan, Cooktop, Dishwasher, Disposal, Microwave, Refrigerator
Flooring: Luxury Vinyl
Additional Interior Features: Walk-In Closet(s), Open Floorplan, Stone Counters, Ceiling Fan(s)
Utilities
Water: Public
Sewer: Public Sewer
Other Utilities: Municipal Utilities
Cooling: Ceiling Fan(s), Central Air
Heating: Electric
Exterior / Lot Features
Attached Garage: Attached Garage
Garage Spaces: 1
Roof: Shingle
Lot Dimensions: 50x130
Additional Exterior/Lot Features: Garden
Community Features
Community Features: Sidewalks
Driving Directions
From I-275 Exit 24 (22nd Ave N) W; R 31st St N; R 11th Ave N; to 3110 on right.
Financial Considerations
Terms: Cash,Conventional,FHA,VA Loan
Tax/Property ID: 14-31-16-28188-006-0220
Tax Amount: 740.98
Tax Year: 2024
A broker reciprocity listing courtesy: LPT REALTY, LLC
Based on information provided by Stellar MLS as distributed by the MLS GRID. Information from the Internet Data Exchange is provided exclusively for consumers’ personal, non-commercial use, and such information may not be used for any purpose other than to identify prospective properties consumers may be interested in purchasing. This data is deemed reliable but is not guaranteed to be accurate by Edina Realty, Inc., or by the MLS. Edina Realty, Inc., is not a multiple listing service (MLS), nor does it offer MLS access.
Copyright 2025 Stellar MLS as distributed by the MLS GRID. All Rights Reserved.
Payment Calculator
Interest rate and annual percentage rate (APR) are based on current market conditions, are for informational purposes only, are subject to change without notice and may be subject to pricing add-ons related to property type, loan amount, loan-to-value, credit score and other variables. Estimated closing costs used in the APR calculation are assumed to be paid by the borrower at closing. If the closing costs are financed, the loan, APR and payment amounts will be higher. If the down payment is less than 20%, mortgage insurance may be required and could increase the monthly payment and APR. Contact us for details. Additional loan programs may be available. Accuracy is not guaranteed, and all products may not be available in all borrower's geographical areas and are based on their individual situation. This is not a credit decision or a commitment to lend.
Sales History & Tax Summary for 3110 11th Ave N
Sales History
| Date | Price | Change |
|---|---|---|
| Currently not available. | ||
Tax Summary
| Tax Year | Estimated Market Value | Total Tax |
|---|---|---|
| Currently not available. | ||
Data powered by ATTOM Data Solutions. Copyright© 2025. Information deemed reliable but not guaranteed.
Schools
Schools nearby 3110 11th Ave N
| Schools in attendance boundaries | Grades | Distance | Rating |
|---|---|---|---|
| Loading... | |||
| Schools nearby | Grades | Distance | Rating |
|---|---|---|---|
| Loading... | |||
Data powered by ATTOM Data Solutions. Copyright© 2025. Information deemed reliable but not guaranteed.
The schools shown represent both the assigned schools and schools by distance based on local school and district attendance boundaries. Attendance boundaries change based on various factors and proximity does not guarantee enrollment eligibility. Please consult your real estate agent and/or the school district to confirm the schools this property is zoned to attend. Information is deemed reliable but not guaranteed.
SchoolDigger ® Rating
The SchoolDigger rating system is a 1-5 scale with 5 as the highest rating. SchoolDigger ranks schools based on test scores supplied by each state's Department of Education. They calculate an average standard score by normalizing and averaging each school's test scores across all tests and grades.
Coming soon properties will soon be on the market, but are not yet available for showings.