3112 St Charles Place Winter Haven, FL 33884
For Sale MLS# O6351027
4 beds 2 baths 1,829 sq ft Single Family
Details for 3112 St Charles Place
MLS# O6351027
Description for 3112 St Charles Place, Winter Haven, FL, 33884
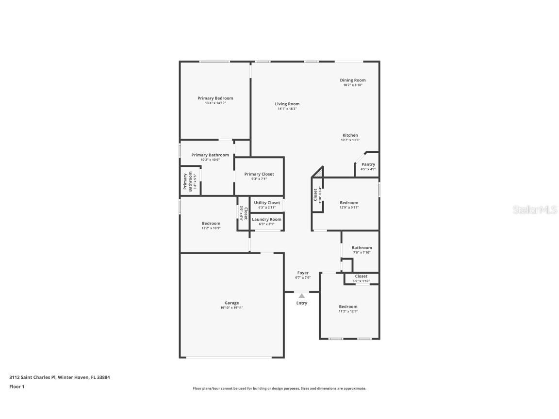
Short Sale. Perfect starter home or investment property! Welcome to this 4-bedroom, 2-bathroom residence located in the desirable Orleans community. Built in 2023, this charming corner-lot home offers an open floor plan with a spacious living area, kitchen, and dinette—all featuring easy-to-maintain tile flooring. A sliding glass door leads to the covered lanai, perfect for relaxing or entertaining. The primary bedroom is privately situated at the back of the home and includes a large walk-in closet and an ensuite bathroom with dual vanities and a separate stand-alone shower. Toward the front of the home, you’ll find three additional bedrooms and a full guest bath, offering plenty of space for family or visitors. Additional highlights include a laundry closet with washer/dryer hookups, a two-car garage, and a spacious backyard thanks to the corner lot. With a low HOA and peace of mind from a newer roof, HVAC, and water heater, this home offers both comfort and value. Conveniently located less than a mile from Legoland Florida Resort, and close to shopping, dining, medical facilities, and hospitals—this property truly has it all.
Listing Information
Property Type: Residential, Single Family Residence
Status: Active
Bedrooms: 4
Bathrooms: 2
Lot Size: 0.28 Acres
Square Feet: 1,829 sq ft
Year Built: 2023
Garage: Yes
Stories: 1 Story
Construction: Stucco
Subdivision: Orleans
Foundation: Other
County: Polk
Room Information
Main Floor
Bedroom 4: 10x13
Bedroom 3: 9x12
Bedroom 2: 12x11
Primary Bedroom: 14x13
Living Room: 18x14
Kitchen: 13x10
Bathrooms
Full Baths: 2
Additonal Room Information
Laundry: Inside, Laundry Closet
Interior Features
Appliances: Microwave, Dishwasher
Flooring: Carpet,Tile
Additional Interior Features: Eat-In Kitchen, Ceiling Fan(s), Open Floorplan, Stone Counters, Split Bedrooms, Kitchen/Family Room Combo
Utilities
Water: Public
Sewer: Public Sewer
Other Utilities: Municipal Utilities
Cooling: Ceiling Fan(s), Central Air
Heating: Electric
Exterior / Lot Features
Attached Garage: Attached Garage
Garage Spaces: 2
Roof: Shingle
Community Features
Community Features: Sidewalks
Homeowners Association: Yes
HOA Dues: $75 / Monthly
Driving Directions
I-4 W toward Tampa, Take exit 55 for US-27 S, Slight right onto US-27 S, Turn right onto FL-540 W/Cypress Gardens Blvd, Turn left onto Helena Rd SE/Old Helena Rd, Turn left onto Royal St, Turn left onto Lasalle St, Turn right onto St Charles Pl, Destination will be on the right
Financial Considerations
Terms: Cash,Conventional,FHA,VA Loan
Tax/Property ID: 26-29-11-687427-000350
Tax Amount: 3361
Tax Year: 2024
A broker reciprocity listing courtesy: EXP REALTY LLC
Based on information provided by Stellar MLS as distributed by the MLS GRID. Information from the Internet Data Exchange is provided exclusively for consumers’ personal, non-commercial use, and such information may not be used for any purpose other than to identify prospective properties consumers may be interested in purchasing. This data is deemed reliable but is not guaranteed to be accurate by Edina Realty, Inc., or by the MLS. Edina Realty, Inc., is not a multiple listing service (MLS), nor does it offer MLS access.
Copyright 2026 Stellar MLS as distributed by the MLS GRID. All Rights Reserved.
Payment Calculator
Interest rate and annual percentage rate (APR) are based on current market conditions, are for informational purposes only, are subject to change without notice and may be subject to pricing add-ons related to property type, loan amount, loan-to-value, credit score and other variables. Estimated closing costs used in the APR calculation are assumed to be paid by the borrower at closing. If the closing costs are financed, the loan, APR and payment amounts will be higher. If the down payment is less than 20%, mortgage insurance may be required and could increase the monthly payment and APR. Contact us for details. Additional loan programs may be available. Accuracy is not guaranteed, and all products may not be available in all borrower's geographical areas and are based on their individual situation. This is not a credit decision or a commitment to lend.
Sales History & Tax Summary for 3112 St Charles Place
Sales History
| Date | Price | |
|---|---|---|
| Currently not available. | ||
Tax Summary
| Tax Year | Estimated Market Value | Total Tax |
|---|---|---|
| Currently not available. | ||
Data powered by ATTOM Data Solutions. Copyright© 2026. Information deemed reliable but not guaranteed.
Schools
Schools nearby 3112 St Charles Place
| Schools in attendance boundaries | Grades | Distance | Rating |
|---|---|---|---|
| Loading... | |||
| Schools nearby | Grades | Distance | Rating |
|---|---|---|---|
| Loading... | |||
Data powered by ATTOM Data Solutions. Copyright© 2026. Information deemed reliable but not guaranteed.
The schools shown represent both the assigned schools and schools by distance based on local school and district attendance boundaries. Attendance boundaries change based on various factors and proximity does not guarantee enrollment eligibility. Please consult your real estate agent and/or the school district to confirm the schools this property is zoned to attend. Information is deemed reliable but not guaranteed.
SchoolDigger ® Rating
The SchoolDigger rating system is a 1-5 scale with 5 as the highest rating. SchoolDigger ranks schools based on test scores supplied by each state's Department of Education. They calculate an average standard score by normalizing and averaging each school's test scores across all tests and grades.
Coming soon properties will soon be on the market, but are not yet available for showings.